Object detail
Algemeen
Stijlvolle twee-onder-een-kapwoning met eigen oprit, garage, berging en robuuste overkapping
Bent u op zoek naar een woning met ruimte, comfort én een stijlvolle uitstraling? Dan is Waterschans 5 in Veenendaal precies wat u zoekt.
Deze moderne twee-onder-een-kapwoning combineert 146 m² aan woonoppervlak met een heerlijk perceel van 233 m². De woning is gelegen in een autoluwe en kindvrie... Meer informatie
Bent u op zoek naar een woning met ruimte, comfort én een stijlvolle uitstraling? Dan is Waterschans 5 in Veenendaal precies wat u zoekt.
Deze moderne twee-onder-een-kapwoning combineert 146 m² aan woonoppervlak met een heerlijk perceel van 233 m². De woning is gelegen in een autoluwe en kindvrie... Meer informatie
-
Kenmerken
Alle kenmerken Type object Woonhuis, eengezinswoning, twee onder een kap woning Bouwperiode 2001 Status Nieuw in verkoop Aangeboden sinds Donderdag 26 februari 2026 -
Locatie
Kenmerken
| Overdracht | |
|---|---|
| Referentienummer | 08190 |
| Vraagprijs | € 749.500,- k.k. |
| Inrichting | Niet gestoffeerd |
| Inrichting | Niet gemeubileerd |
| Status | Nieuw in verkoop |
| Aanvaarding | In overleg |
| Aangeboden sinds | Donderdag 26 februari 2026 |
| Bouw | |
|---|---|
| Type object | Woonhuis, eengezinswoning, twee onder een kap woning |
| Soort bouw | Bestaande bouw |
| Bouwperiode | 2001 |
| Dakbedekking | Dakpannen |
| Type dak | Samengesteld |
| Isolatievormen | Dakisolatie, Dubbel glas, HR-glas, Muurisolatie, Spouwmuren, Vloerisolatie, Volledig geïsoleerd |
| Oppervlaktes en inhoud | |
|---|---|
| Perceeloppervlakte | 233 m² |
| Woonoppervlakte | 146 m² |
| Inhoud | 585 m³ |
| Oppervlakte overige inpandige ruimten | 19 m² |
| Oppervlakte externe bergruimte | 6 m² |
| Oppervlakte gebouwgebonden buitenruimte | 3 m² |
| Indeling | |
|---|---|
| Aantal bouwlagen | 3 |
| Aantal kamers | 6 (waarvan 5 slaapkamers) |
| Aantal badkamers | 1 (en 1 apart toilet) |
| Tuin | |
|---|---|
| Type | Achtertuin |
| Hoofdtuin | Ja |
| Oriëntering | Zuiden |
| Staat | Goed onderhouden |
| Tuin 2 - Type | Voortuin |
| Tuin 2 - Oriëntering | Noorden |
| Tuin 2 - Staat | Goed onderhouden |
| Energieverbruik | |
|---|---|
| Energielabel | A |
| CV ketel | |
|---|---|
| CV ketel | Remeha |
| Warmtebron | Gas |
| Combiketel | Ja |
| Eigendom | Eigendom |
| Uitrusting | |
|---|---|
| Aantal parkeerplaatsen | 3 |
| Aantal overdekte parkeerplaatsen | 1 |
| Warm water | CV-ketel |
| Verwarmingssysteem | Centrale verwarming |
| Ventilatie methode | Mechanische ventilatie, Natuurlijke ventilatie |
| Keukenvoorzieningen | Inbouwapparatuur |
| Badkamervoorzieningen | Douche, Ligbad, Toilet, Wastafel, Wastafelmeubel |
| Parkeergelegenheid | Aangebouwde stenen garage |
| Heeft kabel-tv | Ja |
| Glasvezelaansluiting aanwezig | Ja |
| Tuin aanwezig | Ja |
| Heeft een garage | Ja |
| Telefoonaansluiting aanwezig | Ja |
| Beschikt over een internetverbinding | Ja |
| Heeft schuur/berging | Ja |
| Heeft een dakraam | Ja |
| Heeft zonwering | Ja |
| Heeft zonnepanelen | Ja |
| Heeft ventilatie | Ja |
| Kadastrale gegevens | |
|---|---|
| Kadastrale aanduiding | Veenendaal G 1706 |
| Perceeloppervlakte | 233 m² |
| Omvang | Geheel perceel |
Beschrijving
Stijlvolle twee-onder-een-kapwoning met eigen oprit, garage, berging en robuuste overkapping
Bent u op zoek naar een woning met ruimte, comfort én een stijlvolle uitstraling? Dan is Waterschans 5 in Veenendaal precies wat u zoekt.
Deze moderne twee-onder-een-kapwoning combineert 146 m² aan woonoppervlak met een heerlijk perceel van 233 m². De woning is gelegen in een autoluwe en kindvriendelijke woonomgeving aan een ruim opgezette straat nabij diverse voorzieningen. Een ideale ligging voor deze ruime gezinswoning met eigen oprit en garage. Met een lichte woonkamer, heerlijke woonkeuken, maar liefst vijf volwaardige slaapkamers en keurig sanitair voldoet deze woning aan al uw woonwensen. De dubbele openslaande deuren naar de zonnige tuin met stijlvolle overkapping en berging maken het plaatje compleet. Alles aan deze woning ademt ruimte, licht en gebruiksgemak, van de nette afwerking tot de slimme indeling en de energiezuinige zonnepanelen op het dak. Kortom: een fijn huis op een fijne plek, waar u en uw gezin een heerlijk thuis kunnen creëren.
De buurt
Waterschans 5 ligt in een rustige en kindvriendelijke woonwijk in het westen van Veenendaal. Hier woont u op korte afstand van winkelcentrum de Ellekoot, diverse basisscholen, sportverenigingen en het NS-station Veenendaal West. Ook natuurgebied de Utrechtse Heuvelrug is binnen enkele minuten te bereiken – ideaal voor een wandeling of fietstocht. Met de uitvalswegen A12 en A30 dichtbij, bent u bovendien uitstekend verbonden met steden als Utrecht, Ede en Arnhem.
Begane grond
U komt binnen in een verzorgde entree met bergkasten, de trapopgang en toiletruimte. Via een tussendeur bereikt u de woonkamer: een royale leefruimte met een grote raampartij, die zorgt voor een rijke lichtinval. Dankzij de openslaande deuren naar de tuin staat deze ruimte letterlijk in verbinding met buiten. Aan de voorzijde ligt de ruime woonkeuken, gescheiden van de woonkamer door eveneens openslaande deuren. De keuken is opgesteld in een hoek en uitgerust met een combimagnetron, gaskookplaat, afzuigkap, vaatwasser en koelkast. Er is voldoende ruimte voor een gezellige eethoek.
Eerste verdieping
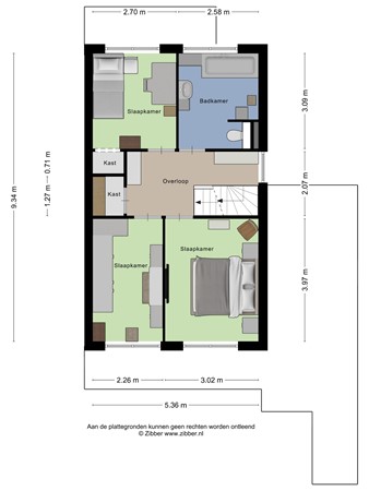
De eerste verdieping telt drie ruime slaapkamers, elk met een prettig formaat en een rustige uitstraling dankzij de laminaatvloer en lichte afwerking. De hoofdslaapkamer bevindt zich aan de achterzijde van de woning, met zicht op de tuin. De kamer aan de voorzijde is uitgerust met een inbouwkast, evenals de overloop. De badkamer is compleet ingericht met een ligbad, aparte douche, tweede toilet en een wastafel. De grote raampartij zorgt hier voor aangenaam daglicht en ventilatie.
Tweede verdieping
Op de bovenverdieping bevinden zich nog eens twee volwaardige kamers, elk met karakteristieke schuine daklijnen en veel ruimte. Ideaal als extra slaapkamer, werkruimte of hobbykamer. De voorzolder is ingericht met een opstelplaats voor de wasmachine en droger, de cv-ketel, omvormer ten behoeve van de zonnepanelen en mechanische ventilatiesysteem.
Buitenruimte
De achtertuin is volledig betegeld, onderhoudsvriendelijk en perfect op het zuid-westen gelegen. Hier geniet u volop van de middag- en avondzon. De grote houten overkapping met inbouwspots en berging maakt het plaatje compleet: hier zit u beschut, of het nu zomer is of herfst. Dankzij de ligging én de volledige erfafscheiding, biedt de tuin veel privacy. Aan de voorzijde beschikt u over een oprit met plek voor één auto, en de garage biedt nog extra bergruimte of stallingsmogelijkheden.
Algemene gegevens
- Type woning: 2-onder-1-kapwoning
- Bouwjaar: 2001
- Aantal kamers: 6
- Aantal slaapkamers: 5
- Aantal badkamers: 1
- Parkeerruimte: Op de eigen oprit, in de garage en in de directe omgeving aanwezig
- Aanwezig: oprit, garage, erker, veranda en berging
- Ligging tuin: zuid
- Tuin bereik: via de woning en de garage.
Technische gegevens
- Warmwatervoorziening: HR cv-ketel, Remeha Calenta
- Verwarmvoorziening: HR cv-ketel, Remeha Calenta
- Zonnepanelen: 10
- Voorzieningen: buitenzonwering aanwezig
- Mechanische ventilatie: aanwezig
- Isolatie: dak/spouw/vloer (volledig geïsoleerd)
- Dubbel glas: geheel
- Glasvezel kabel aanwezig
- Kozijnen: aluminium
WILT U EVEN BINNEN KIJKEN?
Voor meer informatie omtrent deze woning, kunt u contact opnemen met ons kantoor in Veenendaal.
U bent van harte welkom! De beste indruk van deze woning krijgt u natuurlijk tijdens een bezichtiging. Wij proberen onze bezichtigingen altijd in samenspraak met verkoper en koper te plannen en nemen ruim de tijd, zodat u op uw gemak de woning kan bekijken en ervaren.
N.B. Aan de samenstelling van deze gegevens is maximale zorg besteed. Aan onvolkomenheden in de vermelde gegevens en tekeningen kunnen geen rechten en aanspraken worden ontleend.
Bent u op zoek naar een woning met ruimte, comfort én een stijlvolle uitstraling? Dan is Waterschans 5 in Veenendaal precies wat u zoekt.
Deze moderne twee-onder-een-kapwoning combineert 146 m² aan woonoppervlak met een heerlijk perceel van 233 m². De woning is gelegen in een autoluwe en kindvriendelijke woonomgeving aan een ruim opgezette straat nabij diverse voorzieningen. Een ideale ligging voor deze ruime gezinswoning met eigen oprit en garage. Met een lichte woonkamer, heerlijke woonkeuken, maar liefst vijf volwaardige slaapkamers en keurig sanitair voldoet deze woning aan al uw woonwensen. De dubbele openslaande deuren naar de zonnige tuin met stijlvolle overkapping en berging maken het plaatje compleet. Alles aan deze woning ademt ruimte, licht en gebruiksgemak, van de nette afwerking tot de slimme indeling en de energiezuinige zonnepanelen op het dak. Kortom: een fijn huis op een fijne plek, waar u en uw gezin een heerlijk thuis kunnen creëren.
De buurt
Waterschans 5 ligt in een rustige en kindvriendelijke woonwijk in het westen van Veenendaal. Hier woont u op korte afstand van winkelcentrum de Ellekoot, diverse basisscholen, sportverenigingen en het NS-station Veenendaal West. Ook natuurgebied de Utrechtse Heuvelrug is binnen enkele minuten te bereiken – ideaal voor een wandeling of fietstocht. Met de uitvalswegen A12 en A30 dichtbij, bent u bovendien uitstekend verbonden met steden als Utrecht, Ede en Arnhem.
Begane grond
U komt binnen in een verzorgde entree met bergkasten, de trapopgang en toiletruimte. Via een tussendeur bereikt u de woonkamer: een royale leefruimte met een grote raampartij, die zorgt voor een rijke lichtinval. Dankzij de openslaande deuren naar de tuin staat deze ruimte letterlijk in verbinding met buiten. Aan de voorzijde ligt de ruime woonkeuken, gescheiden van de woonkamer door eveneens openslaande deuren. De keuken is opgesteld in een hoek en uitgerust met een combimagnetron, gaskookplaat, afzuigkap, vaatwasser en koelkast. Er is voldoende ruimte voor een gezellige eethoek.
Eerste verdieping
De eerste verdieping telt drie ruime slaapkamers, elk met een prettig formaat en een rustige uitstraling dankzij de laminaatvloer en lichte afwerking. De hoofdslaapkamer bevindt zich aan de achterzijde van de woning, met zicht op de tuin. De kamer aan de voorzijde is uitgerust met een inbouwkast, evenals de overloop. De badkamer is compleet ingericht met een ligbad, aparte douche, tweede toilet en een wastafel. De grote raampartij zorgt hier voor aangenaam daglicht en ventilatie.
Tweede verdieping
Op de bovenverdieping bevinden zich nog eens twee volwaardige kamers, elk met karakteristieke schuine daklijnen en veel ruimte. Ideaal als extra slaapkamer, werkruimte of hobbykamer. De voorzolder is ingericht met een opstelplaats voor de wasmachine en droger, de cv-ketel, omvormer ten behoeve van de zonnepanelen en mechanische ventilatiesysteem.
Buitenruimte
De achtertuin is volledig betegeld, onderhoudsvriendelijk en perfect op het zuid-westen gelegen. Hier geniet u volop van de middag- en avondzon. De grote houten overkapping met inbouwspots en berging maakt het plaatje compleet: hier zit u beschut, of het nu zomer is of herfst. Dankzij de ligging én de volledige erfafscheiding, biedt de tuin veel privacy. Aan de voorzijde beschikt u over een oprit met plek voor één auto, en de garage biedt nog extra bergruimte of stallingsmogelijkheden.
Algemene gegevens
- Type woning: 2-onder-1-kapwoning
- Bouwjaar: 2001
- Aantal kamers: 6
- Aantal slaapkamers: 5
- Aantal badkamers: 1
- Parkeerruimte: Op de eigen oprit, in de garage en in de directe omgeving aanwezig
- Aanwezig: oprit, garage, erker, veranda en berging
- Ligging tuin: zuid
- Tuin bereik: via de woning en de garage.
Technische gegevens
- Warmwatervoorziening: HR cv-ketel, Remeha Calenta
- Verwarmvoorziening: HR cv-ketel, Remeha Calenta
- Zonnepanelen: 10
- Voorzieningen: buitenzonwering aanwezig
- Mechanische ventilatie: aanwezig
- Isolatie: dak/spouw/vloer (volledig geïsoleerd)
- Dubbel glas: geheel
- Glasvezel kabel aanwezig
- Kozijnen: aluminium
WILT U EVEN BINNEN KIJKEN?
Voor meer informatie omtrent deze woning, kunt u contact opnemen met ons kantoor in Veenendaal.
U bent van harte welkom! De beste indruk van deze woning krijgt u natuurlijk tijdens een bezichtiging. Wij proberen onze bezichtigingen altijd in samenspraak met verkoper en koper te plannen en nemen ruim de tijd, zodat u op uw gemak de woning kan bekijken en ervaren.
N.B. Aan de samenstelling van deze gegevens is maximale zorg besteed. Aan onvolkomenheden in de vermelde gegevens en tekeningen kunnen geen rechten en aanspraken worden ontleend.