Object detail
Algemeen
Kopers opgelet! Deze woning wordt verkocht middels verkoop bij inschrijving (gunning verkoper) in combinatie met meerdere kijkdagen. De sluitingsdatum voor het bieden is 24 april 2026 om 14:00 uur.
Instapklaar genieten van ultieme luxe, rust en privacy, royale villa direct aan het water.
Sommige huizen laten u simpelweg niet meer los; en deze fantastische, instapklare villa aan het water... Meer informatie
Instapklaar genieten van ultieme luxe, rust en privacy, royale villa direct aan het water.
Sommige huizen laten u simpelweg niet meer los; en deze fantastische, instapklare villa aan het water... Meer informatie
-
Kenmerken
Alle kenmerken Type object Woonhuis, villa, vrijstaande woning Bouwperiode 2009 Status Verkocht Aangeboden sinds Vrijdag 3 april 2026 -
Locatie
Kenmerken
| Overdracht | |
|---|---|
| Referentienummer | 08227 |
| Vraagprijs | € 1.425.000,- k.k. |
| Status | Verkocht |
| Aanvaarding | In overleg |
| Aangeboden sinds | Vrijdag 3 april 2026 |
| Laatste wijziging | Woensdag 13 mei 2026 |
| Bouw | |
|---|---|
| Type object | Woonhuis, villa, vrijstaande woning |
| Soort bouw | Bestaande bouw |
| Bouwperiode | 2009 |
| Dakbedekking | Dakpannen |
| Type dak | Zadeldak |
| Isolatievormen | Dakisolatie, Dubbel glas, HR-glas, Muurisolatie, Spouwmuren, Vloerisolatie, Volledig geïsoleerd |
| Oppervlaktes en inhoud | |
|---|---|
| Perceeloppervlakte | 1.450 m² |
| Woonoppervlakte | 175 m² |
| Inhoud | 650 m³ |
| Oppervlakte externe bergruimte | 65 m² |
| Oppervlakte gebouwgebonden buitenruimte | 1,5 m² |
| Indeling | |
|---|---|
| Aantal bouwlagen | 2 |
| Aantal kamers | 3 (waarvan 2 slaapkamers) |
| Aantal badkamers | 1 (en 2 aparte toiletten) |
| Locatie | |
|---|---|
| Ligging | Aan rustige weg, Aan water, Nabij snelweg, Vrij uitzicht |
| Tuin | |
|---|---|
| Type | Tuin rondom |
| Hoofdtuin | Ja |
| Staat | Prachtig aangelegd |
| Energieverbruik | |
|---|---|
| Energielabel | A |
| CV ketel | |
|---|---|
| CV ketel | Nefit Topline Aquapower+ HRC 25CW6 |
| Warmtebron | Gas |
| Bouwjaar | 2010 |
| Combiketel | Ja |
| Eigendom | Eigendom |
| Uitrusting | |
|---|---|
| Aantal overdekte parkeerplaatsen | 2 |
| Warm water | CV-ketel |
| Verwarmingssysteem | Centrale verwarming, Gashaard |
| Ventilatie methode | Mechanische ventilatie, Natuurlijke ventilatie |
| Badkamervoorzieningen | Dubbele wastafel, Inloopdouche, Ligbad, Wastafelmeubel |
| Parkeergelegenheid | Carport |
| Heeft een rookkanaal | Ja |
| Glasvezelaansluiting aanwezig | Ja |
| Tuin aanwezig | Ja |
| Beschikt over een internetverbinding | Ja |
| Heeft schuur/berging | Ja |
| Heeft ventilatie | Ja |
| Kadastrale gegevens | |
|---|---|
| Kadastrale aanduiding | Veenendaal K 4541 |
| Perceeloppervlakte | 1.450 m² |
| Omvang | Geheel perceel |
Beschrijving
Kopers opgelet! Deze woning wordt verkocht middels verkoop bij inschrijving (gunning verkoper) in combinatie met meerdere kijkdagen. De sluitingsdatum voor het bieden is 24 april 2026 om 14:00 uur.
Instapklaar genieten van ultieme luxe, rust en privacy, royale villa direct aan het water.
Sommige huizen laten u simpelweg niet meer los; en deze fantastische, instapklare villa aan het water is daar een perfect voorbeeld van. Zodra u de oprit oprijdt, voelt u het: hier klopt álles. De rust, het groen, de ruimte, de sfeer; het is een plek waar u zó u dozen wilt uitpakken en nooit meer weg wilt. Met een royale living, luxe keuken, stijlvolle badkamer en heerlijke slaapverdieping is het binnen al pure verwennerij. Mocht de woonoppervlakte niet voldoende zijn? Denk aan een extra slaapkamer of werkkamer op de begane grond. Dan kan er voor een aantal m² vergunningsvrij bijgebouwd worden. Wij verwijzen u naar de website omgevingswet van de overheid. Tevens zou er een mantelzorgwoning gerealiseerd kunnen worden.
Buiten gaat het feest gewoon door: een riante tuin met vuurplaats, een sfeervolle veranda met buitenhaard, een moderne sauna, een aanlegsteiger aan het water én overal uitzicht op groen. Of u nu wilt onthaasten met een boek in het zonnetje, gezellig wilt borrelen met vrienden of een frisse duik wilt nemen op een warme dag – hier leeft u écht. Alles is tot in de puntjes verzorgd, met hoogwaardige materialen, strak afgewerkte ruimtes en een prachtige balans tussen comfort en stijl. Een huis dat voelt als vakantie, elke dag opnieuw. Klinkt dat als uw droom? Lees dan vooral verder.
U woont hier heerlijk vrij, maar niet afgelegen. De villa ligt aan een rustige landweg met volop groen rondom, aan een mooie waterpartij met directe vaarverbinding. Ideaal dus voor natuurliefhebbers, rustzoekers en waterfans. De ruime percelen in de omgeving zorgen voor veel privacy en een landelijk gevoel, terwijl u toch binnen korte tijd in het centrum van het Veenendaal bent voor boodschappen, scholen en gezellige horeca. Fietst en wandelt u graag? Dan liggen er prachtige routes klaar, dwars door de polders, langs het water en door sfeervolle dorpen. Met de auto bent u ook zo op de uitvalswegen, waardoor u vlot richting de steden als Utrecht en Arnhem rijdt. En bij thuiskomst wacht de rust van eigen oase aan het water. Hier heeft u het beste van twee werelden: alle ruimte om u heen én alle voorzieningen binnen handbereik.
Indeling begane grond
Wat een fijne binnenkomst! U wordt verwelkomd in een royale, lichte hal die strak is afgewerkt. Hier vindt u een mooie stalen trap met natuursteen naar boven, ruimte voor een garderobe en toegang tot het moderne toilet en de luxueuze badkamer. Vanuit de hal loopt u door naar de woonkamer, waar het uitzicht direct uw aandacht trekt. Grote raampartijen en openslaande tuindeuren zorgen voor een zee aan licht en een prachtig groen panorama. De zithoek is ruim opgezet, met een gezellige haard als blikvanger.
Aan de andere zijde vindt u de luxe keuken met kookeiland – strak, modern en voorzien van alle denkbare inbouwapparatuur, waaronder een koffiemachine, oven/magnetron, stoomoven, teppanyaki bakplaat en een Quooker. Koken wordt hier echt een feestje. Ook de keuken is voorzien van openslaande deuren richting de tuin.
De aangrenzende eetkamer is ruim genoeg voor een grote tafel, waar u met vrienden of familie heerlijk lang kunt tafelen. Daarnaast is er een ruime bijkeuken aanwezig, waar u opbergruimte en de witgoedaansluitingen treft. Alles is afgewerkt in neutrale, warme tinten en met oog voor detail.
De badkamer is een plaatje: stijlvol betegeld, modern, ruim en voorzien van een ligbad, royale inloopdouche en dubbele wastafel.
Eerste verdieping
Boven bevindt zich de slaapverdieping, waar u absolute rust ervaart. De master bedroom is ruim, sfeervol en slim geplaatst onder het schuine dak. De lichtinval is ook hier prachtig dankzij de grote dakkapel met karakteristieke raampartijen. Er is voldoende ruimte voor een kingsize bed en deze kamer beschikt over een eigen toilet en een royale walk-in closet.
De tweede slaapkamer is eveneens ruim en kan perfect dienen als logeerkamer, thuiswerkplek of kinderkamer. Ook hier ziet u de strakke afwerking en het gebruik van hoogwaardige materialen terug. Heeft u nóg meer ruimte nodig? Dan biedt de overloop volop mogelijkheden om uw spullen netjes op te bergen. Kortom: een complete en comfortabele verdieping met alle rust en luxe die u mag verwachten.
Boven is het eenvoudig om van 1 slaapkamer 2 kinderkamers te maken plus een 'kleine' badkamer.
Buitenruimte
Wat een tuin! Rondom de woning ligt een fantastisch aangelegde buitenruimte, met volop privacy en zon op elk moment van de dag. Aan de achterzijde vindt u een lange, statige oprit met grind en parkeergelegenheid voor meerdere auto’s.
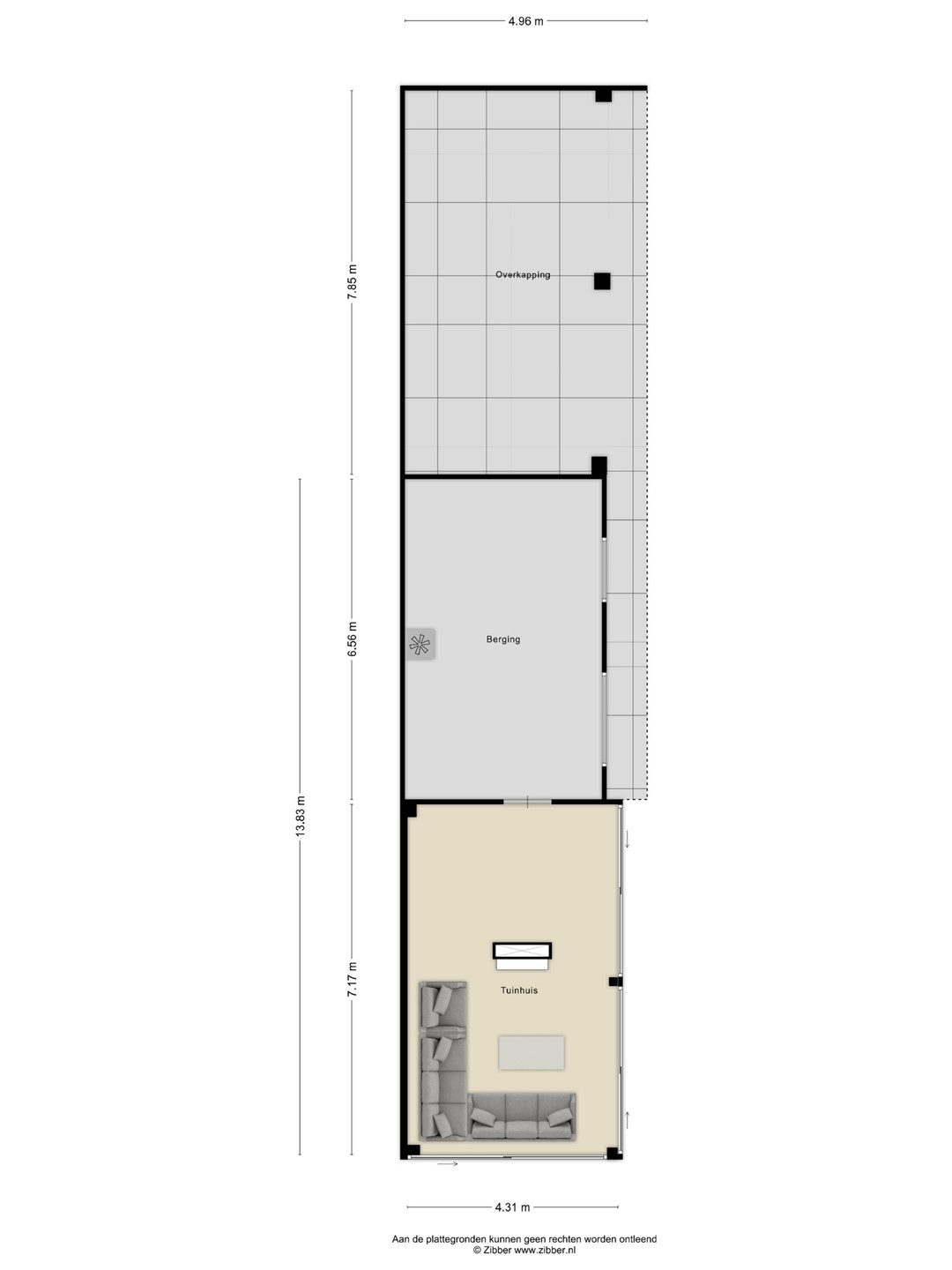
De tuin is een waar paradijs: kleurrijke borders, een strak gazon, hoge bomen en sfeervolle hoekjes. Tevens bevindt zich hier een moderne zwarte sauna, strak vormgegeven met veel hout en glas – perfect voor ontspanning. Centraal in de tuin staat een veranda met glazen wanden, een buitenhaard, barbecuehoek, zitgedeelte én televisieaansluiting: hier kunt u het hele jaar door genieten. Aansluitend vindt u een royale berging met houtopslag.
Verder is er volop ruimte voor gezellige zitjes en – misschien wel het mooiste – een aanlegsteiger aan het water met loungebanken. U kunt hier een verfrissende duik nemen, uw boot aanleggen of simpelweg genieten van het uitzicht. Dit is leven op z’n best.
Laat uw hart spreken en kom deze parel in het echt ervaren. Maar wees gewaarschuwd: u zou zomaar verliefd kunnen worden. Het gevoel van thuiskomen begint al bij het betreden van de oprijlaan en blijft u verrassen tot aan het zitje aan het water.
Dit is niet zomaar een woning – dit is een levensstijl waar u iedere dag van geniet. Wacht niet te lang, want plekken als deze zijn zeldzaam.
Algemene gegevens
- Type woning: vrijstaand
- Bouwjaar: 2009
- Aantal kamers: 3
- Aantal slaapkamers: 2
- Aantal badkamers: 1
- Parkeerruimte: 2 in de carport en ruim voldoende op eigen terrein
- Aanwezig: dakkapel/berging/garage/vlonder
- Ligging tuin: rondom
- Tuin bereik: voor/achter/opzij en via woning
Technische gegevens
- Warmwatervoorziening: Nefit Topline Aquapower+ HRC 25CW6
- Verwarmvoorziening: Nefit Topline Aquapower+ HRC 25CW6
- gashaard
- Voorzieningen: Veranda met houtkachel/Jacuzzi/walk-in closet, Sauna/Quooker
- Mechanische ventilatie: aanwezig
- Isolatie: dak/spouw/vloer volledig
- Dubbel glas: geheel
- Glasvezel kabel, TV kabel
- Kozijnen: hout
WILT U EVEN BINNEN KIJKEN?
Voor meer informatie omtrent deze woning, kunt u contact opnemen met ons kantoor in Veenendaal.
U bent van harte welkom! De beste indruk van deze woning krijgt u natuurlijk tijdens een bezichtiging. Wij proberen onze bezichtigingen altijd in samenspraak met verkoper en koper te plannen en nemen ruim de tijd, zodat u op uw gemak de woning kan bekijken en ervaren.
N.B. Aan de samenstelling van deze gegevens is maximale zorg besteed. Aan onvolkomenheden in de vermelde gegevens en tekeningen kunnen geen rechten en aanspraken worden ontleend.
Instapklaar genieten van ultieme luxe, rust en privacy, royale villa direct aan het water.
Sommige huizen laten u simpelweg niet meer los; en deze fantastische, instapklare villa aan het water is daar een perfect voorbeeld van. Zodra u de oprit oprijdt, voelt u het: hier klopt álles. De rust, het groen, de ruimte, de sfeer; het is een plek waar u zó u dozen wilt uitpakken en nooit meer weg wilt. Met een royale living, luxe keuken, stijlvolle badkamer en heerlijke slaapverdieping is het binnen al pure verwennerij. Mocht de woonoppervlakte niet voldoende zijn? Denk aan een extra slaapkamer of werkkamer op de begane grond. Dan kan er voor een aantal m² vergunningsvrij bijgebouwd worden. Wij verwijzen u naar de website omgevingswet van de overheid. Tevens zou er een mantelzorgwoning gerealiseerd kunnen worden.
Buiten gaat het feest gewoon door: een riante tuin met vuurplaats, een sfeervolle veranda met buitenhaard, een moderne sauna, een aanlegsteiger aan het water én overal uitzicht op groen. Of u nu wilt onthaasten met een boek in het zonnetje, gezellig wilt borrelen met vrienden of een frisse duik wilt nemen op een warme dag – hier leeft u écht. Alles is tot in de puntjes verzorgd, met hoogwaardige materialen, strak afgewerkte ruimtes en een prachtige balans tussen comfort en stijl. Een huis dat voelt als vakantie, elke dag opnieuw. Klinkt dat als uw droom? Lees dan vooral verder.
U woont hier heerlijk vrij, maar niet afgelegen. De villa ligt aan een rustige landweg met volop groen rondom, aan een mooie waterpartij met directe vaarverbinding. Ideaal dus voor natuurliefhebbers, rustzoekers en waterfans. De ruime percelen in de omgeving zorgen voor veel privacy en een landelijk gevoel, terwijl u toch binnen korte tijd in het centrum van het Veenendaal bent voor boodschappen, scholen en gezellige horeca. Fietst en wandelt u graag? Dan liggen er prachtige routes klaar, dwars door de polders, langs het water en door sfeervolle dorpen. Met de auto bent u ook zo op de uitvalswegen, waardoor u vlot richting de steden als Utrecht en Arnhem rijdt. En bij thuiskomst wacht de rust van eigen oase aan het water. Hier heeft u het beste van twee werelden: alle ruimte om u heen én alle voorzieningen binnen handbereik.
Indeling begane grond
Wat een fijne binnenkomst! U wordt verwelkomd in een royale, lichte hal die strak is afgewerkt. Hier vindt u een mooie stalen trap met natuursteen naar boven, ruimte voor een garderobe en toegang tot het moderne toilet en de luxueuze badkamer. Vanuit de hal loopt u door naar de woonkamer, waar het uitzicht direct uw aandacht trekt. Grote raampartijen en openslaande tuindeuren zorgen voor een zee aan licht en een prachtig groen panorama. De zithoek is ruim opgezet, met een gezellige haard als blikvanger.
Aan de andere zijde vindt u de luxe keuken met kookeiland – strak, modern en voorzien van alle denkbare inbouwapparatuur, waaronder een koffiemachine, oven/magnetron, stoomoven, teppanyaki bakplaat en een Quooker. Koken wordt hier echt een feestje. Ook de keuken is voorzien van openslaande deuren richting de tuin.
De aangrenzende eetkamer is ruim genoeg voor een grote tafel, waar u met vrienden of familie heerlijk lang kunt tafelen. Daarnaast is er een ruime bijkeuken aanwezig, waar u opbergruimte en de witgoedaansluitingen treft. Alles is afgewerkt in neutrale, warme tinten en met oog voor detail.
De badkamer is een plaatje: stijlvol betegeld, modern, ruim en voorzien van een ligbad, royale inloopdouche en dubbele wastafel.
Eerste verdieping
Boven bevindt zich de slaapverdieping, waar u absolute rust ervaart. De master bedroom is ruim, sfeervol en slim geplaatst onder het schuine dak. De lichtinval is ook hier prachtig dankzij de grote dakkapel met karakteristieke raampartijen. Er is voldoende ruimte voor een kingsize bed en deze kamer beschikt over een eigen toilet en een royale walk-in closet.
De tweede slaapkamer is eveneens ruim en kan perfect dienen als logeerkamer, thuiswerkplek of kinderkamer. Ook hier ziet u de strakke afwerking en het gebruik van hoogwaardige materialen terug. Heeft u nóg meer ruimte nodig? Dan biedt de overloop volop mogelijkheden om uw spullen netjes op te bergen. Kortom: een complete en comfortabele verdieping met alle rust en luxe die u mag verwachten.
Boven is het eenvoudig om van 1 slaapkamer 2 kinderkamers te maken plus een 'kleine' badkamer.
Buitenruimte
Wat een tuin! Rondom de woning ligt een fantastisch aangelegde buitenruimte, met volop privacy en zon op elk moment van de dag. Aan de achterzijde vindt u een lange, statige oprit met grind en parkeergelegenheid voor meerdere auto’s.
De tuin is een waar paradijs: kleurrijke borders, een strak gazon, hoge bomen en sfeervolle hoekjes. Tevens bevindt zich hier een moderne zwarte sauna, strak vormgegeven met veel hout en glas – perfect voor ontspanning. Centraal in de tuin staat een veranda met glazen wanden, een buitenhaard, barbecuehoek, zitgedeelte én televisieaansluiting: hier kunt u het hele jaar door genieten. Aansluitend vindt u een royale berging met houtopslag.
Verder is er volop ruimte voor gezellige zitjes en – misschien wel het mooiste – een aanlegsteiger aan het water met loungebanken. U kunt hier een verfrissende duik nemen, uw boot aanleggen of simpelweg genieten van het uitzicht. Dit is leven op z’n best.
Laat uw hart spreken en kom deze parel in het echt ervaren. Maar wees gewaarschuwd: u zou zomaar verliefd kunnen worden. Het gevoel van thuiskomen begint al bij het betreden van de oprijlaan en blijft u verrassen tot aan het zitje aan het water.
Dit is niet zomaar een woning – dit is een levensstijl waar u iedere dag van geniet. Wacht niet te lang, want plekken als deze zijn zeldzaam.
Algemene gegevens
- Type woning: vrijstaand
- Bouwjaar: 2009
- Aantal kamers: 3
- Aantal slaapkamers: 2
- Aantal badkamers: 1
- Parkeerruimte: 2 in de carport en ruim voldoende op eigen terrein
- Aanwezig: dakkapel/berging/garage/vlonder
- Ligging tuin: rondom
- Tuin bereik: voor/achter/opzij en via woning
Technische gegevens
- Warmwatervoorziening: Nefit Topline Aquapower+ HRC 25CW6
- Verwarmvoorziening: Nefit Topline Aquapower+ HRC 25CW6
- gashaard
- Voorzieningen: Veranda met houtkachel/Jacuzzi/walk-in closet, Sauna/Quooker
- Mechanische ventilatie: aanwezig
- Isolatie: dak/spouw/vloer volledig
- Dubbel glas: geheel
- Glasvezel kabel, TV kabel
- Kozijnen: hout
WILT U EVEN BINNEN KIJKEN?
Voor meer informatie omtrent deze woning, kunt u contact opnemen met ons kantoor in Veenendaal.
U bent van harte welkom! De beste indruk van deze woning krijgt u natuurlijk tijdens een bezichtiging. Wij proberen onze bezichtigingen altijd in samenspraak met verkoper en koper te plannen en nemen ruim de tijd, zodat u op uw gemak de woning kan bekijken en ervaren.
N.B. Aan de samenstelling van deze gegevens is maximale zorg besteed. Aan onvolkomenheden in de vermelde gegevens en tekeningen kunnen geen rechten en aanspraken worden ontleend.