Object detail
Algemeen
Luxe vrijstaande woning met eigentijdse architectuur, een stijlvolle afwerking die tot in detail klopt en dit alles op een toplocatie in Rhenen.
Deze vrijstaande woning aan de Rietgors 3 kijkt uit over het vogelenzangmeer en ligt aan de voet van de Grebbenberg; wat wil de natuurliefhebber nog meer? De woning combineert een modern design met een warme, huiselijke sfeer. De unieke gevel met h... Meer informatie
Deze vrijstaande woning aan de Rietgors 3 kijkt uit over het vogelenzangmeer en ligt aan de voet van de Grebbenberg; wat wil de natuurliefhebber nog meer? De woning combineert een modern design met een warme, huiselijke sfeer. De unieke gevel met h... Meer informatie
-
Kenmerken
Alle kenmerken Type object Woonhuis, eengezinswoning, vrijstaande woning Bouwperiode 2017 Aangeboden sinds Vrijdag 10 oktober 2025 -
Locatie
Kenmerken
| Overdracht | |
|---|---|
| Referentienummer | 08091 |
| Vraagprijs | € 997.500,- k.k. |
| Aanvaarding | In overleg |
| Aangeboden sinds | Vrijdag 10 oktober 2025 |
| Laatste wijziging | Maandag 3 november 2025 |
| Bouw | |
|---|---|
| Type object | Woonhuis, eengezinswoning, vrijstaande woning |
| Soort bouw | Bestaande bouw |
| Bouwperiode | 2017 |
| Dakbedekking | Bitumen, Dakpannen |
| Type dak | Zadeldak |
| Isolatievormen | Dakisolatie, Dubbel glas, HR-glas, Muurisolatie, Spouwmuren, Vloerisolatie, Volledig geïsoleerd |
| Oppervlaktes en inhoud | |
|---|---|
| Perceeloppervlakte | 370 m² |
| Woonoppervlakte | 186 m² |
| Inhoud | 714 m³ |
| Oppervlakte overige inpandige ruimten | 7 m² |
| Oppervlakte externe bergruimte | 8 m² |
| Oppervlakte gebouwgebonden buitenruimte | 5 m² |
| Indeling | |
|---|---|
| Aantal bouwlagen | 3 |
| Aantal kamers | 7 (waarvan 5 slaapkamers) |
| Aantal badkamers | 1 (en 2 aparte toiletten) |
| Tuin | |
|---|---|
| Type | Tuin rondom |
| Hoofdtuin | Ja |
| Oriëntering | West |
| Heeft een achterom | Ja |
| Staat | Goed onderhouden |
| Energieverbruik | |
|---|---|
| Energielabel | A |
| CV ketel | |
|---|---|
| CV ketel | Intergas |
| Warmtebron | Gas |
| Bouwjaar | 2017 |
| Combiketel | Ja |
| Eigendom | Eigendom |
| Uitrusting | |
|---|---|
| Aantal parkeerplaatsen | 2 |
| Warm water | CV-ketel |
| Verwarmingssysteem | Centrale verwarming, Vloerverwarming (gedeeltelijk) |
| Ventilatie methode | Mechanische ventilatie, Natuurlijke ventilatie |
| Keukenvoorzieningen | Inbouwapparatuur, Kookeiland |
| Badkamervoorzieningen | Douche, Dubbele wastafel, Inloopdouche, Vloerverwarming, Wastafel, Wastafelmeubel |
| Parkeergelegenheid | Parkeerplaats |
| Heeft een balkon | Ja |
| Heeft kabel-tv | Ja |
| Heeft een rookkanaal | Ja |
| Glasvezelaansluiting aanwezig | Ja |
| Tuin aanwezig | Ja |
| Telefoonaansluiting aanwezig | Ja |
| Beschikt over een internetverbinding | Ja |
| Heeft schuur/berging | Ja |
| Heeft zonwering | Ja |
| Heeft zonnepanelen | Ja |
| Heeft ventilatie | Ja |
| Kadastrale gegevens | |
|---|---|
| Kadastrale aanduiding | Rhenen E 4378 |
| Perceeloppervlakte | 370 m² |
Beschrijving
Luxe vrijstaande woning met eigentijdse architectuur, een stijlvolle afwerking die tot in detail klopt en dit alles op een toplocatie in Rhenen.
Deze vrijstaande woning aan de Rietgors 3 kijkt uit over het vogelenzangmeer en ligt aan de voet van de Grebbenberg; wat wil de natuurliefhebber nog meer? De woning combineert een modern design met een warme, huiselijke sfeer. De unieke gevel met houtaccenten en grote raampartijen verraadt direct dat hier met oog voor detail is gebouwd. Binnen wacht een zee aan ruimte – met maar liefst 185 m² woonoppervlak, vijf slaapkamers en een afwerking die elke centimeter laat stralen. De woonkeuken is strak, ruim en volledig uitgerust met hoogwaardige inbouwapparatuur, terwijl de woonkamer om de sfeervolle haard heen is ingericht en dankzij de vele ramen heerlijk licht is. Met een zonnige tuin, overkapping en eigen oprit met laadpunt voor de auto, woont u hier in luxe en rust, op slechts enkele minuten van natuur en voorzieningen.
De Rietgors ligt in een jonge, moderne wijk aan de rand van Rhenen, vlakbij de prachtige natuur van de Grebbeberg en de uiterwaarden van de Rijn en uitkijkend over het Vogelenzangmeer. Een omgeving waar rust en ruimte centraal staan, maar met winkels, scholen en sportfaciliteiten op korte afstand. De wijk is ruim opgezet met veel groen, brede straten en architectonisch opvallende woningen. Via de N225 en A12 bent u snel onderweg richting Wageningen, Veenendaal of Utrecht. Bovendien ligt het natuurgebied letterlijk om de hoek – perfect voor wandelingen, fietstochten of gewoon een momentje aan het water.
Begane grond
Via de ruime entree met modern toilet en trapopgang richting de eerste verdieping komt u in de woonkamer, waar de lichtinval direct opvalt. De stijlvolle haard vormt een subtiel middelpunt tussen de zit- en eethoek en zorgt voor warmte en sfeer. De keuken is een echte eyecatcher: strak vormgegeven met een groot kookeiland, composiet werkblad en alle apparatuur die u kunt wensen, waaronder een inductiekookplaat, plafondafzuiging, (stoom)oven, vaatwasser, koelkast, vriezer, Quooker en een volautomatische koffiemachine. De plafondhoge raampartijen bieden uitzicht op de groene omgeving en zorgen ook hier voor volop lichtinval.
Een extra kamer op de begane grond maakt deze etage compleet – ideaal als werkkamer of speelruimte. Zowel de woonkamer als de extra kamer zijn voorzien van openslaande deuren naar de achtertuin.
Eerste verdieping
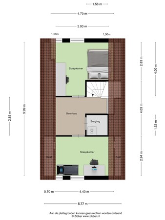
De eerste verdieping telt drie ruime slaapkamers, elk met een prettige lichtinval en nette afwerking. De hoofdslaapkamer ligt aan de achterzijde en beslaat de volledige breedte van de woning. De kamers aan de voorzijde grenzen beiden aan een balkon, waar u in de ochtendzon geniet van een vrij uitzicht over het vogelenzangmeer en de omliggende natuur. De badkamer is modern en praktisch ingericht met een dubbel wastafelmeubel, inloop regendouche en designradiator. Aan de overloop grenst bovendien een separaat toilet.
Tweede verdieping
Onder de hoge, karakteristieke kap bevindt zich een verrassend ruime verdieping met nog twee ruime slaapkamers en een berging/wasruimte. Dankzij de hoge nok en grote raampartijen voelt deze verdieping licht en open aan. Deze ruimte leent zich uitstekend als tienerverdieping, logeerruimte of thuiskantoor – aan flexibiliteit geen gebrek. En ook vanuit hier heeft u een prachtig uitzicht op het water en het achterliggende natuurgebied.
Buitenruimte
De achtertuin is verzorgd aangelegd met een groot terras, gazon en een houten overkapping waar u het hele jaar door beschut kunt zitten. De tuin biedt volop privacy en is groot genoeg voor spelende kinderen, zomerse diners of rustige avonden bij een haardvuur. De vrijstaande berging biedt extra opslagruimte, en de oprit aan de voorzijde biedt plek voor meerdere auto’s. Dankzij de moderne gevel, het stijlvolle kleurgebruik en de strakke lijnen is het geheel een lust voor het oog.
Afsluiting
Rietgors 3 is een woning die luxe, ruimte en stijl moeiteloos samenbrengt. Elk detail is doordacht, elke ruimte voelt comfortabel aan. Hier woont u modern en rustig, met de natuur binnen handbereik en de stad op korte afstand. Maak snel een afspraak voor een bezichtiging – deze woning laat zich pas echt ervaren als u er doorheen loopt.
Algemene gegevens
- Type woning: vrijstaande woning
- Bouwjaar: 2017
- Aantal kamers: 7
- Aantal slaapkamers: 5 + 1 werkkamer op de begane grond
- Aantal badkamers: 1
- Parkeerruimte: op de eigen oprit en in de directe omgeving.
- Aanwezig: eigen oprit, aanpandige berging, veranda met berging en een balkon
- Ligging tuin: west
- Tuin bereik: via de woning en een achterom
Technische gegevens
- Warmwatervoorziening: HR cv-ketel, Intergas, bouwjaar 2017
- Verwarmvoorziening: HR cv-ketel, Intergas, bouwjaar 2017
- Vloerverwarming: aanwezig op de begane grond en in de badkamer
- Zonnepanelen: 10 stuks
- Voorzieningen: buitenzonwering aanwezig
- Mechanische ventilatie: aanwezig
- Isolatie: dak-, spouw- en vloerisolatie (volledig geïsoleerd)
- Dubbel glas: geheel (HR++)
- Glasvezel kabel aanwezig
- Kozijnen: kunststof
WILT U EVEN BINNEN KIJKEN?
Voor meer informatie omtrent deze woning, kunt u contact opnemen met ons kantoor in Rhenen.
U bent van harte welkom! De beste indruk van deze woning krijgt u natuurlijk tijdens een bezichtiging. Wij proberen onze bezichtigingen altijd in samenspraak met verkoper en koper te plannen en nemen ruim de tijd, zodat u op uw gemak de woning kan bekijken en ervaren.
N.B. Aan de samenstelling van deze gegevens is maximale zorg besteed. Aan onvolkomenheden in de vermelde gegevens en tekeningen kunnen geen rechten en aanspraken worden ontleend.
Deze vrijstaande woning aan de Rietgors 3 kijkt uit over het vogelenzangmeer en ligt aan de voet van de Grebbenberg; wat wil de natuurliefhebber nog meer? De woning combineert een modern design met een warme, huiselijke sfeer. De unieke gevel met houtaccenten en grote raampartijen verraadt direct dat hier met oog voor detail is gebouwd. Binnen wacht een zee aan ruimte – met maar liefst 185 m² woonoppervlak, vijf slaapkamers en een afwerking die elke centimeter laat stralen. De woonkeuken is strak, ruim en volledig uitgerust met hoogwaardige inbouwapparatuur, terwijl de woonkamer om de sfeervolle haard heen is ingericht en dankzij de vele ramen heerlijk licht is. Met een zonnige tuin, overkapping en eigen oprit met laadpunt voor de auto, woont u hier in luxe en rust, op slechts enkele minuten van natuur en voorzieningen.
De Rietgors ligt in een jonge, moderne wijk aan de rand van Rhenen, vlakbij de prachtige natuur van de Grebbeberg en de uiterwaarden van de Rijn en uitkijkend over het Vogelenzangmeer. Een omgeving waar rust en ruimte centraal staan, maar met winkels, scholen en sportfaciliteiten op korte afstand. De wijk is ruim opgezet met veel groen, brede straten en architectonisch opvallende woningen. Via de N225 en A12 bent u snel onderweg richting Wageningen, Veenendaal of Utrecht. Bovendien ligt het natuurgebied letterlijk om de hoek – perfect voor wandelingen, fietstochten of gewoon een momentje aan het water.
Begane grond
Via de ruime entree met modern toilet en trapopgang richting de eerste verdieping komt u in de woonkamer, waar de lichtinval direct opvalt. De stijlvolle haard vormt een subtiel middelpunt tussen de zit- en eethoek en zorgt voor warmte en sfeer. De keuken is een echte eyecatcher: strak vormgegeven met een groot kookeiland, composiet werkblad en alle apparatuur die u kunt wensen, waaronder een inductiekookplaat, plafondafzuiging, (stoom)oven, vaatwasser, koelkast, vriezer, Quooker en een volautomatische koffiemachine. De plafondhoge raampartijen bieden uitzicht op de groene omgeving en zorgen ook hier voor volop lichtinval.
Een extra kamer op de begane grond maakt deze etage compleet – ideaal als werkkamer of speelruimte. Zowel de woonkamer als de extra kamer zijn voorzien van openslaande deuren naar de achtertuin.
Eerste verdieping
De eerste verdieping telt drie ruime slaapkamers, elk met een prettige lichtinval en nette afwerking. De hoofdslaapkamer ligt aan de achterzijde en beslaat de volledige breedte van de woning. De kamers aan de voorzijde grenzen beiden aan een balkon, waar u in de ochtendzon geniet van een vrij uitzicht over het vogelenzangmeer en de omliggende natuur. De badkamer is modern en praktisch ingericht met een dubbel wastafelmeubel, inloop regendouche en designradiator. Aan de overloop grenst bovendien een separaat toilet.
Tweede verdieping
Onder de hoge, karakteristieke kap bevindt zich een verrassend ruime verdieping met nog twee ruime slaapkamers en een berging/wasruimte. Dankzij de hoge nok en grote raampartijen voelt deze verdieping licht en open aan. Deze ruimte leent zich uitstekend als tienerverdieping, logeerruimte of thuiskantoor – aan flexibiliteit geen gebrek. En ook vanuit hier heeft u een prachtig uitzicht op het water en het achterliggende natuurgebied.
Buitenruimte
De achtertuin is verzorgd aangelegd met een groot terras, gazon en een houten overkapping waar u het hele jaar door beschut kunt zitten. De tuin biedt volop privacy en is groot genoeg voor spelende kinderen, zomerse diners of rustige avonden bij een haardvuur. De vrijstaande berging biedt extra opslagruimte, en de oprit aan de voorzijde biedt plek voor meerdere auto’s. Dankzij de moderne gevel, het stijlvolle kleurgebruik en de strakke lijnen is het geheel een lust voor het oog.
Afsluiting
Rietgors 3 is een woning die luxe, ruimte en stijl moeiteloos samenbrengt. Elk detail is doordacht, elke ruimte voelt comfortabel aan. Hier woont u modern en rustig, met de natuur binnen handbereik en de stad op korte afstand. Maak snel een afspraak voor een bezichtiging – deze woning laat zich pas echt ervaren als u er doorheen loopt.
Algemene gegevens
- Type woning: vrijstaande woning
- Bouwjaar: 2017
- Aantal kamers: 7
- Aantal slaapkamers: 5 + 1 werkkamer op de begane grond
- Aantal badkamers: 1
- Parkeerruimte: op de eigen oprit en in de directe omgeving.
- Aanwezig: eigen oprit, aanpandige berging, veranda met berging en een balkon
- Ligging tuin: west
- Tuin bereik: via de woning en een achterom
Technische gegevens
- Warmwatervoorziening: HR cv-ketel, Intergas, bouwjaar 2017
- Verwarmvoorziening: HR cv-ketel, Intergas, bouwjaar 2017
- Vloerverwarming: aanwezig op de begane grond en in de badkamer
- Zonnepanelen: 10 stuks
- Voorzieningen: buitenzonwering aanwezig
- Mechanische ventilatie: aanwezig
- Isolatie: dak-, spouw- en vloerisolatie (volledig geïsoleerd)
- Dubbel glas: geheel (HR++)
- Glasvezel kabel aanwezig
- Kozijnen: kunststof
WILT U EVEN BINNEN KIJKEN?
Voor meer informatie omtrent deze woning, kunt u contact opnemen met ons kantoor in Rhenen.
U bent van harte welkom! De beste indruk van deze woning krijgt u natuurlijk tijdens een bezichtiging. Wij proberen onze bezichtigingen altijd in samenspraak met verkoper en koper te plannen en nemen ruim de tijd, zodat u op uw gemak de woning kan bekijken en ervaren.
N.B. Aan de samenstelling van deze gegevens is maximale zorg besteed. Aan onvolkomenheden in de vermelde gegevens en tekeningen kunnen geen rechten en aanspraken worden ontleend.