Object detail
Algemeen
Wonen in hartje centrum van Rhenen
Aan de Plantsoenstraat 11 in Rhenen vindt u dit prettige en goed onderhouden appartement op de eerste woonlaag met een woonoppervlakte van circa 74m², twee slaapkamers, een ruime woonkamer met open keuken, een balkon en zowel een inpandige als externe berging. De woning is netjes verzorgd, praktisch ingedeeld en biedt volop mogelijkheden om er helemaal uw e... Meer informatie
Aan de Plantsoenstraat 11 in Rhenen vindt u dit prettige en goed onderhouden appartement op de eerste woonlaag met een woonoppervlakte van circa 74m², twee slaapkamers, een ruime woonkamer met open keuken, een balkon en zowel een inpandige als externe berging. De woning is netjes verzorgd, praktisch ingedeeld en biedt volop mogelijkheden om er helemaal uw e... Meer informatie
-
Kenmerken
Alle kenmerken Type object Appartement, galerijflat Bouwperiode 1983 Status Verkocht onder voorbehoud Aangeboden sinds Maandag 22 december 2025 -
Locatie
Kenmerken
| Overdracht | |
|---|---|
| Referentienummer | 08107 |
| Vraagprijs | € 339.500,- k.k. |
| Servicekosten | € 75,- |
| Status | Verkocht onder voorbehoud |
| Aanvaarding | In overleg |
| Aangeboden sinds | Maandag 22 december 2025 |
| Laatste wijziging | Dinsdag 24 februari 2026 |
| Bouw | |
|---|---|
| Type object | Appartement, galerijflat |
| Woonlaag | 1e woonlaag |
| Soort bouw | Bestaande bouw |
| Bouwperiode | 1983 |
| Dakbedekking | Bitumen |
| Type dak | Platdak |
| Isolatievormen | Dubbel glas, Muurisolatie, Spouwmuren |
| Oppervlaktes en inhoud | |
|---|---|
| Woonoppervlakte | 74 m² |
| Inhoud | 246 m³ |
| Oppervlakte overige inpandige ruimten | 0,2 m² |
| Oppervlakte externe bergruimte | 5 m² |
| Oppervlakte gebouwgebonden buitenruimte | 4 m² |
| Indeling | |
|---|---|
| Aantal bouwlagen | 1 |
| Aantal kamers | 3 (waarvan 2 slaapkamers) |
| Aantal badkamers | 1 (en 1 apart toilet) |
| Locatie | |
|---|---|
| Ligging | Dichtbij openbaar vervoer, In centrum, Nabij school, Nabij winkelcentrum |
| Energieverbruik | |
|---|---|
| Energielabel | C |
| CV ketel | |
|---|---|
| CV ketel | Intergas Kombi Kompact HRE 28/24A |
| Warmtebron | Gas |
| Bouwjaar | 2023 |
| Combiketel | Ja |
| Eigendom | Eigendom |
| Uitrusting | |
|---|---|
| Warm water | CV-ketel |
| Verwarmingssysteem | Centrale verwarming |
| Ventilatie methode | Mechanische ventilatie, Natuurlijke ventilatie |
| Badkamervoorzieningen | Douche, Wasmachineaansluiting, Wastafel |
| Heeft een balkon | Ja |
| Heeft kabel-tv | Ja |
| Heeft een lift | Ja |
| Beschikt over een internetverbinding | Ja |
| Heeft rolluiken | Ja |
| Heeft schuur/berging | Ja |
| Heeft ventilatie | Ja |
| Vereniging van Eigenaren | |
|---|---|
| Ingeschreven bij de KvK | Ja |
| Periodieke bijdrage | Ja |
| Opstal verzekering | Ja |
| Kadastrale gegevens | |
|---|---|
| Kadastrale aanduiding | Rhenen F 2000 |
| Omvang | Appartementsrecht of complex |
| Indexnummer | A36 |
Beschrijving
Wonen in hartje centrum van Rhenen
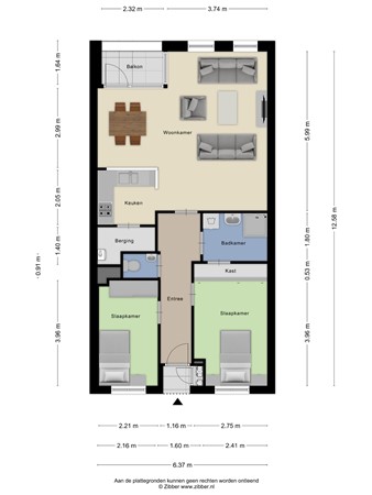
Aan de Plantsoenstraat 11 in Rhenen vindt u dit prettige en goed onderhouden appartement op de eerste woonlaag met een woonoppervlakte van circa 74m², twee slaapkamers, een ruime woonkamer met open keuken, een balkon en zowel een inpandige als externe berging. De woning is netjes verzorgd, praktisch ingedeeld en biedt volop mogelijkheden om er helemaal uw eigen plek van te maken. De woning grenst aan de fijne binnentuin. In het complex is ook een lift aanwezig.
U woont hier in hartje centrum van Rhenen, waar dagelijkse voorzieningen zich op korte afstand bevinden. Supermarkten, winkels en andere faciliteiten zijn eenvoudig bereikbaar, net als basisscholen, middelbare scholen en diverse sportverenigingen. Voor ontspanning en beweging liggen natuurgebieden en wandelroutes in de nabije omgeving. Openbaar vervoer, waaronder bus- en treinverbindingen, bevindt zich op korte afstand en zorgt voor een goede aansluiting richting omliggende plaatsen. Met de uitvalswegen in de nabijheid bent u bovendien snel onderweg naar andere delen van de regio.
Entree
U betreedt de woning via de gezamenlijke entree aan de straatzijde. Eenmaal binnen komt u in de hal, die direct een verzorgde en uitnodigende indruk maakt. Vanuit hier heeft u toegang tot alle vertrekken van de woning. De hal vormt het middelpunt van het appartement en verbindt de verschillende leefruimtes op een natuurlijke manier met elkaar.
Woonkamer
De ruime en open woonkamer is een heerlijke plek om thuis te komen. Dankzij de grote raampartijen geniet u hier van veel natuurlijke lichtinval, wat de ruimte een fijne sfeer geeft. Er is volop plaats voor zowel een comfortabele zithoek als een gezellige eethoek, waardoor u de woonkamer geheel naar eigen wens kunt inrichten. De directe verbinding met de open keuken en de toegang tot het balkon versterken het open karakter van deze leefruimte.
Keuken
Aangrenzend aan de woonkamer bevindt zich de open keuken met een praktisch L-vormig aanrechtblad. De keuken is voorzien van een gasfornuis met afzuigkap, een vaatwasmachine en een spoelbak en biedt voldoende opbergruimte in de lades en kastjes. De keuken is direct bruikbaar, terwijl er tegelijkertijd voldoende ruimte is om deze op termijn verder te vernieuwen of aan te passen aan uw persoonlijke smaak.
Slaapkamers
De twee slaapkamers grenzen beide aan de hal en bieden verrassend veel ruimte en flexibiliteit. Beide kamers zijn groot genoeg voor een comfortabel bed, een kledingkast en eventueel een bureau. Hierdoor zijn ze niet alleen geschikt als slaapkamer, maar ook uitstekend te gebruiken als thuiswerkplek, hobbyruimte of logeerkamer.
Sanitair
De badkamer, eveneens toegankelijk vanuit de hal, is volledig betegeld en verzorgd afgewerkt. U beschikt hier over een douchecabine, wastafel met spiegel en een radiator. De ruimte is instapklaar, maar biedt ook mogelijkheden om deze naar eigen wens te moderniseren. Daarnaast is er een separate toiletruimte, wat extra comfort en privacy biedt voor u en uw gasten.
Bergingen
Naast de inpandige berging in het appartement beschikt u ook over een externe berging in het pand. Deze combinatie zorgt voor volop bergruimte voor bijvoorbeeld fietsen, seizoensspullen en andere zaken die u graag netjes uit het zicht wilt houden, zonder in te leveren op wooncomfort.
Buitenruimte
Het balkon is bereikbaar vanuit de woonkamer en vormt een fijne verlenging van uw leefruimte. Hier is voldoende plek voor een tafeltje of buitenstoel, U kunt hier heerlijk genieten in de buitenlucht. Een prettige plek om de dag te beginnen of juist ontspannen af te sluiten.
Algemene gegevens
- Type woning: Appartement
- Bouwjaar: 1983
- Aantal kamers: 3
- Aantal slaapkamers: 2
- Aantal badkamers: 1
- Parkeerruimte: openbaar
- Aanwezig: berging
- Ligging balkon: oost
- Balkon bereik: via woonkamer
Technische gegevens
- Warmwatervoorziening: Intergas Kombi Kompact HRE 28/24A (2023)
- Verwarmvoorziening: Intergas Kombi Kompact HRE 28/24A (2023)
- Voorzieningen: balkon/rolluik
- Mechanische ventilatie: aanwezig
- Isolatie: spouw
- Dubbel glas: geheel
- glasvezel volgt binnenkort, TV kabel
- Kozijnen: kunststof
WILT U EVEN BINNEN KIJKEN?
Voor meer informatie omtrent deze woning, kunt u contact opnemen met ons kantoor in Rhenen.
U bent van harte welkom! De beste indruk van deze woning krijgt u natuurlijk tijdens een bezichtiging. Wij proberen onze bezichtigingen altijd in samenspraak met verkoper en koper te plannen en nemen ruim de tijd, zodat u op uw gemak de woning kan bekijken en ervaren.
N.B. Aan de samenstelling van deze gegevens is maximale zorg besteed. Aan onvolkomenheden in de vermelde gegevens en tekeningen kunnen geen rechten en aanspraken worden ontleend.
Aan de Plantsoenstraat 11 in Rhenen vindt u dit prettige en goed onderhouden appartement op de eerste woonlaag met een woonoppervlakte van circa 74m², twee slaapkamers, een ruime woonkamer met open keuken, een balkon en zowel een inpandige als externe berging. De woning is netjes verzorgd, praktisch ingedeeld en biedt volop mogelijkheden om er helemaal uw eigen plek van te maken. De woning grenst aan de fijne binnentuin. In het complex is ook een lift aanwezig.
U woont hier in hartje centrum van Rhenen, waar dagelijkse voorzieningen zich op korte afstand bevinden. Supermarkten, winkels en andere faciliteiten zijn eenvoudig bereikbaar, net als basisscholen, middelbare scholen en diverse sportverenigingen. Voor ontspanning en beweging liggen natuurgebieden en wandelroutes in de nabije omgeving. Openbaar vervoer, waaronder bus- en treinverbindingen, bevindt zich op korte afstand en zorgt voor een goede aansluiting richting omliggende plaatsen. Met de uitvalswegen in de nabijheid bent u bovendien snel onderweg naar andere delen van de regio.
Entree
U betreedt de woning via de gezamenlijke entree aan de straatzijde. Eenmaal binnen komt u in de hal, die direct een verzorgde en uitnodigende indruk maakt. Vanuit hier heeft u toegang tot alle vertrekken van de woning. De hal vormt het middelpunt van het appartement en verbindt de verschillende leefruimtes op een natuurlijke manier met elkaar.
Woonkamer
De ruime en open woonkamer is een heerlijke plek om thuis te komen. Dankzij de grote raampartijen geniet u hier van veel natuurlijke lichtinval, wat de ruimte een fijne sfeer geeft. Er is volop plaats voor zowel een comfortabele zithoek als een gezellige eethoek, waardoor u de woonkamer geheel naar eigen wens kunt inrichten. De directe verbinding met de open keuken en de toegang tot het balkon versterken het open karakter van deze leefruimte.
Keuken
Aangrenzend aan de woonkamer bevindt zich de open keuken met een praktisch L-vormig aanrechtblad. De keuken is voorzien van een gasfornuis met afzuigkap, een vaatwasmachine en een spoelbak en biedt voldoende opbergruimte in de lades en kastjes. De keuken is direct bruikbaar, terwijl er tegelijkertijd voldoende ruimte is om deze op termijn verder te vernieuwen of aan te passen aan uw persoonlijke smaak.
Slaapkamers
De twee slaapkamers grenzen beide aan de hal en bieden verrassend veel ruimte en flexibiliteit. Beide kamers zijn groot genoeg voor een comfortabel bed, een kledingkast en eventueel een bureau. Hierdoor zijn ze niet alleen geschikt als slaapkamer, maar ook uitstekend te gebruiken als thuiswerkplek, hobbyruimte of logeerkamer.
Sanitair
De badkamer, eveneens toegankelijk vanuit de hal, is volledig betegeld en verzorgd afgewerkt. U beschikt hier over een douchecabine, wastafel met spiegel en een radiator. De ruimte is instapklaar, maar biedt ook mogelijkheden om deze naar eigen wens te moderniseren. Daarnaast is er een separate toiletruimte, wat extra comfort en privacy biedt voor u en uw gasten.
Bergingen
Naast de inpandige berging in het appartement beschikt u ook over een externe berging in het pand. Deze combinatie zorgt voor volop bergruimte voor bijvoorbeeld fietsen, seizoensspullen en andere zaken die u graag netjes uit het zicht wilt houden, zonder in te leveren op wooncomfort.
Buitenruimte
Het balkon is bereikbaar vanuit de woonkamer en vormt een fijne verlenging van uw leefruimte. Hier is voldoende plek voor een tafeltje of buitenstoel, U kunt hier heerlijk genieten in de buitenlucht. Een prettige plek om de dag te beginnen of juist ontspannen af te sluiten.
Algemene gegevens
- Type woning: Appartement
- Bouwjaar: 1983
- Aantal kamers: 3
- Aantal slaapkamers: 2
- Aantal badkamers: 1
- Parkeerruimte: openbaar
- Aanwezig: berging
- Ligging balkon: oost
- Balkon bereik: via woonkamer
Technische gegevens
- Warmwatervoorziening: Intergas Kombi Kompact HRE 28/24A (2023)
- Verwarmvoorziening: Intergas Kombi Kompact HRE 28/24A (2023)
- Voorzieningen: balkon/rolluik
- Mechanische ventilatie: aanwezig
- Isolatie: spouw
- Dubbel glas: geheel
- glasvezel volgt binnenkort, TV kabel
- Kozijnen: kunststof
WILT U EVEN BINNEN KIJKEN?
Voor meer informatie omtrent deze woning, kunt u contact opnemen met ons kantoor in Rhenen.
U bent van harte welkom! De beste indruk van deze woning krijgt u natuurlijk tijdens een bezichtiging. Wij proberen onze bezichtigingen altijd in samenspraak met verkoper en koper te plannen en nemen ruim de tijd, zodat u op uw gemak de woning kan bekijken en ervaren.
N.B. Aan de samenstelling van deze gegevens is maximale zorg besteed. Aan onvolkomenheden in de vermelde gegevens en tekeningen kunnen geen rechten en aanspraken worden ontleend.