Object detail
Algemeen
Een eigen plek in het groen, waar rust en buitenleven de hoofdrol spelen
Midden in het groen van Vakantiepark De Thijmse Berg ligt deze nette bungalow, een recreatiewoning die direct een ontspannen indruk maakt. De ligging op een ruim perceel zorgt voor een vrij gevoel, terwijl de woning zelf compact maar doordacht is ingedeeld. Met een woonoppervlakte van 40 m² en twee slaapkamers biedt dez... Meer informatie
Midden in het groen van Vakantiepark De Thijmse Berg ligt deze nette bungalow, een recreatiewoning die direct een ontspannen indruk maakt. De ligging op een ruim perceel zorgt voor een vrij gevoel, terwijl de woning zelf compact maar doordacht is ingedeeld. Met een woonoppervlakte van 40 m² en twee slaapkamers biedt dez... Meer informatie
-
Kenmerken
Alle kenmerken Type object Woonhuis, stacaravan, vrijstaande woning Bouwperiode 2016 Status Nieuw in verkoop Aangeboden sinds Maandag 2 februari 2026 -
Locatie
Kenmerken
| Overdracht | |
|---|---|
| Referentienummer | 08154 |
| Vraagprijs | € 159.000,- k.k. |
| Inrichting | Ja |
| Inrichting | Gemeubileerd |
| Status | Nieuw in verkoop |
| Aanvaarding | In overleg |
| Aangeboden sinds | Maandag 2 februari 2026 |
| Bouw | |
|---|---|
| Type object | Woonhuis, stacaravan, vrijstaande woning |
| Soort bouw | Bestaande bouw |
| Bouwperiode | 2016 |
| Oppervlaktes en inhoud | |
|---|---|
| Perceeloppervlakte | 175 m² |
| Woonoppervlakte | 40 m² |
| Inhoud | 148 m³ |
| Oppervlakte gebouwgebonden buitenruimte | 14 m² |
| Indeling | |
|---|---|
| Aantal bouwlagen | 1 |
| Aantal kamers | 3 (waarvan 2 slaapkamers) |
| Aantal badkamers | 1 |
| Tuin | |
|---|---|
| Type | Tuin rondom |
| Staat | Prachtig aangelegd |
| Uitrusting | |
|---|---|
| Tuin aanwezig | Ja |
| Kadastrale gegevens | |
|---|---|
| Kadastrale aanduiding | Rhenen H 7426 |
| Perceeloppervlakte | 175 m² |
Beschrijving
Een eigen plek in het groen, waar rust en buitenleven de hoofdrol spelen
Midden in het groen van Vakantiepark De Thijmse Berg ligt deze nette bungalow, een recreatiewoning die direct een ontspannen indruk maakt. De ligging op een ruim perceel zorgt voor een vrij gevoel, terwijl de woning zelf compact maar doordacht is ingedeeld. Met een woonoppervlakte van 40 m² en twee slaapkamers biedt deze bungalow alles wat nodig is voor comfortabel recreatief verblijf, zonder overdaad. Binnen valt de rustige afwerking op, met een prettige lichtinval en een indeling die logisch aanvoelt. Buiten staat de natuur letterlijk op de voorgrond en vormt het dat heerlijke decor voor een verblijf waarin het tempo vanzelf omlaag gaat. De veranda nodigt uit tot lange ochtenden met koffie en stille avonden waarin alleen het ruisen van de bomen hoorbaar is. Dit is een plek voor wie bewust kiest voor eenvoud, rust en buitenleven. Een recreatiewoning waar u moeiteloos loskomt van de dagelijkse drukte en waar elk verblijf voelt als een korte ontsnapping naar het groen.
De buurt
Vakantiepark De Thijmse Berg ligt verscholen in het groen, aan de rand van Rhenen en op korte afstand van de Utrechtse Heuvelrug. Een omgeving die uitnodigt tot wandelen, fietsen en buiten zijn, met uitgestrekte bossen en natuurgebieden om de hoek. Tegelijkertijd zijn voorzieningen verrassend dichtbij. Het centrum van Rhenen, winkels, horeca en openbaar vervoer zijn binnen enkele minuten bereikbaar. Via de nabijgelegen uitvalswegen zijn plaatsen als Veenendaal, Wageningen en Utrecht goed te bereiken. De ligging combineert het vrije gevoel van een vakantiepark met de praktische voordelen van wonen nabij de stad.
Begane grond
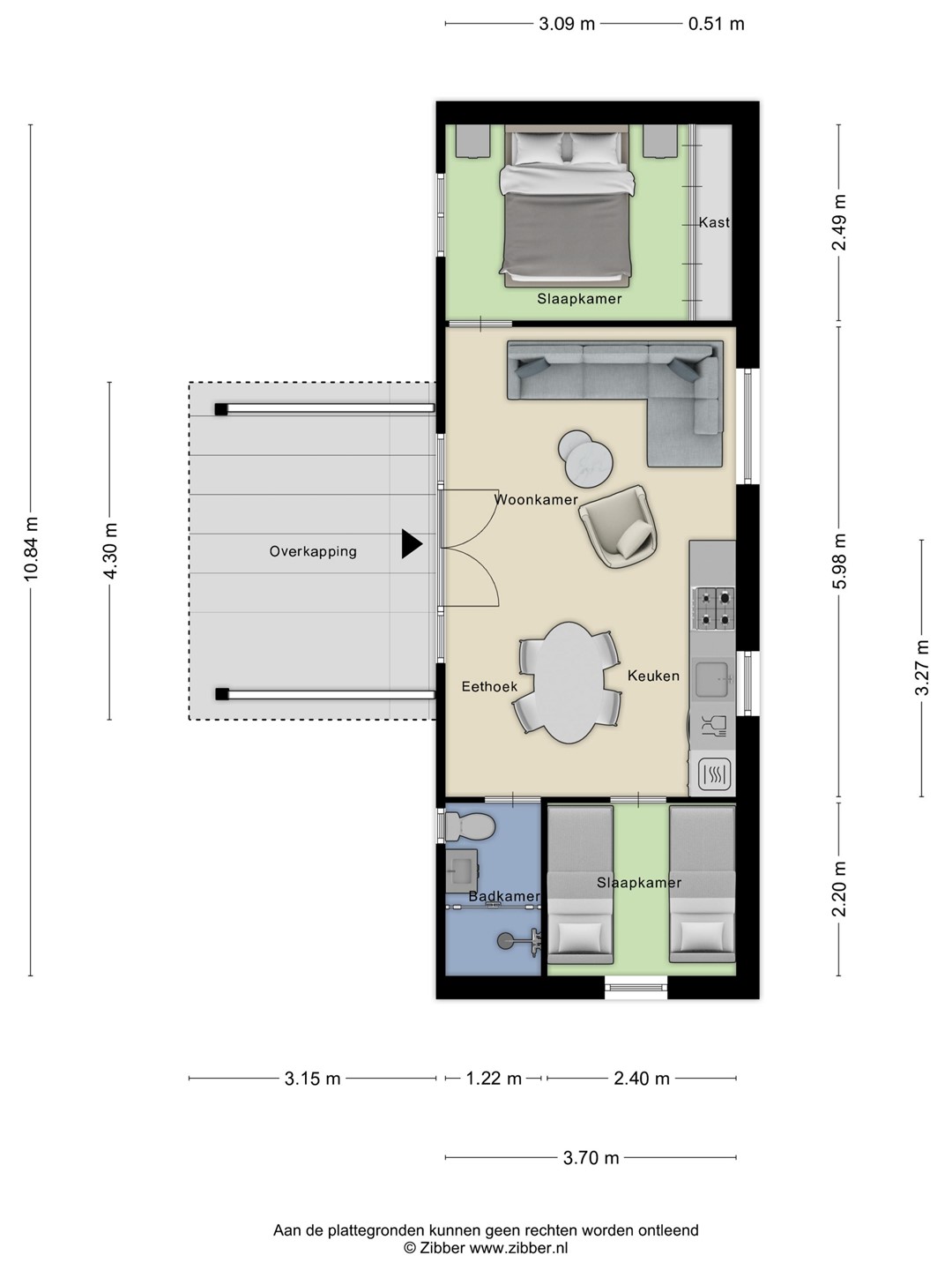
Via de veranda loopt u direct het leefgedeelte binnen, waar woonkamer, eetruimte en keuken op een natuurlijke manier in elkaar overlopen. Grote raampartijen en openslaande tuindeuren zorgen voor een prettige lichtinval en versterken het contact met buiten, terwijl de moderne afwerking en de visgraatvloer zorgen voor een rustige, tijdloze uitstraling. Er is voldoende ruimte voor een sfeervolle zithoek en voor een comfortabele eethoek bij de keuken.
De keuken is praktisch ingericht met een licht keukenmeubel en moderne apparatuur, waaronder een gaskookplaat, afzuigkap, koelkast, vaatwasser, koffiemachine en combimagnetron, waardoor u hier comfortabel kunt verblijven.
Aan weerszijden bevinden zich de twee slaapkamers, beide netjes afgewerkt. De hoofdslaapkamer is voorzien van een ingebouwde wandkast en de zogeheten kinderkamer van bovenkasten aan beide kanten. De badkamer is modern betegeld en uitgerust met een ruime douche, wastafelmeubel met verlichte spiegel en het toilet. Alles bevindt zich gelijkvloers, overzichtelijk en efficiënt, waardoor de bungalow prettig aanvoelt en optimaal wordt benut.
Buitenruimte
De buitenruimte is zonder twijfel een van de grote pluspunten van deze woning. Het perceel biedt volop privacy en wordt omringd door groen, waardoor u hier echt het gevoel heeft midden in de natuur te verblijven. Aan de woning grenst een overdekte veranda, een fijne plek om beschut buiten te zitten, ongeacht het seizoen. De tuin biedt meerdere mogelijkheden om zitplekken te creëren, te genieten van de zon of juist de schaduw op te zoeken. Dankzij de rustige ligging en natuurlijke begroeiing is dit een plek waar ontspanning vanzelfsprekend wordt en waar u de drukte moeiteloos achter u laat.
Bijzonderheden
• Nette, gelijkvloerse bungalow
• Gelegen op Vakantiepark De Thijmse Berg
• Woonoppervlakte: 40 m²
• Ruim perceel
• Lichte keuken met moderne apparatuur
• Twee slaapkamers
• Moderne badkamer met douche en toilet
• Overdekte veranda aan de woning
• Veel privacy door groene ligging
• Rustige, natuurlijke omgeving
• Goede bereikbaarheid van Rhenen en Veenendaal
Vraagprijs € 159.000,- excl. btw - exclusief eigen grond. Complete inrichting Inclusief
Afsluiting
Nieuwe Veenendaalseweg 229-223 is een plek voor wie rust waardeert en genoegen neemt met precies wat nodig is. Hier draait het om eenvoud, natuur en comfortabel verblijven in een groene omgeving. Een woning die uitnodigt om te vertragen en te genieten van het buitenleven. Maak een afspraak voor een bezichtiging en ervaar zelf wat deze bungalow zo bijzonder maakt.
Midden in het groen van Vakantiepark De Thijmse Berg ligt deze nette bungalow, een recreatiewoning die direct een ontspannen indruk maakt. De ligging op een ruim perceel zorgt voor een vrij gevoel, terwijl de woning zelf compact maar doordacht is ingedeeld. Met een woonoppervlakte van 40 m² en twee slaapkamers biedt deze bungalow alles wat nodig is voor comfortabel recreatief verblijf, zonder overdaad. Binnen valt de rustige afwerking op, met een prettige lichtinval en een indeling die logisch aanvoelt. Buiten staat de natuur letterlijk op de voorgrond en vormt het dat heerlijke decor voor een verblijf waarin het tempo vanzelf omlaag gaat. De veranda nodigt uit tot lange ochtenden met koffie en stille avonden waarin alleen het ruisen van de bomen hoorbaar is. Dit is een plek voor wie bewust kiest voor eenvoud, rust en buitenleven. Een recreatiewoning waar u moeiteloos loskomt van de dagelijkse drukte en waar elk verblijf voelt als een korte ontsnapping naar het groen.
De buurt
Vakantiepark De Thijmse Berg ligt verscholen in het groen, aan de rand van Rhenen en op korte afstand van de Utrechtse Heuvelrug. Een omgeving die uitnodigt tot wandelen, fietsen en buiten zijn, met uitgestrekte bossen en natuurgebieden om de hoek. Tegelijkertijd zijn voorzieningen verrassend dichtbij. Het centrum van Rhenen, winkels, horeca en openbaar vervoer zijn binnen enkele minuten bereikbaar. Via de nabijgelegen uitvalswegen zijn plaatsen als Veenendaal, Wageningen en Utrecht goed te bereiken. De ligging combineert het vrije gevoel van een vakantiepark met de praktische voordelen van wonen nabij de stad.
Begane grond
Via de veranda loopt u direct het leefgedeelte binnen, waar woonkamer, eetruimte en keuken op een natuurlijke manier in elkaar overlopen. Grote raampartijen en openslaande tuindeuren zorgen voor een prettige lichtinval en versterken het contact met buiten, terwijl de moderne afwerking en de visgraatvloer zorgen voor een rustige, tijdloze uitstraling. Er is voldoende ruimte voor een sfeervolle zithoek en voor een comfortabele eethoek bij de keuken.
De keuken is praktisch ingericht met een licht keukenmeubel en moderne apparatuur, waaronder een gaskookplaat, afzuigkap, koelkast, vaatwasser, koffiemachine en combimagnetron, waardoor u hier comfortabel kunt verblijven.
Aan weerszijden bevinden zich de twee slaapkamers, beide netjes afgewerkt. De hoofdslaapkamer is voorzien van een ingebouwde wandkast en de zogeheten kinderkamer van bovenkasten aan beide kanten. De badkamer is modern betegeld en uitgerust met een ruime douche, wastafelmeubel met verlichte spiegel en het toilet. Alles bevindt zich gelijkvloers, overzichtelijk en efficiënt, waardoor de bungalow prettig aanvoelt en optimaal wordt benut.
Buitenruimte
De buitenruimte is zonder twijfel een van de grote pluspunten van deze woning. Het perceel biedt volop privacy en wordt omringd door groen, waardoor u hier echt het gevoel heeft midden in de natuur te verblijven. Aan de woning grenst een overdekte veranda, een fijne plek om beschut buiten te zitten, ongeacht het seizoen. De tuin biedt meerdere mogelijkheden om zitplekken te creëren, te genieten van de zon of juist de schaduw op te zoeken. Dankzij de rustige ligging en natuurlijke begroeiing is dit een plek waar ontspanning vanzelfsprekend wordt en waar u de drukte moeiteloos achter u laat.
Bijzonderheden
• Nette, gelijkvloerse bungalow
• Gelegen op Vakantiepark De Thijmse Berg
• Woonoppervlakte: 40 m²
• Ruim perceel
• Lichte keuken met moderne apparatuur
• Twee slaapkamers
• Moderne badkamer met douche en toilet
• Overdekte veranda aan de woning
• Veel privacy door groene ligging
• Rustige, natuurlijke omgeving
• Goede bereikbaarheid van Rhenen en Veenendaal
Vraagprijs € 159.000,- excl. btw - exclusief eigen grond. Complete inrichting Inclusief
Afsluiting
Nieuwe Veenendaalseweg 229-223 is een plek voor wie rust waardeert en genoegen neemt met precies wat nodig is. Hier draait het om eenvoud, natuur en comfortabel verblijven in een groene omgeving. Een woning die uitnodigt om te vertragen en te genieten van het buitenleven. Maak een afspraak voor een bezichtiging en ervaar zelf wat deze bungalow zo bijzonder maakt.