Object detail
Algemeen
Een modern, licht en comfortabel gezinshuis met 148 m² woonoppervlakte , een fijne indeling over drie woonlagen, vier slaapkamers, een diepe achtertuin en als uniek pluspunt: een huislift die de woning levensloopbestendig maakt. Met energielabel A, hoogwaardige bouwkwaliteit en een rustige, kindvriendelijke omgeving vormt dit een ideaal thuis voor zowel gezinnen als voor mensen die gelijkvloers... Meer informatie
-
Kenmerken
Alle kenmerken Type object Woonhuis, eengezinswoning, tussenwoning Bouwperiode 2006 Status Nieuw in verkoop Aangeboden sinds Dinsdag 9 december 2025 -
Locatie
Kenmerken
| Overdracht | |
|---|---|
| Referentienummer | 01282 |
| Vraagprijs | € 699.000,- k.k. |
| Elektra | € 100,- |
| Gas | € 100,- |
| Water | € 45,- |
| Inrichting | Ja |
| Inrichting | Gestoffeerd |
| Status | Nieuw in verkoop |
| Aanvaarding | In overleg |
| Aangeboden sinds | Dinsdag 9 december 2025 |
| Laatste wijziging | Woensdag 17 december 2025 |
| Bouw | |
|---|---|
| Type object | Woonhuis, eengezinswoning, tussenwoning |
| Soort bouw | Bestaande bouw |
| Toegankelijkheid | Mindervaliden, Senioren |
| Bouwperiode | 2006 |
| Keurmerken | Aangepaste woning |
| Isolatievormen | Dubbel glas, HR-glas, Volledig geïsoleerd |
| Oppervlaktes en inhoud | |
|---|---|
| Perceeloppervlakte | 143 m² |
| Woonoppervlakte | 148 m² |
| Inhoud | 537 m³ |
| Oppervlakte overige inpandige ruimten | 3,5 m² |
| Oppervlakte externe bergruimte | 6 m² |
| Indeling | |
|---|---|
| Aantal bouwlagen | 3 |
| Aantal kamers | 5 (waarvan 4 slaapkamers) |
| Aantal badkamers | 1 (en 1 apart toilet) |
| Tuin | |
|---|---|
| Type | Achtertuin |
| Hoofdtuin | Ja |
| Oriëntering | Noord west |
| Heeft een achterom | Ja |
| Staat | Prachtig aangelegd |
| Tuin 2 - Type | Achtertuin |
| Tuin 2 - Oriëntering | Zuidoost |
| Tuin 2 - Staat | Prachtig aangelegd |
| Energieverbruik | |
|---|---|
| Energielabel | A |
| CV ketel | |
|---|---|
| CV ketel | ATAG E325EC |
| Warmtebron | Gas |
| Bouwjaar | 2015 |
| Combiketel | Ja |
| Eigendom | Huur |
| Uitrusting | |
|---|---|
| Warm water | CV-ketel |
| Verwarmingssysteem | Centrale verwarming |
| Ventilatie methode | Mechanische ventilatie |
| Heeft kabel-tv | Ja |
| Tuin aanwezig | Ja |
| Heeft schuur/berging | Ja |
| Heeft ventilatie | Ja |
| Kadastrale gegevens | |
|---|---|
| Kadastrale aanduiding | Haarlemmermeer Q 3499 |
| Perceeloppervlakte | 143 m² |
| Omvang | Geheel perceel |
| Eigendomsituatie | Eigen grond |
Beschrijving
Een modern, licht en comfortabel gezinshuis met 148 m² woonoppervlakte , een fijne indeling over drie woonlagen, vier slaapkamers, een diepe achtertuin en als uniek pluspunt: een huislift die de woning levensloopbestendig maakt. Met energielabel A, hoogwaardige bouwkwaliteit en een rustige, kindvriendelijke omgeving vormt dit een ideaal thuis voor zowel gezinnen als voor mensen die gelijkvloerse toegankelijkheid wensen. En dit alles op loopafstand van de bijzonder geliefde Toolenburgse plas.
Deze moderne woning uit 2006 combineert ruimte, comfort en gebruiksgemak op een uitzonderlijke manier. De ingebouwde huislift maakt de woning zowel geschikt voor valide én minder valide bewoners. De lift kan blijven, maar kan – indien gewenst – ook worden verwijderd. Zie Bijzonderheden voor de mogelijkheden en kosten.
De ruime woonkamer met openslaande deuren naar de tuin, de vier goed bemeten slaapkamers en de praktische tweede verdieping maken het geheel tot een heerlijke gezinswoning. Dankzij de uitstekende isolatie, HR++ glas en moderne bouwkwaliteit is het bovendien een bijzonder stille woning: je hoort vrijwel niets van de buren.
BUURT EN OMGEVING
De woning bevindt zich op een uitzonderlijk aantrekkelijke locatie in Toolenburg-West. Binnen enkele tientallen meters wandel je zo het recreatiegebied rond de Toolenburger Plas in — een geliefde plek waar bewoners komen om te sporten, wandelen, zwemmen, ontspannen of neer te strijken bij één van de horecagelegenheden aan het water. Deze directe toegang tot natuur en recreatie maakt de ligging van de woning uniek in Hoofddorp.
Daarnaast ligt winkelcentrum Toolenburg op loopafstand, waardoor dagelijkse boodschappen en diverse speciaalzaken altijd binnen handbereik zijn. Ook scholen, kinderopvang en meerdere sportverenigingen bevinden zich in de directe omgeving. Met de komst van het nabijgelegen Park21, dat zich de komende jaren verder ontwikkelt tot een groot en veelzijdig recreatie- en natuurgebied, wordt de leefomgeving nóg aantrekkelijker.
De wijk is ontworpen als een eigentijdse, groene tuinwijk met brede straten, speelplekken en alle denkbare voorzieningen binnen handbereik. Rust, ruimte en overzichtelijkheid zijn kenmerkend voor deze buurt.
Kortom: een rustige en groene woonomgeving met een uitzonderlijke combinatie van recreatie, voorzieningen en bereikbaarheid.
Op korte afstand van de woning bevinden zich:
• Winkelcentrum Toolenburg, met onder andere supermarkt, verswinkels, drogist en horecagelegenheden.
• Meerdere basisscholen, middelbare scholen en kinderopvanglocaties.
• De populaire recreatieplas Toolenburgerplas, ideaal voor wandelen, zwemmen, sporten en ontspannen.
• Sportvoorzieningen zoals voetbalvelden, fitnesslocaties en tennisbanen.
• Goede aansluiting op het openbaar vervoer, met haltes richting Haarlem, Schiphol, Amsterdam en Leiden.
• Snelle verbindingen met de A4, A5 en N201, waardoor autoverkeer uitstekend is ontsloten.
Toolenburg-West is een rustige, veilige en kindvriendelijke woonomgeving met volwassen groen, waterpartijen en een gevarieerde samenstelling van bewoners. De wijk is volledig ontwikkeld en staat bekend om haar prettige leefklimaat.
Deze moderne woning uit 2006 combineert ruimte, comfort en gebruiksgemak op een uitzonderlijke manier. De ingebouwde huislift maakt de woning zowel geschikt voor valide én minder valide bewoners. De lift kan blijven, maar kan – indien gewenst – ook worden verwijderd. Zie Bijzonderheden voor de mogelijkheden en kosten.
De ruime woonkamer met openslaande deuren naar de tuin, de vier goed bemeten slaapkamers en de praktische tweede verdieping maken het geheel tot een heerlijke gezinswoning. Dankzij de uitstekende isolatie, HR++ glas en moderne bouwkwaliteit is het bovendien een bijzonder stille woning: je hoort vrijwel niets van de buren.
BUURT EN OMGEVING
De woning bevindt zich op een uitzonderlijk aantrekkelijke locatie in Toolenburg-West. Binnen enkele tientallen meters wandel je zo het recreatiegebied rond de Toolenburger Plas in — een geliefde plek waar bewoners komen om te sporten, wandelen, zwemmen, ontspannen of neer te strijken bij één van de horecagelegenheden aan het water. Deze directe toegang tot natuur en recreatie maakt de ligging van de woning uniek in Hoofddorp.
Daarnaast ligt winkelcentrum Toolenburg op loopafstand, waardoor dagelijkse boodschappen en diverse speciaalzaken altijd binnen handbereik zijn. Ook scholen, kinderopvang en meerdere sportverenigingen bevinden zich in de directe omgeving. Met de komst van het nabijgelegen Park21, dat zich de komende jaren verder ontwikkelt tot een groot en veelzijdig recreatie- en natuurgebied, wordt de leefomgeving nóg aantrekkelijker.
De wijk is ontworpen als een eigentijdse, groene tuinwijk met brede straten, speelplekken en alle denkbare voorzieningen binnen handbereik. Rust, ruimte en overzichtelijkheid zijn kenmerkend voor deze buurt.
Kortom: een rustige en groene woonomgeving met een uitzonderlijke combinatie van recreatie, voorzieningen en bereikbaarheid.
Op korte afstand van de woning bevinden zich:
• Winkelcentrum Toolenburg, met onder andere supermarkt, verswinkels, drogist en horecagelegenheden.
• Meerdere basisscholen, middelbare scholen en kinderopvanglocaties.
• De populaire recreatieplas Toolenburgerplas, ideaal voor wandelen, zwemmen, sporten en ontspannen.
• Sportvoorzieningen zoals voetbalvelden, fitnesslocaties en tennisbanen.
• Goede aansluiting op het openbaar vervoer, met haltes richting Haarlem, Schiphol, Amsterdam en Leiden.
• Snelle verbindingen met de A4, A5 en N201, waardoor autoverkeer uitstekend is ontsloten.
Toolenburg-West is een rustige, veilige en kindvriendelijke woonomgeving met volwassen groen, waterpartijen en een gevarieerde samenstelling van bewoners. De wijk is volledig ontwikkeld en staat bekend om haar prettige leefklimaat.
Indeling
Begane grond
Entree met hal en toilet. Lichte tuingerichte woonkamer met openslaande deuren naar de achtertuin. Aan de voorzijde bevindt zich de ruime keuken. De huislift is vanaf deze verdieping toegankelijk.
Eerste verdieping
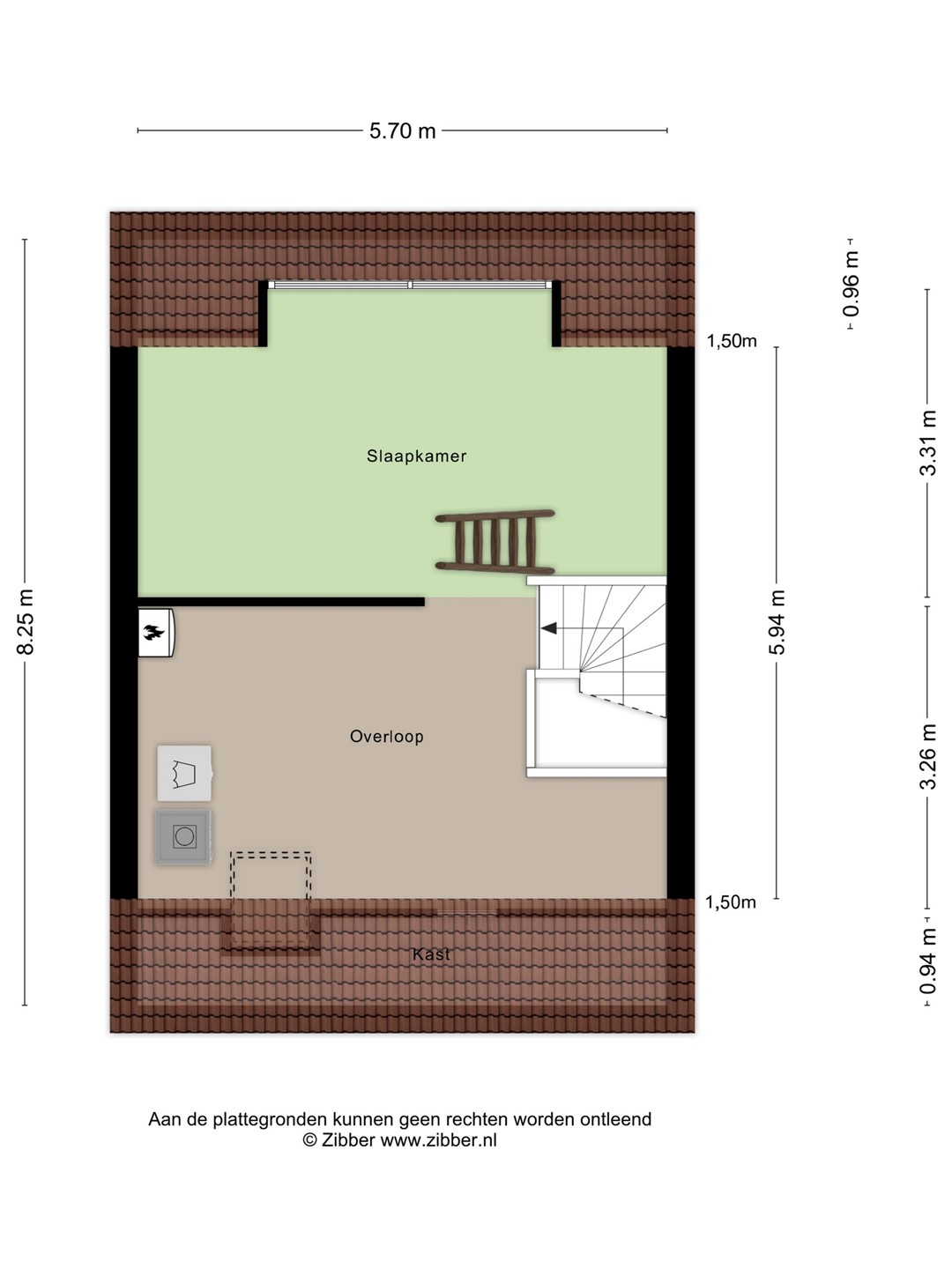
Overloop met toegang tot drie slaapkamers en de badkamer met douche, wastafel en toilet. Ook op deze verdieping komt de lift uit.
Tweede verdieping
Grote vierde slaapkamer/werkruimte, aparte was-/bergruimte. Tevens is hier een behoorlijke vliering, welke extra opslagmogelijkheden biedt.
Entree met hal en toilet. Lichte tuingerichte woonkamer met openslaande deuren naar de achtertuin. Aan de voorzijde bevindt zich de ruime keuken. De huislift is vanaf deze verdieping toegankelijk.
Eerste verdieping
Overloop met toegang tot drie slaapkamers en de badkamer met douche, wastafel en toilet. Ook op deze verdieping komt de lift uit.
Tweede verdieping
Grote vierde slaapkamer/werkruimte, aparte was-/bergruimte. Tevens is hier een behoorlijke vliering, welke extra opslagmogelijkheden biedt.
Tuin
De woning beschikt over zowel een voor- en een achtertuin. De achtertuin, met een achterom, is heerlijk diep te noemen, is voorzien van een stenen berging en biedt volop mogelijkheden voor verschillende zitplekken, speelruimte of een groene inrichting. De achtertuin is op het Noord-Westen gelegen, zon in de namiddag en vroege avonden.
Bijzonderheden
• Bouwjaar 2006
• Woonoppervlakte 148m² (NEN2580)
• Perceeloppervlakte 143 m²
• Energielabel A, HR++ beglazing
• Huislift aanwezig, woning is levensloopbestendig
• Lift kan blijven of worden verwijderd; kostenindicatie aanwezig:
• Vier slaapkamers
• Externe berging (6 m²)
• Rustige, kindvriendelijke omgeving
• Gratis parkeren
Ben je op zoek naar een ruime, moderne en comfortabele woning die ook nog eens volledig toekomstbestendig is? Dan is Wittenburg 17 zeker een bezichtiging waard. Maak snel een afspraak en ervaar zelf het woongenot van deze fijne en flexibel te gebruiken woning in het hart van Toolenburg!
• Woonoppervlakte 148m² (NEN2580)
• Perceeloppervlakte 143 m²
• Energielabel A, HR++ beglazing
• Huislift aanwezig, woning is levensloopbestendig
• Lift kan blijven of worden verwijderd; kostenindicatie aanwezig:
• Vier slaapkamers
• Externe berging (6 m²)
• Rustige, kindvriendelijke omgeving
• Gratis parkeren
Ben je op zoek naar een ruime, moderne en comfortabele woning die ook nog eens volledig toekomstbestendig is? Dan is Wittenburg 17 zeker een bezichtiging waard. Maak snel een afspraak en ervaar zelf het woongenot van deze fijne en flexibel te gebruiken woning in het hart van Toolenburg!