Object detail
General
Aan één van de meest karaktervolle lanen van Veenendaal staat deze indrukwekkende twee-onder-een-kapwoning die in alles groots aanvoelt. Met een woonoppervlakte van 251,8 m² en een perceel van maar liefst 855 m² is dit geen doorsnee woonhuis, maar een plek waar ruimte, comfort en vrijheid samenkomen in een zeldzaam harmonieus geheel.
Op zoek naar ruimte, comfort én een huis dat helemaal kla... More info
Op zoek naar ruimte, comfort én een huis dat helemaal kla... More info
-
Features
All characteristics Type of residence House, single-family house, semi-detached house Construction period 1975 Status New for sale Offered since 04 March 2026 -
Location
Features
| Offer | |
|---|---|
| Reference number | 07773 |
| Asking price | €1,084,000 |
| Electricity | €60 |
| Gas | €365 |
| Status | New for sale |
| Acceptance | By consultation |
| Offered since | 04 March 2026 |
| Construction | |
|---|---|
| Type of residence | House, single-family house, semi-detached house |
| Type of construction | Existing estate |
| Construction period | 1975 |
| Roof materials | Tiles |
| Rooftype | Front gable |
| Isolations | Cavity wall, Floor, HR glazing, Insulated glazing, Roof, Wall |
| Surfaces and content | |
|---|---|
| Plot size | 855 m² |
| Floor Surface | 252 m² |
| Content | 1,015 m³ |
| Surface area other inner rooms | 35 m² |
| External surface area | 51 m² |
| Layout | |
|---|---|
| Number of floors | 3 |
| Number of rooms | 7 (of which 6 bedrooms) |
| Number of bathrooms | 1 (and 1 separate toilet) |
| Outdoors | |
|---|---|
| Location | Near public transport, Near school, On a busy street |
| Garden | |
|---|---|
| Type | Back yard |
| Main garden | Yes |
| Orientation | North west |
| Has a backyard entrance | Yes |
| Condition | Normal |
| Garden 2 - Type | Front yard |
| Garden 2 - Orientation | South west |
| Garden 2 - Condition | Well maintained |
| Garden 3 - Type | Side yard |
| Garden 3 - Orientation | North east |
| Garden 3 - Condition | Well maintained |
| Energy consumption | |
|---|---|
| Energy certificate | A |
| Boiler | |
|---|---|
| Type of boiler | Nefit Topline HR 107 |
| Heating source | Gas |
| Year of manufacture | 2011 |
| Combiboiler | Yes |
| Boiler ownership | Owned |
| Features | |
|---|---|
| Number of parking spaces | 3 |
| Water heating | Central heating system |
| Heating | Central heating, Partial Floor heating, Wood stove |
| Ventilation method | Mechanical ventilation, Natural ventilation |
| Kitchen facilities | Built-in equipment |
| Bathroom facilities | Bath, Double sink, Toilet, Walkin shower, Washbasin furniture |
| Parking | Attached stone |
| Has a balcony | Yes |
| Has a flue tube | Yes |
| Has fibre optical cable | Yes |
| Garden available | Yes |
| Has a garage | Yes |
| Has a skylight | Yes |
| Has sliding doors | Yes |
| Has solar blinds | Yes |
| Has solar panels | Yes |
| Has ventilation | Yes |
| Cadastral informations | |
|---|---|
| Cadastral designation | Veenendaal B 5554 |
| Area | 855 m² |
Description
Aan één van de meest karaktervolle lanen van Veenendaal staat deze indrukwekkende twee-onder-een-kapwoning die in alles groots aanvoelt. Met een woonoppervlakte van 251,8 m² en een perceel van maar liefst 855 m² is dit geen doorsnee woonhuis, maar een plek waar ruimte, comfort en vrijheid samenkomen in een zeldzaam harmonieus geheel.
Op zoek naar ruimte, comfort én een huis dat helemaal klaar is voor de toekomst?
Deze recent verbouwde 2-onder-1-kapwoning heeft het allemaal: Een eigen oprit, garage én een ruime kantoorruimte achter de garage met eigen toegang, perfect voor werken aan huis of hobby’s!
Deze woning is voorzien van dakisolatie, spouwmuurisolatie, vloerisolatie en hoogrendementsglas en beschikt over Energielabel A.
Buiten geniet u van een diepe, strak aangelegde tuin (2025) op het westen met sproeiers én voorbereidingen voor een veranda en zwembad: hier maakt u straks uw ultieme buitenplek.
Binnen vindt u maar liefst 6 slaapkamers en een royale woonkamer met een heerlijk eet- en zitgedeelte voor gezellige avonden met familie en vrienden.
Binnen valt onmiddellijk op hoe licht en open het huis is opgezet. De leefruimtes zijn royaal bemeten, de zichtlijnen zijn lang en de indrukwekkende lichtkoepels in de keuken zorgen voor een bijna mediterrane sfeer. Met vijf volwaardige slaapkamers, een luxe badkamer, een sfeervolle houthaard, een grote tuinkamer en een uitzonderlijk diepe achtertuin biedt deze woning niet alleen vierkante meters, maar vooral mogelijkheden. Dit is een huis dat meegroeit met uw leven.
De buurt
De Kerkewijk behoort tot de meest geliefde woonlocaties van Veenendaal. Brede lanen, volwassen bomen en ruime kavels bepalen hier het straatbeeld. U woont op korte afstand van het centrum met winkels, horeca en voorzieningen, terwijl ook scholen, sportverenigingen en het station eenvoudig bereikbaar zijn. Dankzij de nabijgelegen A12 bent u bovendien snel onderweg richting Utrecht of Arnhem. Wat deze plek bijzonder maakt, is de combinatie van centrale ligging en een verrassend rustige woonbeleving. In de achtertuin ervaart u vooral groen, privacy en stilte.
Begane grond
De entree is ruim opgezet en vormt een statige binnenkomst met garderoberuimte, het toilet en trapopgang. Vanuit hier loopt u door naar de woonkamer aan de voorzijde, waar grote raampartijen zorgen voor aangenaam daglicht en de houthaard direct warmte en karakter toevoegt. De ruimte is royaal genoeg voor meerdere zithoeken, zonder aan intimiteit in te boeten. Aan de achterzijde opent het huis zich volledig. De leefkeuken vormt het kloppende hart van de woning en wordt bekroond door vier indrukwekkende lichtkoepels die het daglicht rijkelijk binnenlaten. De keuken is uitgevoerd in een grootse opstelling met granieten werkblad en voorzien van diverse inbouwapparatuur, waaronder een gas-op-glaskookplaat, oven, magnetron, vaatwasser en koelkast. Hier kookt u met uitzicht op de oprit, terwijl de eethoek naadloos aansluit op het terras met een schuifpui. Aansluitend vindt u de bijkeuken met doorgang naar de oprit en tuin — praktisch en doordacht.
Eerste verdieping
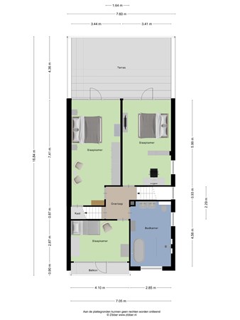
Op de eerste verdieping treft u drie ruime slaapkamers die stuk voor stuk comfortabel zijn bemeten. De slaapkamers aan de achterzijde beschikken over toegang tot het terras/platdak met uitzicht over de diepe tuin, terwijl de kamer aan de voorzijde beschikt over een eigen balkon. De grote badkamer is modern en luxe uitgevoerd met een vrijstaand ligbad, een royale inloop-regendouche, een wastafelmeubel met dubbele wasbak en wand-gemonteerde kranen, verlichte spiegel en een wandcloset. De hoogwaardige afwerking en het daglicht zorgen voor een spa-achtige sfeer.
Tweede verdieping
De tweede verdieping verrast met een ruime overloop en nog eens drie volwaardige slaapkamers, allen met een prettige lichtinval dankzij dakramen en dakkapellen. Deze verdieping is ideaal voor grotere gezinnen, logés of het creëren van een aparte werk- of hobbyzone. Ook hier is de afwerking verzorgd en consistent met de rest van het huis.
Buitenruimte
Wat deze woning werkelijk onderscheidt, is de uitzonderlijk diepe en brede achtertuin. Direct achter de woning ligt een royaal terras, perfect voor lange diners in de avondzon. Vervolgens strekt het perceel zich uit tot ver achter op de kavel, waardoor u een bijna parkachtige beleving ervaart. De groene erfafscheidingen zorgen voor optimale privacy. Direct aan de garage grenst de grote tuinkamer met een raampartij over de volle lengte. Deze ruimte is ideaal als kantoor aan huis, praktijkruimte, atelier of gastenverblijf. Hier werkt u in alle rust, los van het woonhuis, maar met alle comfort binnen handbereik. Aan de voorzijde beschikt u over een ruime oprit en toegang tot de garage, waardoor parkeren altijd comfortabel en op eigen terrein plaatsvindt.
Kerkewijk 158 is geen huis dat u simpelweg bekijkt; dit is een woning die u ervaart. De ruimte, het licht en de vrijheid geven direct een gevoel van groots wonen, zonder in te leveren op warmte en comfort. Hier krijgt uw dagelijks leven letterlijk meer ademruimte. Maak een afspraak voor een bezichtiging en ontdek zelf hoe bijzonder wonen op deze plek werkelijk is.
Algemene gegevens
- Type woning: Twee-onder-een-kap
- Bouwjaar: 1975
- Verbouwjaar: 2004 (aanbouw en verdieping) 2025(badkamer en isolatie)
- Aantal kamers: 7
- Aantal slaapkamers: 6
- Aantal badkamers: 1
- Parkeerruimte: op eigen oprit en openbaar
- Aanwezig: dakkapel/berging/garage
- Ligging tuin: noordwest
- Tuin bereik: voor/achter/opzij en via de woning
Technische gegevens
- Warmwatervoorziening: Nefit Topline HR-107 (2011)
- Verwarmvoorziening: Nefit Topline HR-107 (2011)
- Vloerverwarming: in de badkamer
- Zonnepanelen: 18 stuks
- Houtkachel
- Voorzieningen: lichtkoepels/buitenzonwering
- Mechanische ventilatie: in de badkamer
- Isolatie: dak/spouw/vloer aanwezig
- Dubbel glas: geheel/ behalve toiletraampje
- Glasvezel kabel, TV kabel
- Kozijnen: hout
WILT U EVEN BINNEN KIJKEN?
Voor meer informatie omtrent deze woning, kunt u contact opnemen met ons kantoor in Veenendaal.
U bent van harte welkom! De beste indruk van deze woning krijgt u natuurlijk tijdens een bezichtiging. Wij proberen onze bezichtigingen altijd in samenspraak met verkoper en koper te plannen en nemen ruim de tijd, zodat u op uw gemak de woning kan bekijken en ervaren.
N.B. Aan de samenstelling van deze gegevens is maximale zorg besteed. Aan onvolkomenheden in de vermelde gegevens en tekeningen kunnen geen rechten en aanspraken worden ontleend.
Op zoek naar ruimte, comfort én een huis dat helemaal klaar is voor de toekomst?
Deze recent verbouwde 2-onder-1-kapwoning heeft het allemaal: Een eigen oprit, garage én een ruime kantoorruimte achter de garage met eigen toegang, perfect voor werken aan huis of hobby’s!
Deze woning is voorzien van dakisolatie, spouwmuurisolatie, vloerisolatie en hoogrendementsglas en beschikt over Energielabel A.
Buiten geniet u van een diepe, strak aangelegde tuin (2025) op het westen met sproeiers én voorbereidingen voor een veranda en zwembad: hier maakt u straks uw ultieme buitenplek.
Binnen vindt u maar liefst 6 slaapkamers en een royale woonkamer met een heerlijk eet- en zitgedeelte voor gezellige avonden met familie en vrienden.
Binnen valt onmiddellijk op hoe licht en open het huis is opgezet. De leefruimtes zijn royaal bemeten, de zichtlijnen zijn lang en de indrukwekkende lichtkoepels in de keuken zorgen voor een bijna mediterrane sfeer. Met vijf volwaardige slaapkamers, een luxe badkamer, een sfeervolle houthaard, een grote tuinkamer en een uitzonderlijk diepe achtertuin biedt deze woning niet alleen vierkante meters, maar vooral mogelijkheden. Dit is een huis dat meegroeit met uw leven.
De buurt
De Kerkewijk behoort tot de meest geliefde woonlocaties van Veenendaal. Brede lanen, volwassen bomen en ruime kavels bepalen hier het straatbeeld. U woont op korte afstand van het centrum met winkels, horeca en voorzieningen, terwijl ook scholen, sportverenigingen en het station eenvoudig bereikbaar zijn. Dankzij de nabijgelegen A12 bent u bovendien snel onderweg richting Utrecht of Arnhem. Wat deze plek bijzonder maakt, is de combinatie van centrale ligging en een verrassend rustige woonbeleving. In de achtertuin ervaart u vooral groen, privacy en stilte.
Begane grond
De entree is ruim opgezet en vormt een statige binnenkomst met garderoberuimte, het toilet en trapopgang. Vanuit hier loopt u door naar de woonkamer aan de voorzijde, waar grote raampartijen zorgen voor aangenaam daglicht en de houthaard direct warmte en karakter toevoegt. De ruimte is royaal genoeg voor meerdere zithoeken, zonder aan intimiteit in te boeten. Aan de achterzijde opent het huis zich volledig. De leefkeuken vormt het kloppende hart van de woning en wordt bekroond door vier indrukwekkende lichtkoepels die het daglicht rijkelijk binnenlaten. De keuken is uitgevoerd in een grootse opstelling met granieten werkblad en voorzien van diverse inbouwapparatuur, waaronder een gas-op-glaskookplaat, oven, magnetron, vaatwasser en koelkast. Hier kookt u met uitzicht op de oprit, terwijl de eethoek naadloos aansluit op het terras met een schuifpui. Aansluitend vindt u de bijkeuken met doorgang naar de oprit en tuin — praktisch en doordacht.
Eerste verdieping
Op de eerste verdieping treft u drie ruime slaapkamers die stuk voor stuk comfortabel zijn bemeten. De slaapkamers aan de achterzijde beschikken over toegang tot het terras/platdak met uitzicht over de diepe tuin, terwijl de kamer aan de voorzijde beschikt over een eigen balkon. De grote badkamer is modern en luxe uitgevoerd met een vrijstaand ligbad, een royale inloop-regendouche, een wastafelmeubel met dubbele wasbak en wand-gemonteerde kranen, verlichte spiegel en een wandcloset. De hoogwaardige afwerking en het daglicht zorgen voor een spa-achtige sfeer.
Tweede verdieping
De tweede verdieping verrast met een ruime overloop en nog eens drie volwaardige slaapkamers, allen met een prettige lichtinval dankzij dakramen en dakkapellen. Deze verdieping is ideaal voor grotere gezinnen, logés of het creëren van een aparte werk- of hobbyzone. Ook hier is de afwerking verzorgd en consistent met de rest van het huis.
Buitenruimte
Wat deze woning werkelijk onderscheidt, is de uitzonderlijk diepe en brede achtertuin. Direct achter de woning ligt een royaal terras, perfect voor lange diners in de avondzon. Vervolgens strekt het perceel zich uit tot ver achter op de kavel, waardoor u een bijna parkachtige beleving ervaart. De groene erfafscheidingen zorgen voor optimale privacy. Direct aan de garage grenst de grote tuinkamer met een raampartij over de volle lengte. Deze ruimte is ideaal als kantoor aan huis, praktijkruimte, atelier of gastenverblijf. Hier werkt u in alle rust, los van het woonhuis, maar met alle comfort binnen handbereik. Aan de voorzijde beschikt u over een ruime oprit en toegang tot de garage, waardoor parkeren altijd comfortabel en op eigen terrein plaatsvindt.
Kerkewijk 158 is geen huis dat u simpelweg bekijkt; dit is een woning die u ervaart. De ruimte, het licht en de vrijheid geven direct een gevoel van groots wonen, zonder in te leveren op warmte en comfort. Hier krijgt uw dagelijks leven letterlijk meer ademruimte. Maak een afspraak voor een bezichtiging en ontdek zelf hoe bijzonder wonen op deze plek werkelijk is.
Algemene gegevens
- Type woning: Twee-onder-een-kap
- Bouwjaar: 1975
- Verbouwjaar: 2004 (aanbouw en verdieping) 2025(badkamer en isolatie)
- Aantal kamers: 7
- Aantal slaapkamers: 6
- Aantal badkamers: 1
- Parkeerruimte: op eigen oprit en openbaar
- Aanwezig: dakkapel/berging/garage
- Ligging tuin: noordwest
- Tuin bereik: voor/achter/opzij en via de woning
Technische gegevens
- Warmwatervoorziening: Nefit Topline HR-107 (2011)
- Verwarmvoorziening: Nefit Topline HR-107 (2011)
- Vloerverwarming: in de badkamer
- Zonnepanelen: 18 stuks
- Houtkachel
- Voorzieningen: lichtkoepels/buitenzonwering
- Mechanische ventilatie: in de badkamer
- Isolatie: dak/spouw/vloer aanwezig
- Dubbel glas: geheel/ behalve toiletraampje
- Glasvezel kabel, TV kabel
- Kozijnen: hout
WILT U EVEN BINNEN KIJKEN?
Voor meer informatie omtrent deze woning, kunt u contact opnemen met ons kantoor in Veenendaal.
U bent van harte welkom! De beste indruk van deze woning krijgt u natuurlijk tijdens een bezichtiging. Wij proberen onze bezichtigingen altijd in samenspraak met verkoper en koper te plannen en nemen ruim de tijd, zodat u op uw gemak de woning kan bekijken en ervaren.
N.B. Aan de samenstelling van deze gegevens is maximale zorg besteed. Aan onvolkomenheden in de vermelde gegevens en tekeningen kunnen geen rechten en aanspraken worden ontleend.