Object detail
General
Op een toplocatie, nabij diverse natuurgebieden en met een vrij uitzicht over de groene omgeving, staat deze verrassend ruime tweekapper met eigen oprit en garage. Deze moderne gezinswoning beschikt over een indeling die meegroeit met elke woonfase
Achter de verzorgde gevel van deze twee-onder-een-kapwoning gaat een huis schuil dat rust, ruimte en degelijkheid op een prettige manier samenbre... More info
Achter de verzorgde gevel van deze twee-onder-een-kapwoning gaat een huis schuil dat rust, ruimte en degelijkheid op een prettige manier samenbre... More info
-
Features
All characteristics Type of residence House, single-family house, semi-detached house Construction period 1992 Status Sold Offered since 05 January 2026 -
Location
Features
| Offer | |
|---|---|
| Reference number | 08062 |
| Asking price | €699,500 |
| Water | €16 |
| Status | Sold |
| Acceptance | By consultation |
| Offered since | 05 January 2026 |
| Last updated | 13 February 2026 |
| Construction | |
|---|---|
| Type of residence | House, single-family house, semi-detached house |
| Type of construction | Existing estate |
| Construction period | 1992 |
| Roof materials | Tiles |
| Rooftype | Front gable |
| Isolations | Cavity wall, Floor, HR glazing, Insulated glazing, Roof, Wall |
| Surfaces and content | |
|---|---|
| Plot size | 345 m² |
| Floor Surface | 140 m² |
| Content | 583 m³ |
| Surface area other inner rooms | 25 m² |
| External surface area | 6 m² |
| Layout | |
|---|---|
| Number of floors | 3 |
| Number of rooms | 6 (of which 5 bedrooms) |
| Number of bathrooms | 1 (and 1 separate toilet) |
| Outdoors | |
|---|---|
| Location | Near public transport, Near school, On a quiet street, Residential area, Unobstructed view |
| Garden | |
|---|---|
| Type | Back yard |
| Main garden | Yes |
| Orientation | North east |
| Has a backyard entrance | Yes |
| Condition | Well maintained |
| Garden 2 - Type | Front yard |
| Garden 2 - Orientation | South west |
| Garden 2 - Condition | Well maintained |
| Energy consumption | |
|---|---|
| Energy certificate | A |
| Boiler | |
|---|---|
| Type of boiler | Vailant Eco Tec Plus VHR 25-30/5-5 |
| Heating source | Gas |
| Year of manufacture | 2020 |
| Combiboiler | Yes |
| Boiler ownership | Owned |
| Features | |
|---|---|
| Number of parking spaces | 3 |
| Number of covered parking spaces | 1 |
| Water heating | Central heating system |
| Heating | Central heating, Partial Floor heating |
| Ventilation method | Mechanical ventilation, Natural ventilation |
| Bathroom facilities | Bath, Toilet, Underfloorheating, Walkin shower, Washbasin furniture |
| Parking | Attached stone |
| Has fibre optical cable | Yes |
| Garden available | Yes |
| Has a garage | Yes |
| Has an internet connection | Yes |
| Has a skylight | Yes |
| Has ventilation | Yes |
| Cadastral informations | |
|---|---|
| Cadastral designation | Veenendaal B 7941 |
| Area | 345 m² |
Description
Op een toplocatie, nabij diverse natuurgebieden en met een vrij uitzicht over de groene omgeving, staat deze verrassend ruime tweekapper met eigen oprit en garage. Deze moderne gezinswoning beschikt over een indeling die meegroeit met elke woonfase
Achter de verzorgde gevel van deze twee-onder-een-kapwoning gaat een huis schuil dat rust, ruimte en degelijkheid op een prettige manier samenbrengt. Met een woonoppervlakte van circa 140 m², een eigen oprit, een garage van circa 25 m² en een verzorgd perceel van 345 m² biedt deze woning alles wat nodig is voor comfortabel wonen, vandaag én in de toekomst. De woning is door de jaren heen uitstekend onderhouden en dat merkt u direct bij binnenkomst. De ruimtes zijn logisch ingedeeld, goed van formaat en prettig met elkaar verbonden, waardoor het huis een natuurlijke flow heeft. Grote raampartijen zorgen voor een fijne lichtinval, terwijl de afwerking neutraal en verzorgd is gehouden, zodat u hier eenvoudig uw eigen woonstijl kunt doorvoeren. Ook buiten is de balans goed: een beschutte tuin met groen, privacy en meerdere zitmogelijkheden maakt het geheel compleet. Dit is een woning die niet schreeuwt, maar overtuigt door zijn indeling, staat van onderhoud en wooncomfort.
De buurt
Dijkstraat-West ligt in een rustige, groene woonomgeving in Veenendaal, met alle dagelijkse voorzieningen binnen handbereik. Op loopafstand vindt u diverse natuurgebieden. Winkels, supermarkten, scholen en sportfaciliteiten bevinden zich op korte afstand, net als het centrum van Veenendaal. Ook de bereikbaarheid is prettig: via de nabijgelegen uitvalswegen bent u snel op de A12 en A15, terwijl het openbaar vervoer goed geregeld is met NS station Veenendaal-West en Veenendaal Centrum in de buurt. De wijk kenmerkt zich door een ruim opgezette structuur, volwassen groen en een gemoedelijke sfeer. Een fijne plek voor wie rustig wil wonen zonder afstand te doen van bereikbaarheid en voorzieningen.
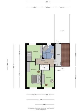
Begane grond
Via de eigen oprit bereikt u de overdekte entree van de woning. In de hal valt direct het verzorgde karakter op. Hier bevinden zich het toilet, de trapopgang en toegang tot het leefgedeelte. De woonkamer is ruim opgezet en dankzij de grote raampartijen aangenaam licht. Vanuit de woonkamer heeft u een schitterend vrij uitzicht op de groene omgeving. Er is voldoende ruimte voor een comfortabele zithoek én een royale eettafel. De keuken sluit hier logisch op aan en is praktisch ingericht, met volop werk- en kastruimte en diverse inbouwapparatuur. Zo beschikt u over een inductiekookplaat, afzuigkap, combi-oven en koelkast. Vanuit de keuken is er direct contact met de tuin, wat het dagelijks gebruik prettig maakt. De begane grond voelt overzichtelijk en ruimtelijk aan, met een indeling die zowel praktisch als uitnodigend is.
Eerste verdieping
Op de eerste verdieping bevinden zich drie volwaardige slaapkamers, elk met een prettig formaat en een rustige uitstraling. De kamers zijn flexibel in te delen en daarmee geschikt als slaap-, werk- of hobbyruimte. De badkamer is compleet uitgevoerd met een ligbad, separate douche, wastafelmeubel en tweede toilet. Dankzij het raam is er natuurlijke ventilatie en daglicht, wat bijdraagt aan het comfort. Ook hier is de afwerking verzorgd en functioneel, waardoor de verdieping direct goed te gebruiken is, met ruimte voor eventuele modernisering naar eigen smaak. Aan de overloop grenst een ruime berging/wasruimte, met een deur richting het platdak van de garage.
Tweede verdieping
De tweede verdieping verrast door de hoeveelheid bruikbare ruimte. Hier bevinden zich twee extra slaapkamers met daglicht; beide zijn ook ideaal als werkplek of logeerkamer. De schuine kap geeft de ruimte karakter, terwijl de vaste elementen zorgen voor een praktische indeling. Daarnaast is er volop bergruimte aanwezig achter de knieschotten, voor extra opbergmogelijkheden. Een verdieping die zich moeiteloos aanpast aan veranderende woonwensen.
Buitenruimte
De tuin is verzorgd aangelegd en biedt een prettige mix van groen, bestrating en privacy. Meerdere zitplekken maken het mogelijk om op verschillende momenten van de dag van zon of schaduw te genieten. De erfafscheiding zorgt voor beschutting, terwijl het groen een rustige uitstraling geeft. De garage van circa 25 m² is bereikbaar via de oprit en biedt ruimte voor zowel een auto als extra opslag. De eigen oprit maakt parkeren op eigen terrein vanzelfsprekend en draagt bij aan het dagelijkse gemak.
Afsluiting
Dijkstraat-West 164 is een woning die klopt in indeling, onderhoud en uitstraling. Een huis waar u zonder haast kunt landen en dat tegelijkertijd ruimte biedt om verder te groeien. De combinatie van woonoppervlakte, perceelgrootte en praktische voorzieningen maakt dit een bijzonder compleet geheel. De toplocatie met vrij uitzicht maakt het plaatje compleet.
Algemene gegevens
- Type woning: twee-onder-één-kap
- Bouwjaar: 1992
- Verbouwjaar: 2017 kozijnen boven
- Aantal kamers: 6
- Aantal slaapkamers: 5
- Aantal badkamers: 1
- Parkeerruimte: 2 op de oprit, 1 in de garage en openbaar
- Aanwezig: garage
- Ligging tuin: noordoost
- Tuin bereik: opzij en via de woning
Technische gegevens
- Warmwatervoorziening: Vailant Eco Tec Plus (2020)
- Verwarmvoorziening: Vailant Eco Tec Plus (2020)
- Vloerverwarming: aanwezig op begane grond en badkamer
- Zonnepanelen: 10 stuks
- Voorzieningen: eigen oprit / inductieplaat
- Mechanische ventilatie: aanwezig
- Isolatie: dak/spouw/vloer aanwezig
- Dubbel glas: geheel
- Glasvezel kabel, TV kabel
- Kozijnen: hout/kunststof
WILT U EVEN BINNEN KIJKEN?
Voor meer informatie omtrent deze woning, kunt u contact opnemen met ons kantoor in Veenendaal op telefoonnummer 0318-559600.
U bent van harte welkom! De beste indruk van deze woning krijgt u natuurlijk tijdens een bezichtiging. Wij proberen onze bezichtigingen altijd in samenspraak met verkoper en koper te plannen en nemen ruim de tijd, zodat u op uw gemak de woning kan bekijken en ervaren.
N.B. Aan de samenstelling van deze gegevens is maximale zorg besteed. Aan onvolkomenheden in de vermelde gegevens en tekeningen kunnen geen rechten en aanspraken worden ontleend.
Achter de verzorgde gevel van deze twee-onder-een-kapwoning gaat een huis schuil dat rust, ruimte en degelijkheid op een prettige manier samenbrengt. Met een woonoppervlakte van circa 140 m², een eigen oprit, een garage van circa 25 m² en een verzorgd perceel van 345 m² biedt deze woning alles wat nodig is voor comfortabel wonen, vandaag én in de toekomst. De woning is door de jaren heen uitstekend onderhouden en dat merkt u direct bij binnenkomst. De ruimtes zijn logisch ingedeeld, goed van formaat en prettig met elkaar verbonden, waardoor het huis een natuurlijke flow heeft. Grote raampartijen zorgen voor een fijne lichtinval, terwijl de afwerking neutraal en verzorgd is gehouden, zodat u hier eenvoudig uw eigen woonstijl kunt doorvoeren. Ook buiten is de balans goed: een beschutte tuin met groen, privacy en meerdere zitmogelijkheden maakt het geheel compleet. Dit is een woning die niet schreeuwt, maar overtuigt door zijn indeling, staat van onderhoud en wooncomfort.
De buurt
Dijkstraat-West ligt in een rustige, groene woonomgeving in Veenendaal, met alle dagelijkse voorzieningen binnen handbereik. Op loopafstand vindt u diverse natuurgebieden. Winkels, supermarkten, scholen en sportfaciliteiten bevinden zich op korte afstand, net als het centrum van Veenendaal. Ook de bereikbaarheid is prettig: via de nabijgelegen uitvalswegen bent u snel op de A12 en A15, terwijl het openbaar vervoer goed geregeld is met NS station Veenendaal-West en Veenendaal Centrum in de buurt. De wijk kenmerkt zich door een ruim opgezette structuur, volwassen groen en een gemoedelijke sfeer. Een fijne plek voor wie rustig wil wonen zonder afstand te doen van bereikbaarheid en voorzieningen.
Begane grond
Via de eigen oprit bereikt u de overdekte entree van de woning. In de hal valt direct het verzorgde karakter op. Hier bevinden zich het toilet, de trapopgang en toegang tot het leefgedeelte. De woonkamer is ruim opgezet en dankzij de grote raampartijen aangenaam licht. Vanuit de woonkamer heeft u een schitterend vrij uitzicht op de groene omgeving. Er is voldoende ruimte voor een comfortabele zithoek én een royale eettafel. De keuken sluit hier logisch op aan en is praktisch ingericht, met volop werk- en kastruimte en diverse inbouwapparatuur. Zo beschikt u over een inductiekookplaat, afzuigkap, combi-oven en koelkast. Vanuit de keuken is er direct contact met de tuin, wat het dagelijks gebruik prettig maakt. De begane grond voelt overzichtelijk en ruimtelijk aan, met een indeling die zowel praktisch als uitnodigend is.
Eerste verdieping
Op de eerste verdieping bevinden zich drie volwaardige slaapkamers, elk met een prettig formaat en een rustige uitstraling. De kamers zijn flexibel in te delen en daarmee geschikt als slaap-, werk- of hobbyruimte. De badkamer is compleet uitgevoerd met een ligbad, separate douche, wastafelmeubel en tweede toilet. Dankzij het raam is er natuurlijke ventilatie en daglicht, wat bijdraagt aan het comfort. Ook hier is de afwerking verzorgd en functioneel, waardoor de verdieping direct goed te gebruiken is, met ruimte voor eventuele modernisering naar eigen smaak. Aan de overloop grenst een ruime berging/wasruimte, met een deur richting het platdak van de garage.
Tweede verdieping
De tweede verdieping verrast door de hoeveelheid bruikbare ruimte. Hier bevinden zich twee extra slaapkamers met daglicht; beide zijn ook ideaal als werkplek of logeerkamer. De schuine kap geeft de ruimte karakter, terwijl de vaste elementen zorgen voor een praktische indeling. Daarnaast is er volop bergruimte aanwezig achter de knieschotten, voor extra opbergmogelijkheden. Een verdieping die zich moeiteloos aanpast aan veranderende woonwensen.
Buitenruimte
De tuin is verzorgd aangelegd en biedt een prettige mix van groen, bestrating en privacy. Meerdere zitplekken maken het mogelijk om op verschillende momenten van de dag van zon of schaduw te genieten. De erfafscheiding zorgt voor beschutting, terwijl het groen een rustige uitstraling geeft. De garage van circa 25 m² is bereikbaar via de oprit en biedt ruimte voor zowel een auto als extra opslag. De eigen oprit maakt parkeren op eigen terrein vanzelfsprekend en draagt bij aan het dagelijkse gemak.
Afsluiting
Dijkstraat-West 164 is een woning die klopt in indeling, onderhoud en uitstraling. Een huis waar u zonder haast kunt landen en dat tegelijkertijd ruimte biedt om verder te groeien. De combinatie van woonoppervlakte, perceelgrootte en praktische voorzieningen maakt dit een bijzonder compleet geheel. De toplocatie met vrij uitzicht maakt het plaatje compleet.
Algemene gegevens
- Type woning: twee-onder-één-kap
- Bouwjaar: 1992
- Verbouwjaar: 2017 kozijnen boven
- Aantal kamers: 6
- Aantal slaapkamers: 5
- Aantal badkamers: 1
- Parkeerruimte: 2 op de oprit, 1 in de garage en openbaar
- Aanwezig: garage
- Ligging tuin: noordoost
- Tuin bereik: opzij en via de woning
Technische gegevens
- Warmwatervoorziening: Vailant Eco Tec Plus (2020)
- Verwarmvoorziening: Vailant Eco Tec Plus (2020)
- Vloerverwarming: aanwezig op begane grond en badkamer
- Zonnepanelen: 10 stuks
- Voorzieningen: eigen oprit / inductieplaat
- Mechanische ventilatie: aanwezig
- Isolatie: dak/spouw/vloer aanwezig
- Dubbel glas: geheel
- Glasvezel kabel, TV kabel
- Kozijnen: hout/kunststof
WILT U EVEN BINNEN KIJKEN?
Voor meer informatie omtrent deze woning, kunt u contact opnemen met ons kantoor in Veenendaal op telefoonnummer 0318-559600.
U bent van harte welkom! De beste indruk van deze woning krijgt u natuurlijk tijdens een bezichtiging. Wij proberen onze bezichtigingen altijd in samenspraak met verkoper en koper te plannen en nemen ruim de tijd, zodat u op uw gemak de woning kan bekijken en ervaren.
N.B. Aan de samenstelling van deze gegevens is maximale zorg besteed. Aan onvolkomenheden in de vermelde gegevens en tekeningen kunnen geen rechten en aanspraken worden ontleend.