Object detail
Algemeen
Vlot wonen met licht, comfort en een vleugje design – precies wat u zoekt
Op zoek naar een appartement dat moeiteloos combineert wat u écht belangrijk vindt – ruimte, comfort en een moderne uitstraling? Dan voelt Nieuweweg 118 meteen als thuiskomen. Dit driekamerappartement, gelegen op de bovenste verdieping van een kleinschalig en eigentijds complex, heeft een woonoppervlakte van 57 m² en b... Meer informatie
Op zoek naar een appartement dat moeiteloos combineert wat u écht belangrijk vindt – ruimte, comfort en een moderne uitstraling? Dan voelt Nieuweweg 118 meteen als thuiskomen. Dit driekamerappartement, gelegen op de bovenste verdieping van een kleinschalig en eigentijds complex, heeft een woonoppervlakte van 57 m² en b... Meer informatie
-
Kenmerken
Alle kenmerken Type object Appartement, bovenwoning Bouwperiode 1998 Status Nieuw in verkoop Aangeboden sinds Vrijdag 17 oktober 2025 -
Locatie
Kenmerken
Overdracht | |
---|---|
Referentienummer | 08103 |
Vraagprijs | € 315.000,- k.k. |
Servicekosten | € 110,- |
Inrichting | Niet gestoffeerd |
Inrichting | Niet gemeubileerd |
Status | Nieuw in verkoop |
Aanvaarding | In overleg |
Aangeboden sinds | Vrijdag 17 oktober 2025 |
Bouw | |
---|---|
Type object | Appartement, bovenwoning |
Woonlaag | 2e woonlaag |
Soort bouw | Bestaande bouw |
Bouwperiode | 1998 |
Isolatievormen | Dakisolatie, Dubbel glas, Spouwmuren |
Oppervlaktes en inhoud | |
---|---|
Woonoppervlakte | 57 m² |
Inhoud | 187 m³ |
Oppervlakte externe bergruimte | 5 m² |
Oppervlakte gebouwgebonden buitenruimte | 12 m² |
Indeling | |
---|---|
Aantal bouwlagen | 1 |
Aantal kamers | 3 (waarvan 2 slaapkamers) |
Aantal badkamers | 1 (en 1 apart toilet) |
Energieverbruik | |
---|---|
Energielabel | B |
CV ketel | |
---|---|
CV ketel | ATAG |
Warmtebron | Gas |
Bouwjaar | 2023 |
Eigendom | Eigendom |
Uitrusting | |
---|---|
Warm water | CV-ketel |
Verwarmingssysteem | Centrale verwarming |
Ventilatie methode | Mechanische ventilatie |
Badkamervoorzieningen | Douche, Wasmachineaansluiting, Wastafel, Wastafelmeubel |
Heeft een balkon | Ja |
Heeft kabel-tv | Ja |
Glasvezelaansluiting aanwezig | Ja |
Heeft schuur/berging | Ja |
Heeft zonwering | Ja |
Heeft ventilatie | Ja |
Vereniging van Eigenaren | |
---|---|
Ingeschreven bij de KvK | Ja |
Periodieke bijdrage | Ja |
Reservefonds | Ja |
Meer jaren onderhoudsplan | Ja |
Opstal verzekering | Ja |
Kadastrale gegevens | |
---|---|
Kadastrale aanduiding | Veenendaal H 3108 |
Omvang | Appartementsrecht of complex |
Beschrijving
Vlot wonen met licht, comfort en een vleugje design – precies wat u zoekt
Op zoek naar een appartement dat moeiteloos combineert wat u écht belangrijk vindt – ruimte, comfort en een moderne uitstraling? Dan voelt Nieuweweg 118 meteen als thuiskomen. Dit driekamerappartement, gelegen op de bovenste verdieping van een kleinschalig en eigentijds complex, heeft een woonoppervlakte van 57 m² en biedt een verrassend ruimtelijk gevoel dankzij de hoge plafonds en grote raampartijen. Het interieur is strak afgewerkt, met lichte vloeren, neutrale tinten en een inrichting die rust en harmonie uitstraalt. De woonkamer grenst direct aan het zonnige balkon, waar u kunt genieten van de middagzon en het uitzicht over de wijk. Daarnaast beschikt het over twee slaapkamers, een moderne badkamer en een separate berging. Een appartement dat perfect aansluit bij de wensen van wie modern wil wonen, zonder in te leveren op gemak of sfeer.
De buurt
Nieuweweg 118 ligt in een rustig en verzorgd deel van Veenendaal, met alle dagelijkse voorzieningen binnen handbereik. Supermarkten, winkels en gezellige eetgelegenheden bevinden zich op loopafstand, terwijl ook het levendige centrum slechts enkele minuten fietsen is. Het NS-station en de snelwegen A12 en A15 zorgen voor een uitstekende bereikbaarheid richting Utrecht en Arnhem. Voor ontspanning in het groen hoeft u niet ver: u wandelt zo naar de nabijgelegen speelvelden en parken, of fietst in korte tijd naar de bossen van de Utrechtse Heuvelrug.
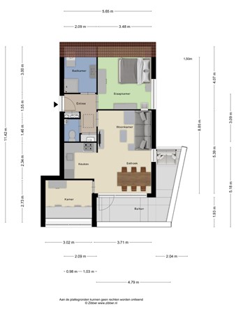
Indeling
De hoofdentree van het complex oogt verzorgd en modern. Via het gezamenlijke portiek met brievenbussen, intercom en trappenhuis bereikt u de verdieping. In de onderbouw beschikt u over een eigen berging – ideaal voor fietsen, gereedschap of seizoensspullen. Parkeren kan direct voor de deur, zonder gedoe met vergunningen.
Bij binnenkomst in het appartement valt meteen de aangename lichtinval op. De woonkamer strekt zich uit over de volle breedte en heeft een eigentijdse uitstraling met strakke wanden, een lichte laminaatvloer en de toegang tot het balkon. Dankzij de grote raampartijen baadt de ruimte in daglicht, waardoor het interieur uitnodigend en warm aanvoelt.
De open keuken vormt het hart van het appartement en is uitgerust met een gaskookplaat, combi-oven, afzuigkap en koel-/vriescombinatie – een praktische indeling die zowel compact als efficiënt is. Er is voldoende plaats voor een royale eettafel, perfect voor lange avonden met vrienden of een rustig ontbijt met uitzicht.
De hoofdslaapkamer biedt volop ruimte voor een tweepersoonsbed en kledingkast. De tweede kamer is nu ingericht als thuiskantoor, met een breed werkblad onder de ramen; een heerlijke plek voor wie regelmatig thuiswerkt of een rustige hobbyruimte zoekt. De badkamer is modern afgewerkt met lichte wandtegels, donkere vloertegels, een ruime douche, wastafelmeubel en aansluiting voor wasapparatuur – praktisch en stijlvol tegelijk.
Buitenruimte
Het balkon grenst direct aan de woonkamer en ligt op het zonnige westen. Hier kunt u in alle rust een kop koffie drinken of genieten van de ondergaande zon. De ligging zorgt voor veel privacy, terwijl u toch uitkijkt over de levendige omgeving.
Algemene gegevens
- Type woning: appartement
- Bouwjaar: 1998
- Verbouwjaar: 2018
- Aantal kamers: 3
- Aantal slaapkamers: 2
- Aantal badkamers: 1
- Parkeerruimte: openbaar in nabije omgeving
- Aanwezig: berging
- Ligging balkon: west
- Balkon bereik: via woonkamer
Technische gegevens
- Warmwatervoorziening: ATAG CV-ketel bouwjaar 2023
- Verwarmvoorziening: ATAG CV-ketel bouwjaar 2023
- Voorzieningen: buitenzonwering
- Mechanische ventilatie aanwezig
- Isolatie: dak/spouw
- Dubbel glas: geheel
- Glasvezel kabel, TV kabel
- Kozijnen: hout
WILT U EVEN BINNEN KIJKEN?
Voor meer informatie omtrent deze woning, kunt u contact opnemen met ons kantoor in Veenendaal op telefoonnummer 0318-559600.
U bent van harte welkom! De beste indruk van deze woning krijgt u natuurlijk tijdens een bezichtiging. Wij proberen onze bezichtigingen altijd in samenspraak met verkoper en koper te plannen en nemen ruim de tijd, zodat u op uw gemak de woning kan bekijken en ervaren.
N.B. Aan de samenstelling van deze gegevens is maximale zorg besteed. Aan onvolkomenheden in de vermelde gegevens en tekeningen kunnen geen rechten en aanspraken worden ontleend.
Op zoek naar een appartement dat moeiteloos combineert wat u écht belangrijk vindt – ruimte, comfort en een moderne uitstraling? Dan voelt Nieuweweg 118 meteen als thuiskomen. Dit driekamerappartement, gelegen op de bovenste verdieping van een kleinschalig en eigentijds complex, heeft een woonoppervlakte van 57 m² en biedt een verrassend ruimtelijk gevoel dankzij de hoge plafonds en grote raampartijen. Het interieur is strak afgewerkt, met lichte vloeren, neutrale tinten en een inrichting die rust en harmonie uitstraalt. De woonkamer grenst direct aan het zonnige balkon, waar u kunt genieten van de middagzon en het uitzicht over de wijk. Daarnaast beschikt het over twee slaapkamers, een moderne badkamer en een separate berging. Een appartement dat perfect aansluit bij de wensen van wie modern wil wonen, zonder in te leveren op gemak of sfeer.
De buurt
Nieuweweg 118 ligt in een rustig en verzorgd deel van Veenendaal, met alle dagelijkse voorzieningen binnen handbereik. Supermarkten, winkels en gezellige eetgelegenheden bevinden zich op loopafstand, terwijl ook het levendige centrum slechts enkele minuten fietsen is. Het NS-station en de snelwegen A12 en A15 zorgen voor een uitstekende bereikbaarheid richting Utrecht en Arnhem. Voor ontspanning in het groen hoeft u niet ver: u wandelt zo naar de nabijgelegen speelvelden en parken, of fietst in korte tijd naar de bossen van de Utrechtse Heuvelrug.
Indeling
De hoofdentree van het complex oogt verzorgd en modern. Via het gezamenlijke portiek met brievenbussen, intercom en trappenhuis bereikt u de verdieping. In de onderbouw beschikt u over een eigen berging – ideaal voor fietsen, gereedschap of seizoensspullen. Parkeren kan direct voor de deur, zonder gedoe met vergunningen.
Bij binnenkomst in het appartement valt meteen de aangename lichtinval op. De woonkamer strekt zich uit over de volle breedte en heeft een eigentijdse uitstraling met strakke wanden, een lichte laminaatvloer en de toegang tot het balkon. Dankzij de grote raampartijen baadt de ruimte in daglicht, waardoor het interieur uitnodigend en warm aanvoelt.
De open keuken vormt het hart van het appartement en is uitgerust met een gaskookplaat, combi-oven, afzuigkap en koel-/vriescombinatie – een praktische indeling die zowel compact als efficiënt is. Er is voldoende plaats voor een royale eettafel, perfect voor lange avonden met vrienden of een rustig ontbijt met uitzicht.
De hoofdslaapkamer biedt volop ruimte voor een tweepersoonsbed en kledingkast. De tweede kamer is nu ingericht als thuiskantoor, met een breed werkblad onder de ramen; een heerlijke plek voor wie regelmatig thuiswerkt of een rustige hobbyruimte zoekt. De badkamer is modern afgewerkt met lichte wandtegels, donkere vloertegels, een ruime douche, wastafelmeubel en aansluiting voor wasapparatuur – praktisch en stijlvol tegelijk.
Buitenruimte
Het balkon grenst direct aan de woonkamer en ligt op het zonnige westen. Hier kunt u in alle rust een kop koffie drinken of genieten van de ondergaande zon. De ligging zorgt voor veel privacy, terwijl u toch uitkijkt over de levendige omgeving.
Algemene gegevens
- Type woning: appartement
- Bouwjaar: 1998
- Verbouwjaar: 2018
- Aantal kamers: 3
- Aantal slaapkamers: 2
- Aantal badkamers: 1
- Parkeerruimte: openbaar in nabije omgeving
- Aanwezig: berging
- Ligging balkon: west
- Balkon bereik: via woonkamer
Technische gegevens
- Warmwatervoorziening: ATAG CV-ketel bouwjaar 2023
- Verwarmvoorziening: ATAG CV-ketel bouwjaar 2023
- Voorzieningen: buitenzonwering
- Mechanische ventilatie aanwezig
- Isolatie: dak/spouw
- Dubbel glas: geheel
- Glasvezel kabel, TV kabel
- Kozijnen: hout
WILT U EVEN BINNEN KIJKEN?
Voor meer informatie omtrent deze woning, kunt u contact opnemen met ons kantoor in Veenendaal op telefoonnummer 0318-559600.
U bent van harte welkom! De beste indruk van deze woning krijgt u natuurlijk tijdens een bezichtiging. Wij proberen onze bezichtigingen altijd in samenspraak met verkoper en koper te plannen en nemen ruim de tijd, zodat u op uw gemak de woning kan bekijken en ervaren.
N.B. Aan de samenstelling van deze gegevens is maximale zorg besteed. Aan onvolkomenheden in de vermelde gegevens en tekeningen kunnen geen rechten en aanspraken worden ontleend.