Object detail
Algemeen
Royale tweekapper met een moderne uitstraling, warme sfeer en heerlijke tuin aan een autoluw hofje
Sommige woningen verrassen u zodra de voordeur opengaat. Moerschans 27 is zo’n plek. Deze stijlvolle twee-onder-een-kapwoning combineert ruimte met rust en heeft een afwerking die meteen vertrouwen wekt. Alles is tot in detail verzorgd: van de visgraatvloer tot de moderne deuren, en van de stra... Meer informatie
Sommige woningen verrassen u zodra de voordeur opengaat. Moerschans 27 is zo’n plek. Deze stijlvolle twee-onder-een-kapwoning combineert ruimte met rust en heeft een afwerking die meteen vertrouwen wekt. Alles is tot in detail verzorgd: van de visgraatvloer tot de moderne deuren, en van de stra... Meer informatie
-
Kenmerken
Alle kenmerken Type object Woonhuis, eengezinswoning, twee onder een kap woning Bouwperiode 2000 Status Onder bod Aangeboden sinds Vrijdag 17 oktober 2025 -
Locatie
Kenmerken
| Overdracht | |
|---|---|
| Referentienummer | 08065 |
| Vraagprijs | € 600.000,- k.k. |
| Status | Onder bod |
| Aanvaarding | In overleg |
| Aangeboden sinds | Vrijdag 17 oktober 2025 |
| Laatste wijziging | Dinsdag 16 december 2025 |
| Bouw | |
|---|---|
| Type object | Woonhuis, eengezinswoning, twee onder een kap woning |
| Soort bouw | Bestaande bouw |
| Bouwperiode | 2000 |
| Dakbedekking | Bitumen, Dakpannen |
| Type dak | Lessenaarsdak |
| Isolatievormen | Dakisolatie, Dubbel glas, HR-glas, Muurisolatie, Spouwmuren, Vloerisolatie, Volledig geïsoleerd |
| Oppervlaktes en inhoud | |
|---|---|
| Perceeloppervlakte | 197 m² |
| Woonoppervlakte | 136 m² |
| Inhoud | 550 m³ |
| Oppervlakte overige inpandige ruimten | 20 m² |
| Oppervlakte externe bergruimte | 3 m² |
| Oppervlakte gebouwgebonden buitenruimte | 17 m² |
| Indeling | |
|---|---|
| Aantal bouwlagen | 3 |
| Aantal kamers | 5 (waarvan 4 slaapkamers) |
| Aantal badkamers | 1 (en 1 apart toilet) |
| Tuin | |
|---|---|
| Type | Voortuin |
| Oriëntering | West |
| Staat | Goed onderhouden |
| Tuin 2 - Type | Achtertuin |
| Tuin 2 - Hoofdtuin | Ja |
| Tuin 2 - Oriëntering | Oosten |
| Tuin 2 - Staat | Prachtig aangelegd |
| Energieverbruik | |
|---|---|
| Energielabel | A |
| CV ketel | |
|---|---|
| CV ketel | Intergas |
| Warmtebron | Gas |
| Bouwjaar | 2021 |
| Combiketel | Ja |
| Eigendom | Eigendom |
| Uitrusting | |
|---|---|
| Aantal parkeerplaatsen | 2 |
| Aantal overdekte parkeerplaatsen | 1 |
| Warm water | CV-ketel |
| Verwarmingssysteem | Airconditioning, Centrale verwarming |
| Ventilatie methode | Mechanische ventilatie, Natuurlijke ventilatie |
| Keukenvoorzieningen | Inbouwapparatuur |
| Badkamervoorzieningen | Douche, Dubbele wastafel, Inloopdouche, Ligbad, Toilet, Vloerverwarming, Wastafel, Wastafelmeubel |
| Parkeergelegenheid | Inpandige garage |
| Heeft airco | Ja |
| Heeft een balkon | Ja |
| Heeft kabel-tv | Ja |
| Heeft een rookkanaal | Ja |
| Glasvezelaansluiting aanwezig | Ja |
| Tuin aanwezig | Ja |
| Heeft een garage | Ja |
| Telefoonaansluiting aanwezig | Ja |
| Beschikt over een internetverbinding | Ja |
| Heeft rolluiken | Ja |
| Heeft schuur/berging | Ja |
| Heeft een dakraam | Ja |
| Heeft een schuifpui | Ja |
| Heeft zonwering | Ja |
| Heeft zonnepanelen | Ja |
| Heeft ventilatie | Ja |
| Kadastrale gegevens | |
|---|---|
| Kadastrale aanduiding | Veenendaal G 1679 |
| Perceeloppervlakte | 197 m² |
Beschrijving
Royale tweekapper met een moderne uitstraling, warme sfeer en heerlijke tuin aan een autoluw hofje
Sommige woningen verrassen u zodra de voordeur opengaat. Moerschans 27 is zo’n plek. Deze stijlvolle twee-onder-een-kapwoning combineert ruimte met rust en heeft een afwerking die meteen vertrouwen wekt. Alles is tot in detail verzorgd: van de visgraatvloer tot de moderne deuren, en van de strakke keuken tot de perfect onderhouden tuin. Binnen geniet u van een sfeervolle woonkamer met haard en een keuken die uitnodigt tot koken en samenzijn. De 4 ruime slaapkamers, moderne badkamer en de vele bergruimte maakt de woning tot een ideale gezinswoning. Buiten ervaart u de stilte van een autoluw hofje, waar kinderen veilig kunnen spelen en buren elkaar nog groeten. Met 13 zonnepanelen, goede isolatievoorzieningen en recent schilderwerk (2024) is dit bovendien een toekomstbestendige woning waarin u zó kunt intrekken.
De buurt
De woning ligt in het geliefde Veenendaal-West, in een rustig en autoluw hofje waar u vooral bestemmingsverkeer ziet. Een ideale plek voor wie houdt van wonen in een kindvriendelijke woonomgeving met het gemak van voorzieningen dichtbij. Scholen, speeltuintjes en sportvelden bevinden zich op loopafstand en winkelcentrum De Ellekoot ligt om de hoek voor de dagelijkse boodschappen. Binnen enkele minuten fietst u naar station Veenendaal-West of een uitgestrekte natuurgebied, waar u heerlijk kunt wandelen of fietsen. Dankzij de gunstige ligging bereikt u ook de Rondweg-West en de A12 in slechts enkele minuten. Een rustige, kindvriendelijke woonomgeving met alles wat u nodig heeft binnen handbereik.
Begane grond
De overdekte entree geeft toegang tot een lichte hal met moderne toiletruimte (2021), de inpandige garage en de trap naar de eerste verdieping. Een stijlvolle deur leidt u naar de woonkamer.
Zodra u binnenstapt, valt de rust op: de doorlopende visgraatvloer, zachte kleuren en veel licht door de grote raampartijen. De woonkamer is ruim en gezellig, met een haard als sfeermaker. De woonkamer staat in directe verbinding met de tuin – ideaal voor zomerse dagen of een etentje buiten. Aan de voorzijde ligt de keuken (2018), strak uitgevoerd in hoogglans wit met een donker werkblad. Hier vindt u alle moderne inbouwapparatuur – een combi-oven, inductiekookplaat, afzuigkap, koel-/vriescombinatie en vaatwasser – en voldoende werkruimte om uitgebreid te koken. De indeling zorgt voor een natuurlijke verbinding tussen koken, eten en wonen.
Eerste verdieping
De eerste verdieping telt drie volwaardige slaapkamers, stuk voor stuk voorzien van veel lichtinval en keurig afgewerkt met strakke wanden en een doorlopende houten vloer. De badkamer (2021) is een parel op zich. De combinatie van grote grijze tegels, grafische accenten en RVS kranen zorgt voor een luxe uitstraling. U beschikt hier over een ligbad, inloopdouche met zitje, luxe stortdouche en geïntegreerde Sunshower, een breed wastafelmeubel met dubbele kraan, en een wandcloset. De elektrische vloerverwarming, te bedienen via een app, maakt het comfort compleet. Een heerlijke spa-ervaring, waar u graag uw dag begint en eindigt.
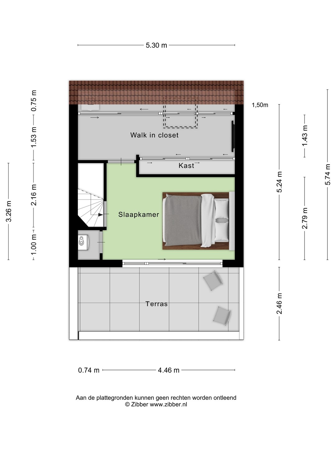
Tweede verdieping
De zolderverdieping is een perfecte toevoeging aan deze woning. Hier vindt u een ruime slaapkamer met airconditioning, en een ruime walk-in closet met maatwerkkasten, waar ook de wasapparatuur netjes uit het zicht is weggewerkt. Via de schuifpui stapt u het zonnige dakterras op – een ideale plek voor een kop koffie in de ochtend of een glas wijn in de avondzon. Deze verdieping werd in 2021 buitenom geschilderd; de rest van de woning in 2024.
Buitenruimte
De achtertuin is een groene, stille plek waar u het hele jaar door kunt ontspannen. Dankzij de omsloten ligging geniet u van volledige privacy, met ruimte voor zowel een loungeset als een eettafel. De tuin is strak aangelegd met sierbestrating, een gazon en volwassen beplanting. Achterin bevindt zich een berging met overkapping, perfect voor tuingereedschap. U parkeert uw auto eenvoudig op eigen terrein aan de voorzijde of op de openbare parkeerplaatsen.
Deze woning laat zien hoe comfortabel modern wonen kan zijn. Alles is keurig afgewerkt, praktisch ingedeeld en voorzien van de luxe die het dagelijks leven nét wat aangenamer maakt. Hier hoeft u niets meer aan te doen – alleen nog te genieten van de rust, de ruimte en het thuisgevoel dat deze woning biedt. Wilt u dat zelf ervaren? Plan dan snel een bezichtiging, want woningen als deze komen zelden twee keer voorbij.
Algemene gegevens
- Type woning: 2-onder-1-kapwoning
- Bouwjaar: 2000
- Aantal kamers: 5
- Aantal slaapkamers: 4
- Aantal badkamers: 1
- Parkeerruimte: op de oprit, in de garage en in de directe omgeving
- Aanwezig: oprit, inpandige garage, houten bergingen een dakterras
- Ligging tuin: oost
- Tuin bereik: via de woning
Technische gegevens
- Warmwatervoorziening: HR cv-ketel, Intergas, bouwjaar 2021
- Verwarmvoorziening: HR cv-ketel, Intergas, bouwjaar 2021
- Vloerverwarming: aanwezig in de badkamer
- Zonnepanelen: 13 stuks
- gashaard aanwezig
- Voorzieningen: airco en buitenzonwering aanwezig
- Mechanische ventilatie: aanwezig
- Isolatie: dak/spouw/vloer (volledig geïsoleerd)
- Dubbel glas: geheel
- Glasvezel kabel aanwezig
- Kozijnen: hout
Voor meer informatie omtrent deze woning, kunt u contact opnemen met ons kantoor in Veenendaal.
U bent van harte welkom! De beste indruk van deze woning krijgt u natuurlijk tijdens een bezichtiging. Wij proberen onze bezichtigingen altijd in samenspraak met verkoper en koper te plannen en nemen ruim de tijd, zodat u op uw gemak de woning kan bekijken en ervaren.
N.B. Aan de samenstelling van deze gegevens is maximale zorg besteed. Aan onvolkomenheden in de vermelde gegevens en tekeningen kunnen geen rechten en aanspraken worden ontleend.
Sommige woningen verrassen u zodra de voordeur opengaat. Moerschans 27 is zo’n plek. Deze stijlvolle twee-onder-een-kapwoning combineert ruimte met rust en heeft een afwerking die meteen vertrouwen wekt. Alles is tot in detail verzorgd: van de visgraatvloer tot de moderne deuren, en van de strakke keuken tot de perfect onderhouden tuin. Binnen geniet u van een sfeervolle woonkamer met haard en een keuken die uitnodigt tot koken en samenzijn. De 4 ruime slaapkamers, moderne badkamer en de vele bergruimte maakt de woning tot een ideale gezinswoning. Buiten ervaart u de stilte van een autoluw hofje, waar kinderen veilig kunnen spelen en buren elkaar nog groeten. Met 13 zonnepanelen, goede isolatievoorzieningen en recent schilderwerk (2024) is dit bovendien een toekomstbestendige woning waarin u zó kunt intrekken.
De buurt
De woning ligt in het geliefde Veenendaal-West, in een rustig en autoluw hofje waar u vooral bestemmingsverkeer ziet. Een ideale plek voor wie houdt van wonen in een kindvriendelijke woonomgeving met het gemak van voorzieningen dichtbij. Scholen, speeltuintjes en sportvelden bevinden zich op loopafstand en winkelcentrum De Ellekoot ligt om de hoek voor de dagelijkse boodschappen. Binnen enkele minuten fietst u naar station Veenendaal-West of een uitgestrekte natuurgebied, waar u heerlijk kunt wandelen of fietsen. Dankzij de gunstige ligging bereikt u ook de Rondweg-West en de A12 in slechts enkele minuten. Een rustige, kindvriendelijke woonomgeving met alles wat u nodig heeft binnen handbereik.
Begane grond
De overdekte entree geeft toegang tot een lichte hal met moderne toiletruimte (2021), de inpandige garage en de trap naar de eerste verdieping. Een stijlvolle deur leidt u naar de woonkamer.
Zodra u binnenstapt, valt de rust op: de doorlopende visgraatvloer, zachte kleuren en veel licht door de grote raampartijen. De woonkamer is ruim en gezellig, met een haard als sfeermaker. De woonkamer staat in directe verbinding met de tuin – ideaal voor zomerse dagen of een etentje buiten. Aan de voorzijde ligt de keuken (2018), strak uitgevoerd in hoogglans wit met een donker werkblad. Hier vindt u alle moderne inbouwapparatuur – een combi-oven, inductiekookplaat, afzuigkap, koel-/vriescombinatie en vaatwasser – en voldoende werkruimte om uitgebreid te koken. De indeling zorgt voor een natuurlijke verbinding tussen koken, eten en wonen.
Eerste verdieping
De eerste verdieping telt drie volwaardige slaapkamers, stuk voor stuk voorzien van veel lichtinval en keurig afgewerkt met strakke wanden en een doorlopende houten vloer. De badkamer (2021) is een parel op zich. De combinatie van grote grijze tegels, grafische accenten en RVS kranen zorgt voor een luxe uitstraling. U beschikt hier over een ligbad, inloopdouche met zitje, luxe stortdouche en geïntegreerde Sunshower, een breed wastafelmeubel met dubbele kraan, en een wandcloset. De elektrische vloerverwarming, te bedienen via een app, maakt het comfort compleet. Een heerlijke spa-ervaring, waar u graag uw dag begint en eindigt.
Tweede verdieping
De zolderverdieping is een perfecte toevoeging aan deze woning. Hier vindt u een ruime slaapkamer met airconditioning, en een ruime walk-in closet met maatwerkkasten, waar ook de wasapparatuur netjes uit het zicht is weggewerkt. Via de schuifpui stapt u het zonnige dakterras op – een ideale plek voor een kop koffie in de ochtend of een glas wijn in de avondzon. Deze verdieping werd in 2021 buitenom geschilderd; de rest van de woning in 2024.
Buitenruimte
De achtertuin is een groene, stille plek waar u het hele jaar door kunt ontspannen. Dankzij de omsloten ligging geniet u van volledige privacy, met ruimte voor zowel een loungeset als een eettafel. De tuin is strak aangelegd met sierbestrating, een gazon en volwassen beplanting. Achterin bevindt zich een berging met overkapping, perfect voor tuingereedschap. U parkeert uw auto eenvoudig op eigen terrein aan de voorzijde of op de openbare parkeerplaatsen.
Deze woning laat zien hoe comfortabel modern wonen kan zijn. Alles is keurig afgewerkt, praktisch ingedeeld en voorzien van de luxe die het dagelijks leven nét wat aangenamer maakt. Hier hoeft u niets meer aan te doen – alleen nog te genieten van de rust, de ruimte en het thuisgevoel dat deze woning biedt. Wilt u dat zelf ervaren? Plan dan snel een bezichtiging, want woningen als deze komen zelden twee keer voorbij.
Algemene gegevens
- Type woning: 2-onder-1-kapwoning
- Bouwjaar: 2000
- Aantal kamers: 5
- Aantal slaapkamers: 4
- Aantal badkamers: 1
- Parkeerruimte: op de oprit, in de garage en in de directe omgeving
- Aanwezig: oprit, inpandige garage, houten bergingen een dakterras
- Ligging tuin: oost
- Tuin bereik: via de woning
Technische gegevens
- Warmwatervoorziening: HR cv-ketel, Intergas, bouwjaar 2021
- Verwarmvoorziening: HR cv-ketel, Intergas, bouwjaar 2021
- Vloerverwarming: aanwezig in de badkamer
- Zonnepanelen: 13 stuks
- gashaard aanwezig
- Voorzieningen: airco en buitenzonwering aanwezig
- Mechanische ventilatie: aanwezig
- Isolatie: dak/spouw/vloer (volledig geïsoleerd)
- Dubbel glas: geheel
- Glasvezel kabel aanwezig
- Kozijnen: hout
Voor meer informatie omtrent deze woning, kunt u contact opnemen met ons kantoor in Veenendaal.
U bent van harte welkom! De beste indruk van deze woning krijgt u natuurlijk tijdens een bezichtiging. Wij proberen onze bezichtigingen altijd in samenspraak met verkoper en koper te plannen en nemen ruim de tijd, zodat u op uw gemak de woning kan bekijken en ervaren.
N.B. Aan de samenstelling van deze gegevens is maximale zorg besteed. Aan onvolkomenheden in de vermelde gegevens en tekeningen kunnen geen rechten en aanspraken worden ontleend.