Object detail
General
Comfortabel wonen op hoogte met een vrij uitzicht dat elke dag opnieuw indruk maakt
Op een prettige locatie in Veenendaal bevindt zich dit verzorgde vierkamerappartement van circa 88 m², gelegen in een modern appartementencomplex met lift. De woning is keurig onderhouden, licht van opzet en biedt een indeling die prettig aansluit op het dagelijks gebruik. Grote raampartijen zorgen voor een a... More info
Op een prettige locatie in Veenendaal bevindt zich dit verzorgde vierkamerappartement van circa 88 m², gelegen in een modern appartementencomplex met lift. De woning is keurig onderhouden, licht van opzet en biedt een indeling die prettig aansluit op het dagelijks gebruik. Grote raampartijen zorgen voor een a... More info
-
Features
All characteristics Type of residence Apartment, house with shared staircase, apartment Construction period 2011 Status Sold Offered since 11 March 2026 -
Location
Features
| Offer | |
|---|---|
| Reference number | 08187 |
| Asking price | €569,500 |
| Service costs | €210.51 |
| Status | Sold |
| Acceptance | By consultation |
| Offered since | 11 March 2026 |
| Last updated | 16 May 2026 |
| Construction | |
|---|---|
| Type of residence | Apartment, house with shared staircase, apartment |
| Floor | 9th floor |
| Type of construction | Existing estate |
| Construction period | 2011 |
| Roof materials | Bitumen |
| Rooftype | Flat |
| Isolations | Cavity wall, Floor, Full, HR glazing, Insulated glazing, Roof, Wall |
| Surfaces and content | |
|---|---|
| Plot size | 528 m² |
| Floor Surface | 88 m² |
| Content | 292 m³ |
| External surface area storage rooms | 5 m² |
| External surface area | 9 m² |
| Layout | |
|---|---|
| Number of floors | 1 |
| Number of rooms | 4 (of which 3 bedrooms) |
| Number of bathrooms | 1 (and 1 separate toilet) |
| Outdoors | |
|---|---|
| Location | Near highway, Near public transport, Near school, On a busy street, On a quiet street, Residential area, Unobstructed view |
| Energy consumption | |
|---|---|
| Energy certificate | A+ |
| Boiler | |
|---|---|
| Year of manufacture | 2011 |
| Combiboiler | Yes |
| Boiler ownership | Owned |
| Features | |
|---|---|
| Number of parking spaces | 1 |
| Water heating | Central heating system |
| Heating | Central heating |
| Ventilation method | Mechanical ventilation, Natural ventilation |
| Bathroom facilities | Double sink, Walkin shower, Washbasin furniture |
| Has a balcony | Yes |
| Has an elevator | Yes |
| Has fibre optical cable | Yes |
| Has a storage room | Yes |
| Has sliding doors | Yes |
| Has solar blinds | Yes |
| Has ventilation | Yes |
| Association of owners | |
|---|---|
| Registered at Chamber of Commerce | Yes |
| Annual meeting | Yes |
| Periodic contribution | Yes |
| Reserve fund | Yes |
| Long term maintenance plan | Yes |
| Home insurance | Yes |
| Cadastral informations | |
|---|---|
| Cadastral designation | Veenendaal K 5485 |
| Range | Condominium |
| Index number | 86 |
| Cadastral designation | Veenendaal K 5485 |
| Range | Condominium |
| Index number | 35 |
| Cadastral designation | Veenendaal K 5463 |
| Area | 528 m² |
Description
Comfortabel wonen op hoogte met een vrij uitzicht dat elke dag opnieuw indruk maakt
Op een prettige locatie in Veenendaal bevindt zich dit verzorgde vierkamerappartement van circa 88 m², gelegen in een modern appartementencomplex met lift. De woning is keurig onderhouden, licht van opzet en biedt een indeling die prettig aansluit op het dagelijks gebruik. Grote raampartijen zorgen voor een aangename hoeveelheid daglicht, terwijl de verschillende ruimtes logisch met elkaar verbonden zijn.
Binnen treft u een appartement dat netjes is afgewerkt is. De woonkamer heeft een royale maatvoering en staat in open verbinding met de keuken, waardoor een ruimtelijk geheel ontstaat. Vanuit de woonkamer is er toegang tot het overdekte balkon, waar u beschut kunt zitten en tegelijkertijd geniet van een weids uitzicht over de omgeving.
Daarnaast beschikt het appartement over meerdere slaapkamers, een verzorgde badkamer en praktische bergruimte. Ook aan gemak is gedacht: er is een berging in de onderbouw en een eigen parkeerplaats aanwezig. Samen zorgt dit voor een comfortabele woonplek waar u rustig kunt wonen met alle voorzieningen binnen bereik.
De buurt
De Erasmusstraat ligt in een rustige en verzorgde woonomgeving in Veenendaal. In de directe omgeving vindt u diverse voorzieningen zoals supermarkten, winkels, sportfaciliteiten en openbaar vervoer. Ook uitvalswegen richting de A12 zijn eenvoudig bereikbaar. Groenvoorzieningen en wandelmogelijkheden bevinden zich eveneens op korte afstand, waardoor het een prettige plek is om te wonen.
Begane grond
Het complex beschikt over een nette centrale entree met brievenbussen en een afgesloten toegang. Vanuit hier heeft u toegang tot het trappenhuis en de lift die u naar de verschillende woonlagen brengt. In de onderbouw bevindt zich de privéberging van het appartement, ideaal voor het stallen van bijvoorbeeld fietsen of extra opslag. Buiten het gebouw is de eigen parkeerplaats gelegen.
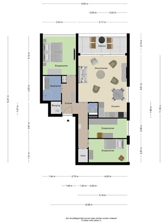
Indeling appartement
De entree van het appartement komt uit in een hal die toegang biedt tot verschillende vertrekken. Vanuit hier bereikt u onder andere het toilet met fonteintje, een berging met witgoedaansluitingen, en alle overige ruimtes van de woning.
De woonkamer is ruim opgezet en profiteert van grote raampartijen die zorgen voor veel daglicht en een open gevoel. Vanuit deze ruimte heeft u direct toegang tot het balkon. De open keuken sluit aan op het woongedeelte en is uitgevoerd in een lichte opstelling met boven- en onderkasten, een contrasterend werkblad en diverse inbouwapparatuur (inductiekookplaat, vlakscherm afzuigkap, oven, koel-/vrieskast en vaatwasser. De keuken vormt een praktische en overzichtelijke plek voor het bereiden van maaltijden.
Het appartement beschikt over drie slaapkamers, die elk via de hal bereikbaar zijn. De grootste slaapkamer biedt voldoende ruimte voor een tweepersoonsbed en aanvullend meubilair. De andere kamers zijn flexibel te gebruiken, bijvoorbeeld als werk-, logeer- of kleedkamer. De badkamer is verzorgd uitgevoerd met een ruime inloopdouche en een dubbel wastafelmeubel. De afwerking met lichte wandtegels en donkere vloertegels geeft de ruimte een eigentijdse en rustige uitstraling.
Buitenruimte
Aan de woonkamer grenst het overdekte balkon, een fijne plek waar u beschut kunt zitten terwijl u uitkijkt over de omgeving. Dankzij de ligging en het open uitzicht is dit een plek waar u op verschillende momenten van de dag prettig kunt vertoeven.
Bent u op zoek naar een verzorgd appartement met een prettige indeling, veel lichtinval en een balkon met uitzicht? Dan is Erasmusstraat 169 zeker een bezichtiging waard. Neem gerust contact op voor een afspraak en ervaar zelf de ruimte en het comfort dat dit appartement te bieden heeft.
Algemene gegevens
- Type woning: Appartement
- Bouwjaar: 2011
- Aantal kamers: 4
- Aantal slaapkamers: 3
- Aantal badkamers: 1
- Parkeerruimte: 1 eigen parkeerplaats en openbaar
- Aanwezig: berging/lift/parkeerplaats
- Ligging balkon: zuidoost
- Balkon bereik: via de woonkamer
Technische gegevens
- Warmwatervoorziening: Remeha Avanta 28C (2011)
- Verwarmvoorziening: Remeha Avanta 28C (2011)
- Voorzieningen: balkon/schuifpui/
- Mechanische ventilatie: aanwezig
- Isolatie: dak/spouw/vloer
- Dubbel glas: geheel
- Glasvezel kabel
- Kozijnen: aluminium
WILT U EVEN BINNEN KIJKEN?
Voor meer informatie omtrent deze woning, kunt u contact opnemen met ons kantoor in Veenendaal op telefoonnummer 0318-559600.
U bent van harte welkom! De beste indruk van deze woning krijgt u natuurlijk tijdens een bezichtiging. Wij proberen onze bezichtigingen altijd in samenspraak met verkoper en koper te plannen en nemen ruim de tijd, zodat u op uw gemak de woning kan bekijken en ervaren.
N.B. Aan de samenstelling van deze gegevens is maximale zorg besteed. Aan onvolkomenheden in de vermelde gegevens en tekeningen kunnen geen rechten en aanspraken worden ontleend.
Op een prettige locatie in Veenendaal bevindt zich dit verzorgde vierkamerappartement van circa 88 m², gelegen in een modern appartementencomplex met lift. De woning is keurig onderhouden, licht van opzet en biedt een indeling die prettig aansluit op het dagelijks gebruik. Grote raampartijen zorgen voor een aangename hoeveelheid daglicht, terwijl de verschillende ruimtes logisch met elkaar verbonden zijn.
Binnen treft u een appartement dat netjes is afgewerkt is. De woonkamer heeft een royale maatvoering en staat in open verbinding met de keuken, waardoor een ruimtelijk geheel ontstaat. Vanuit de woonkamer is er toegang tot het overdekte balkon, waar u beschut kunt zitten en tegelijkertijd geniet van een weids uitzicht over de omgeving.
Daarnaast beschikt het appartement over meerdere slaapkamers, een verzorgde badkamer en praktische bergruimte. Ook aan gemak is gedacht: er is een berging in de onderbouw en een eigen parkeerplaats aanwezig. Samen zorgt dit voor een comfortabele woonplek waar u rustig kunt wonen met alle voorzieningen binnen bereik.
De buurt
De Erasmusstraat ligt in een rustige en verzorgde woonomgeving in Veenendaal. In de directe omgeving vindt u diverse voorzieningen zoals supermarkten, winkels, sportfaciliteiten en openbaar vervoer. Ook uitvalswegen richting de A12 zijn eenvoudig bereikbaar. Groenvoorzieningen en wandelmogelijkheden bevinden zich eveneens op korte afstand, waardoor het een prettige plek is om te wonen.
Begane grond
Het complex beschikt over een nette centrale entree met brievenbussen en een afgesloten toegang. Vanuit hier heeft u toegang tot het trappenhuis en de lift die u naar de verschillende woonlagen brengt. In de onderbouw bevindt zich de privéberging van het appartement, ideaal voor het stallen van bijvoorbeeld fietsen of extra opslag. Buiten het gebouw is de eigen parkeerplaats gelegen.
Indeling appartement
De entree van het appartement komt uit in een hal die toegang biedt tot verschillende vertrekken. Vanuit hier bereikt u onder andere het toilet met fonteintje, een berging met witgoedaansluitingen, en alle overige ruimtes van de woning.
De woonkamer is ruim opgezet en profiteert van grote raampartijen die zorgen voor veel daglicht en een open gevoel. Vanuit deze ruimte heeft u direct toegang tot het balkon. De open keuken sluit aan op het woongedeelte en is uitgevoerd in een lichte opstelling met boven- en onderkasten, een contrasterend werkblad en diverse inbouwapparatuur (inductiekookplaat, vlakscherm afzuigkap, oven, koel-/vrieskast en vaatwasser. De keuken vormt een praktische en overzichtelijke plek voor het bereiden van maaltijden.
Het appartement beschikt over drie slaapkamers, die elk via de hal bereikbaar zijn. De grootste slaapkamer biedt voldoende ruimte voor een tweepersoonsbed en aanvullend meubilair. De andere kamers zijn flexibel te gebruiken, bijvoorbeeld als werk-, logeer- of kleedkamer. De badkamer is verzorgd uitgevoerd met een ruime inloopdouche en een dubbel wastafelmeubel. De afwerking met lichte wandtegels en donkere vloertegels geeft de ruimte een eigentijdse en rustige uitstraling.
Buitenruimte
Aan de woonkamer grenst het overdekte balkon, een fijne plek waar u beschut kunt zitten terwijl u uitkijkt over de omgeving. Dankzij de ligging en het open uitzicht is dit een plek waar u op verschillende momenten van de dag prettig kunt vertoeven.
Bent u op zoek naar een verzorgd appartement met een prettige indeling, veel lichtinval en een balkon met uitzicht? Dan is Erasmusstraat 169 zeker een bezichtiging waard. Neem gerust contact op voor een afspraak en ervaar zelf de ruimte en het comfort dat dit appartement te bieden heeft.
Algemene gegevens
- Type woning: Appartement
- Bouwjaar: 2011
- Aantal kamers: 4
- Aantal slaapkamers: 3
- Aantal badkamers: 1
- Parkeerruimte: 1 eigen parkeerplaats en openbaar
- Aanwezig: berging/lift/parkeerplaats
- Ligging balkon: zuidoost
- Balkon bereik: via de woonkamer
Technische gegevens
- Warmwatervoorziening: Remeha Avanta 28C (2011)
- Verwarmvoorziening: Remeha Avanta 28C (2011)
- Voorzieningen: balkon/schuifpui/
- Mechanische ventilatie: aanwezig
- Isolatie: dak/spouw/vloer
- Dubbel glas: geheel
- Glasvezel kabel
- Kozijnen: aluminium
WILT U EVEN BINNEN KIJKEN?
Voor meer informatie omtrent deze woning, kunt u contact opnemen met ons kantoor in Veenendaal op telefoonnummer 0318-559600.
U bent van harte welkom! De beste indruk van deze woning krijgt u natuurlijk tijdens een bezichtiging. Wij proberen onze bezichtigingen altijd in samenspraak met verkoper en koper te plannen en nemen ruim de tijd, zodat u op uw gemak de woning kan bekijken en ervaren.
N.B. Aan de samenstelling van deze gegevens is maximale zorg besteed. Aan onvolkomenheden in de vermelde gegevens en tekeningen kunnen geen rechten en aanspraken worden ontleend.