| Prijs | € 745.000,- k.k. |
| Type object | Woonhuis, eengezinswoning, twee onder een kap woning |
| Perceeloppervlakte | 323 m² |
| Woonoppervlakte | 153 m² |
| Aanvaarding | In overleg |
| Status | Onder bod |
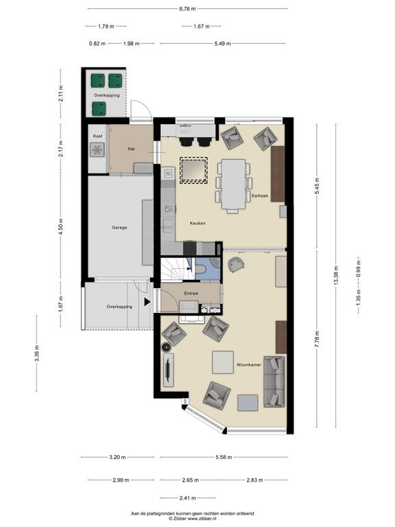
Ruim wonen met precies de sfeer die u zoekt? Deze stijlvolle en uitgebouwde 2-onder-1-kapwoning met eigen oprit, garage en diepe tuin geeft u die mogelijkheid. Deze moderne twee-onder-een-kapwoning aan de Vuurvlinderronde 4 laat zich ervaren als een fijne plek waar u direct voelt hoe royaal en praktisch het wooncomfort hier is. Met een woonoppervlakte van maar liefst 169 m² en een perceel van 323 m² biedt deze woning alle ruimte om jarenlang met plezier te wonen. De verrassend ruime en lichte woonkamer vormt een uitnodigende binnenkomst, waarbij de en suitedeuren richting de leefkeuken een mooie verbinding maken tussen gezellig zitten en uitgebreid tafelen. De woon-/leefkeuken is heerlijk ruim en geeft door de brede raampartijen direct zicht op de zorgvuldig aangelegde achtertuin die op elk moment van de dag een andere sfeer laat zien. Op de drie volledige verdiepingen vindt u daarnaast meerdere slaap- en werkruimtes, veel opbergruimte en een verzorgde afwerking waardoor u de woning vrijwel direct kunt betrekken. Het geheel voelt ruim, licht en verzorgd — een ideale combinatie voor wie op zoek is naar een moderne, ruime gezinswoning met karakter en dagelijks comfort. De buurt Vuurvlinderronde 4 ligt in een rustige, groene woonwijk aan de oostzijde van Veenendaal, waar brede straten, speeltuintjes en volwassen beplanting samen zorgen voor een prettige woonomgeving. Scholen, supermarkten en sportvoorzieningen bevinden zich op korte afstand, net als de uitvalswegen richting de A12 en A30 waardoor zowel Utrecht als Arnhem eenvoudig bereikbaar zijn. De nabijgelegen bossen en natuurgebieden maken het extra aantrekkelijk voor liefhebbers van wandelen, fietsen of hardlopen. De wijk voelt verzorgd en vriendelijk aan, ideaal voor gezinnen of iedereen die graag rustig woont maar de voorzieningen binnen handbereik wil houden. Begane grond Via de verzorgde entree bereikt u de hal met toegang tot het moderne toilet, de trapopgang en de woonkamer. De living valt direct op door het brede erkerraam aan de voorzijde, dat het daglicht royaal binnenlaat en vrij zicht biedt op de straat. De houten vloer geeft het geheel een warme uitstraling, terwijl de opstelling ruimte biedt voor meerdere zithoeken. Centraal in de ruimte verbinden en suitedeuren de woonkamer met de leefkeuken, waar het leef- en kookgedeelte prachtig samenkomen. De keuken is uitgevoerd in een lichte kleurstelling met veel kastruimte, een granieten blad en apparatuur zoals een oven, combimagnetron, inductiekookplaat, vlakscherm afzuigkap, koel-/vriescombinatie en een vaatwasser. Het ruime eetgedeelte biedt plek voor een lange tafel én er is een praktische werkhoek gecreëerd. Door de lichtkoepel en de grote schuifpui wordt de keuken rijkelijk gevuld met daglicht. Aangrenzend bereikt u een tussenhal waar vaste kastruimte is gerealiseerd en u directe toegang heeft tot de garage en de achtertuin. 1e Verdieping De eerste verdieping beschikt over drie goed bemeten slaapkamers, elk met een fijne lichtinval en een verzorgde afwerking van lichte wanden en een doorlopende laminaatvloer. De badkamer is uitgerust met zowel een douchecabine als een ligbad, een wastafelmeubel en een tweede toilet; perfect geschikt voor een gezin. 2e Verdieping De tweede verdieping verrast door de ruimte en indeling. Hier vindt u een royale overloop met praktische opbergruimte achter de knieschotten, dubbele ronde ramen en plek voor wasmachine en droger. Daarnaast zijn er twee slaapkamers aanwezig, ook ideaal te gebruiken als rustige thuiswerkplek. Buitenruimte De achtertuin is een van de sterke punten van deze woning: breed, diep, groen en met verschillende zithoeken die elk seizoen een eigen sfeer geven. Het terras direct achter de woning is perfect voor lange zomeravonden, terwijl het tweede terras aan de zijkant een fijne beschutte plek vormt. De tuin zelf is verzorgd aangelegd met een groot gazon, volwassen bomen en borders met kleurrijke beplanting. Achterin staat een houten berging voor fietsen en tuingereedschap. Kinderen hebben volop ruimte om te spelen. De voortuin en oprit bieden daarnaast parkeerplek voor meerdere auto’s en directe toegang tot de garage. Vuurvlinderronde 4 is een woning die u uitnodigt om ruimte, rust en wooncomfort volledig te omarmen. Hier woont u met gemak, met plezier en met de zekerheid dat alles al voor u is verzorgd. Maak snel een afspraak en ervaar zelf hoe prettig deze woning voelt zodra u binnenstapt. Een fijne plek om te landen, te leven en te blijven. Algemene gegevens - Type woning: 2-onder-1-kapwoning - Bouwjaar: 1997 - Aantal kamers: 6 - Aantal slaapkamers: 5 - Aantal badkamers: 1 - Parkeerruimte: op de eigen oprit, in de garage en in de directe omgeving openbaar parkeren aanwezig - Aanwezig: oprit, garage, erker, aanbouw woonruimte, dakkapel, overkapping en berging - Ligging tuin: zuid - Tuin bereik: via de woning en garage/bijkeuken Technische gegevens - Warmwatervoorziening: HR cv-ketel, Nefit Trendline (2015) - Verwarmvoorziening: HR cv-ketel, Nefit Trendline (2015) - Zonnepanelen: 16 stuks - Voorzieningen: buitenzonwering aanwezig - Mechanische ventilatie: aanwezig - Isolatie: dak/spouw/vloer (volledig geïsoleerd) - Dubbel glas: geheel - Glasvezel kabel aanwezig - Kozijnen: hout WILT U EVEN BINNEN KIJKEN? Voor meer informatie omtrent deze woning, kunt u contact opnemen met ons kantoor in Veenendaal op telefoonnummer 0318-559600. U bent van harte welkom! De beste indruk van deze woning krijgt u natuurlijk tijdens een bezichtiging. Wij proberen onze bezichtigingen altijd in samenspraak met verkoper en koper te plannen en nemen ruim de tijd, zodat u op uw gemak de woning kan bekijken en ervaren. N.B. Aan de samenstelling van deze gegevens is maximale zorg besteed. Aan onvolkomenheden in de vermelde gegevens en tekeningen kunnen geen rechten en aanspraken worden ontleend.
| Referentienummer | 08123 |
| Vraagprijs | € 745.000,- k.k. |
| Status | Onder bod |
| Aanvaarding | In overleg |
| Aangeboden sinds | Vrijdag 21 november 2025 |
| Laatste wijziging | Vrijdag 5 december 2025 |
| Type object | Woonhuis, eengezinswoning, twee onder een kap woning |
| Soort bouw | Bestaande bouw |
| Bouwperiode | 1997 |
| Dakbedekking | Bitumen Dakpannen |
| Type dak | Zadeldak |
| Isolatievormen | Dakisolatie Dubbel glas HR-glas Muurisolatie Spouwmuren Vloerisolatie Volledig geïsoleerd |
| Perceeloppervlakte | 323 m² |
| Woonoppervlakte | 153 m² |
| Inhoud | 600 m³ |
| Oppervlakte overige inpandige ruimten | 17 m² |
| Oppervlakte externe bergruimte | 5 m² |
| Oppervlakte gebouwgebonden buitenruimte | 10 m² |
| Aantal bouwlagen | 3 |
| Aantal kamers | 6 (waarvan 5 slaapkamers) |
| Aantal badkamers | 1 (en 1 apart toilet) |
| Ligging | Aan rustige weg In woonwijk |
| Type | Achtertuin |
| Hoofdtuin | Ja |
| Oriëntering | Zuiden |
| Heeft een achterom | Ja |
| Staat | Prachtig aangelegd |
| Tuin 2 - Type | Voortuin |
| Tuin 2 - Oriëntering | Noorden |
| Tuin 2 - Staat | Goed onderhouden |
| Energielabel | A |
| CV ketel | Nefit Trendline |
| Warmtebron | Gas |
| Bouwjaar | 2015 |
| Combiketel | Ja |
| Eigendom | Eigendom |
| Aantal parkeerplaatsen | 3 |
| Aantal overdekte parkeerplaatsen | 1 |
| Warm water | CV-ketel |
| Verwarmingssysteem | Centrale verwarming |
| Ventilatie methode | Mechanische ventilatie Natuurlijke ventilatie |
| Keukenvoorzieningen | Inbouwapparatuur |
| Badkamervoorzieningen | Douche Ligbad Toilet Wastafel Wastafelmeubel |
| Parkeergelegenheid | Inpandige garage |
| Heeft kabel-tv | Ja |
| Glasvezelaansluiting aanwezig | Ja |
| Tuin aanwezig | Ja |
| Heeft een garage | Ja |
| Telefoonaansluiting aanwezig | Ja |
| Beschikt over een internetverbinding | Ja |
| Heeft schuur/berging | Ja |
| Heeft een dakraam | Ja |
| Heeft een schuifpui | Ja |
| Heeft zonwering | Ja |
| Heeft zonnepanelen | Ja |
| Heeft ventilatie | Ja |
| Kadastrale aanduiding | Veenendaal H 3072 |
| Perceeloppervlakte | 323 m² |