| Prijs | € 1.295.000,- k.k. |
| Type object | Woonhuis, eengezinswoning, vrijstaande woning |
| Perceeloppervlakte | 765 m² |
| Woonoppervlakte | 283 m² |
| Aanvaarding | In overleg |
| Status | Verkocht |
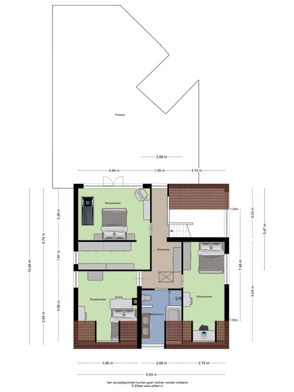
Stijl, Comfort en Flexibiliteit: Een Vrijstaande Droomwoning die met u Meegroeit Aan de Munnikenweg 145 in Veenendaal treft u een riante, luxe vrijstaande woning met een indrukwekkend woonoppervlak van ruim 283m², tot in de puntjes verzorgd en met volop wooncomfort. De woning beschikt over vier slaapkamers, twee badkamers, twee woonkamers, een stijlvolle leefkeuken en een prachtige achtertuin met berging en garage. Dankzij de aanwezigheid van een slaapkamer én badkamer op de begane grond leent deze woning zich bovendien uitstekend voor gelijkvloers of mantelzorg wonen. Ook biedt de indeling volop mogelijkheden voor een bedrijfsruimte aan huis, waarmee dit huis moeiteloos meebeweegt met uw woonwensen. In de directe omgeving vindt u een fijne mix aan voorzieningen. Scholen liggen op korte afstand en sportclubs zoals voetbal-, tennis- en fitnessfaciliteiten bevinden zich eveneens nabij. Voor dagelijkse boodschappen kunt u terecht bij meerdere supermarkten in de buurt, evenals diverse winkels, eetgelegenheden en andere voorzieningen. De bereikbaarheid is uitstekend: bushaltes en andere OV-verbindingen liggen in de omgeving en via de nabijgelegen uitvalswegen bereikt u eenvoudig steden als Utrecht, Arnhem en Amersfoort. Dit alles maakt de ligging zowel praktisch als comfortabel. Entree Via de voortuin en de eigen oprit – waar ruimte is voor het parkeren van de auto's – bereikt u de voordeur. Eenmaal binnen komt u in de ruime hal, met imposante raampartij en een vide, het centrale knooppunt van de woning. Vanuit hier heeft u toegang tot beide woonkamers, de toiletruimte, de bijkeuken en de trapopgang naar de eerste verdieping. Woonkamer Grenzend aan de hal vindt u de eerste woonkamer: een heerlijk lichte en open ruimte dankzij de royale raampartijen die zonlicht naar binnen laten vallen. De open indeling maakt het mogelijk om zowel een ruime zithoek als een sfeervolle eethoek in te richten. De fraaie ingebouwde haard vormt hierbij een echte eyecatcher en creëert direct een warme sfeer. Deze woonkamer sluit mooi aan op de open leefkeuken. Keuken De moderne leefkeuken vormt een fijne plek om te koken, te dineren en samen te komen met familie en vrienden. Er is ruimte voor een royale eettafel, waardoor de keuken een uitnodigende en gezellige leefomgeving biedt. De luxe matzwarte keuken is uitgevoerd in een stijlvol design is voorzien van zowel een werkblad langs de wand als een royaal kookeiland, wat zorgt voor een eigentijdse en luxe uitstraling. De keuken is uitgerust met hoogwaardige apparatuur, waaronder een inductiekookplaat met geïntegreerde afzuiging en weegschaal van Elica, een oven, vaatwasmachine en koelkast van Bosch, een spoelbak met Quooker-kraan en een wijnklimaatkast. In de vele lades en kasten is bovendien volop opbergruimte aanwezig. Dankzij de openslaande deuren naar de tuin geniet de ruimte van veel natuurlijk licht en een directe verbinding met buiten. De sfeervolle houtkachel draagt daarnaast bij aan een warme en huiselijke sfeer. Bijkeuken Aangrenzend aan de hal ligt de praktische bijkeuken. Deze ruimte biedt ideale opslagmogelijkheden, beschikt over witgoedaansluitingen en geeft directe toegang tot de tuin. Een functionele toevoeging die het woongemak vergroot. Tweede woonkamer Aan de achterzijde van de woning bevindt zich de tweede woonkamer. Deze is eveneens ruim, licht en voorzien van hoge ramen die zorgen voor een prachtige lichtinval. De open indeling biedt volop mogelijkheden en het aanwezige barretje en eigen toilet maakt dit gedeelte van de woning perfect voor gelijkvloers wonen, mantelzorgsituaties of gasten met een eigen plek. Slaapkamer (begane grond) Direct grenzend aan de tweede woonkamer ligt de slaapkamer op de begane grond. Een ruime en lichte kamer met genoeg plek voor een bed, bureau en kast. Dankzij de aanwezige airco geniet u hier altijd van een prettig binnenklimaat. Sanitair (begane grond) Aangrenzend aan deze slaapkamer vindt u de moderne badkamer, deels betegeld en zorgvuldig afgewerkt. De ruimte beschikt over een royaal ligbad, een inloopdouche met glazen deur, een wastafel met spiegel en een praktisch opbergmeubel. De combinatie van comfort en kwaliteit maakt deze badkamer tot een plek waar u heerlijk tot rust komt. Extra kamer Op de begane grond bevindt zich tevens een extra kamer die zich uitstekend leent voor een bedrijfsruimte aan huis, een kantoor, hobbyruimte, studeerkamer of vijfde slaapkamer. Dankzij de grote hoeveelheid lichtinval en aanwezige airco biedt deze ruimte het hele jaar door een comfortabele werk- of ontspanningsplek. 1e verdieping De vaste trap in de hal leidt naar de eerste verdieping, waar zich drie slaapkamers en de tweede badkamer bevinden. De verdieping is ruim opgezet en biedt voldoende privacy en comfort voor elk gezinslid. Deze gehele verdieping wordt verwarmd met elektrische verwarming, wat zorgt voor een aangename en energiezuinige temperatuurregeling. Slaapkamers De drie slaapkamers grenzen aan de overloop en kenmerken zich door hun lichte en ruime indeling. Elke kamer biedt voldoende plek voor een bed, bureau of kast, waardoor ze multi-inzetbaar zijn voor zowel kinderen als volwassenen. Een van de kamers is voorzien van een walk-in closet en airco, zodat ook op warme dagen een aangenaam woonklimaat gegarandeerd is. Desgewenst kan een van de kamers fungeren als hobby-, werk- of logeerruimte. Sanitair (1e verdieping) De moderne badkamer op deze verdieping is deels betegeld en uitgerust met een douche met glazen deur, een ligbad, een zwevend toilet, een handdoekradiator en een dubbele wastafel met spiegel. De luxe badkamer is van alle gemakken voorzien, wat het een fijne plek maakt om uw dag te beginnen of eindigen. 2e verdieping Via een vlizotrap bereikt u de zolderverdieping, gelegen in de punt van het dak. Dankzij de beperkte hoogte is deze verdieping ideaal als praktische opbergruimte, waar u seizoensspullen en andere items netjes kunt opbergen buiten het zicht. Buitenruimte De riante achtertuin is keurig aangelegd met een combinatie van bestrating en groen, en biedt tal van mogelijkheden om te ontspannen en te genieten van de zon. Dankzij de ruime opzet kunt u op meerdere plekken een loungeset of terras creëren. Verder beschikt de tuin over een handige berging voor tuingereedschap en opslag, en een aangrenzende garage die perfect is voor fietsen, extra opbergruimte of een kleine werkplaats. Algemene gegevens - Type woning: Vrijstaand - Bouwjaar: 1990 - Verbouwjaar: 2021/2022 - Aantal kamers: 7 - Aantal slaapkamers: 4 ( mogelijk 5) - Aantal badkamers: 2 - Parkeerruimte: 3 op eigen terrein en openbaar - Aanwezig: dakkapel/berging/garage - Ligging tuin: Rondom/zuidwest - Tuin bereik: voor/achter/opzij Technische gegevens - Warmwatervoorziening: Atag i36ECZ woonhuis(2021 / Atag i28CZ bijgebouw(2021) - Verwarmvoorziening: Atag i36ECZ woonhuis / Atag i28CZ bijgebouw - Vloerverwarming: begane grond(CV) en badkamers(elektrisch) - Zonnepanelen: 21 stuks - Gashaard / houtkachel - Voorzieningen: airco 3x/buitenzonwering/vliering keuken met Qoocker, wijnklimaatkast, Bosch koelkast, vaatwasser, oven, Elica inductie met geintergreerde afzuiging en wegschaal, tuin met pulse en beregening - Mechanische ventilatie: aanwezig - Isolatie: dak/spouw/vloer geheel - Dubbel glas: geheel HR++ - Glasvezel kabel, TV kabel - Kozijnen: hout/aluminium (3 ramen in bijgebouw) WILT U EVEN BINNEN KIJKEN? Voor meer informatie omtrent deze woning, kunt u contact opnemen met ons kantoor in Veenendaal op telefoonnummer 0318-559600. U bent van harte welkom! De beste indruk van deze woning krijgt u natuurlijk tijdens een bezichtiging. Wij proberen onze bezichtigingen altijd in samenspraak met verkoper en koper te plannen en nemen ruim de tijd, zodat u op uw gemak de woning kan bekijken en ervaren. N.B. Aan de samenstelling van deze gegevens is maximale zorg besteed. Aan onvolkomenheden in de vermelde gegevens en tekeningen kunnen geen rechten en aanspraken worden ontleend.
| Referentienummer | 08127 |
| Vraagprijs | € 1.295.000,- k.k. |
| Status | Verkocht |
| Aanvaarding | In overleg |
| Aangeboden sinds | Dinsdag 2 december 2025 |
| Laatste wijziging | Maandag 5 januari 2026 |
| Type object | Woonhuis, eengezinswoning, vrijstaande woning |
| Soort bouw | Bestaande bouw |
| Bouwperiode | 1990 |
| Dakbedekking | Bitumen Dakpannen |
| Type dak | Samengesteld |
| Isolatievormen | Dakisolatie Dubbel glas HR-glas Muurisolatie Spouwmuren Vloerisolatie Volledig geïsoleerd |
| Perceeloppervlakte | 765 m² |
| Woonoppervlakte | 283 m² |
| Inhoud | 1.093 m³ |
| Oppervlakte overige inpandige ruimten | 12 m² |
| Oppervlakte externe bergruimte | 28 m² |
| Aantal bouwlagen | 3 |
| Aantal kamers | 7 (waarvan 4 slaapkamers) |
| Aantal badkamers | 2 (en 1 apart toilet) |
| Type | Tuin rondom |
| Hoofdtuin | Ja |
| Oriëntering | Zuid-west |
| Heeft een achterom | Ja |
| Staat | Prachtig aangelegd |
| Energielabel | A |
| CV ketel | Atag i36ECZ |
| Warmtebron | Gas |
| Bouwjaar | 2021 |
| Combiketel | Ja |
| Eigendom | Eigendom |
| Aantal parkeerplaatsen | 4 |
| Aantal overdekte parkeerplaatsen | 1 |
| Warm water | CV-ketel Elektrische boiler Gasboiler |
| Verwarmingssysteem | Airconditioning Centrale verwarming Elektrische verwarming Gashaard Houtkachel Vloerverwarming (gedeeltelijk) |
| Ventilatie methode | Mechanische ventilatie Natuurlijke ventilatie |
| Badkamervoorzieningen Badkamer 1 | Douche Ligbad Wastafelmeubel |
| Badkamervoorzieningen Badkamer 2 | Douche Dubbele wastafel Ligbad Toilet Vloerverwarming Wastafelmeubel |
| Parkeergelegenheid | Vrijstaande houten garage |
| Heeft airco | Ja |
| Heeft een rookkanaal | Ja |
| Glasvezelaansluiting aanwezig | Ja |
| Tuin aanwezig | Ja |
| Heeft een garage | Ja |
| Beschikt over een internetverbinding | Ja |
| Heeft schuur/berging | Ja |
| Heeft zonwering | Ja |
| Heeft zonnepanelen | Ja |
| Heeft ventilatie | Ja |
| Kadastrale aanduiding | Veenendaal D 8374 |
| Perceeloppervlakte | 765 m² |
| Omvang | Geheel perceel |