Beschrijving
Aan de Kerkewijk staat deze karaktervolle tweekapper uit 1935 met een woonoppervlakte van 148,4 m². Een huis met uitstraling, altijd goed verzorgd en met een solide basis waar u jarenlang op kunt voortbouwen. De indeling is ruim en doordacht, met een doorzonwoonkamer, een extra kamer op de begane grond, drie slaapkamers op de verdieping en een verrassend grote tweede verdieping die werkelijk indruk maakt.
Dit is een woning die u niet alleen ruimte biedt, maar ook mogelijkheden. Alles is netjes onderhouden en functioneel, terwijl er tegelijkertijd ruimte is om het geheel naar de huidige woonwensen en -standaarden te moderniseren. De combinatie van karakter, maatvoering en de royale tuin maakt dit een bijzonder aantrekkelijk geheel op een centrale locatie in Veenendaal. Een huis met inhoud, met potentie én met een indrukwekkende maatvoering.
De buurt
De Kerkewijk is een centrale en gewilde locatie in Veenendaal. Winkels, scholen en sportvoorzieningen bevinden zich op korte afstand, net als het centrum met diverse horecagelegenheden. Openbaar vervoer is goed bereikbaar en via de A12 en A30 bent u snel onderweg richting Utrecht, Arnhem of Ede. Tegelijkertijd woont u hier in een volwassen woonomgeving met veel groen en karakter. Het is precies die combinatie van centrale ligging en comfortabele woonrust die deze locatie zo aantrekkelijk maakt.
Begane grond
Via de entree komt u in de hal met toiletruimte, trapopgang en toegang tot de verschillende vertrekken. Vanuit hier betreedt u de doorzonwoonkamer, die zich over de volledige diepte van de woning uitstrekt. Een grote raampartij aan de voorzijde zorgt voor een prettige lichtinval, tezamen met de schuifpui die directe toegang verleent tot de tuin. De parketvloer geeft de ruimte een warme en karaktervolle basis, terwijl de open haard met natuurstenen schouw een sfeervol middelpunt vormt en de zithoek extra uitnodigend maakt. Dankzij de royale afmetingen is er moeiteloos ruimte voor zowel een comfortabele zithoek als een ruime eettafel.
De keuken is separaat gelegen en bereikbaar vanuit de hal. Deze is uitgevoerd in een lichte opstelling met witte fronten en een donker werkblad. Het aanwezige raam zorgt voor prettig daglicht tijdens het koken. Een prettige ruimte die functioneel is ingericht en tegelijkertijd volop mogelijkheden biedt om deze naar eigen smaak en de huidige woonstandaarden te moderniseren.
Daarnaast bevindt zich op de begane grond een extra kamer van goed formaat, perfect geschikt als kantoorruimte en voorzien van een tweetal inbouwkasten. En er is tevens een kelder aanwezig, ideaal voor uw voorraadopslag.
Eerste verdieping
Op de eerste verdieping bevinden zich drie slaapkamers. Twee daarvan zijn royaal van formaat en bieden ruim plaats aan een tweepersoonsbed en aanvullend meubilair. De derde slaapkamer heeft eveneens een prettig formaat en is veelzijdig in gebruik. Vanuit de hoofdslaapkamer heeft u middels openslaande deuren toegang tot het balkon, een fijne plek om even buiten te staan met zicht over de achtertuin. De badkamer is praktisch ingericht en voorzien van een douche, wastafel en toilet. De ruimte is altijd netjes onderhouden en vormt een solide basis, met mogelijkheden om deze naar eigen wens en hedendaags comfort te actualiseren.
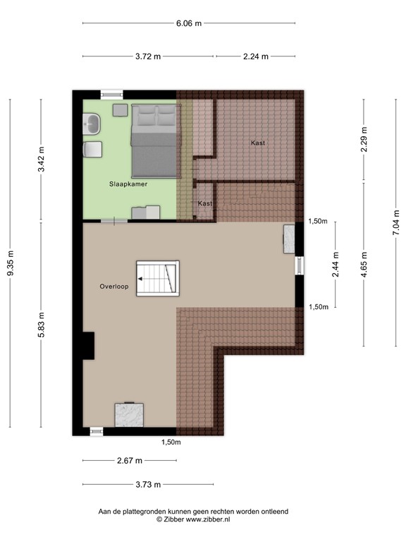
Tweede verdieping
Via een vaste trap bereikt u de tweede verdieping, en hier wordt pas echt duidelijk hoeveel ruimte deze woning biedt. De royale overloop is voorzien van karakteristieke balken, die zorgen voor een sfeer die u niet vaak tegenkomt. Op deze verdieping is een vierde slaapkamer gerealiseerd, uitgerust met een eigen wastafel en extra bergruimte achter de knieschotten. Deze verdieping voelt niet als een traditionele zolder, maar als een volwaardige leefruimte met volop mogelijkheden.
Buitenruimte
Achter de woning bevindt zich een terras met ruimte voor een gezellige zithoek, direct aansluitend op de schuifpui. Aansluitend ligt het gazon, een fijne plek waar kinderen kunnen spelen of waar u geniet van rust en groen. Vanuit de tuin is de vrijstaande garage toegankelijk, die samen met de oprit praktische parkeerruimte op eigen terrein biedt. Aan de voorzijde ligt een royale voortuin die bijdraagt aan de karaktervolle uitstraling van deze jaren ’30 woning en zorgt voor een prettige afstand tot de straat.
Kerkewijk 178 biedt de charme van een jaren ’30 woning met de ruimte van nu. De solide basis en verzorgde staat zorgen voor comfort, terwijl de maatvoering en indeling volop mogelijkheden bieden om het geheel naar eigen smaak te moderniseren. Hier woont u royaal, karaktervol en centraal in Veenendaal. Maak een afspraak voor een bezichtiging en ervaar zelf wat deze woning u te bieden heeft.
Algemene gegevens
- Type woning: Twee-onder-een-kap
- Bouwjaar: 1935
- Verbouwjaar:
- Aantal kamers: 5
- Aantal slaapkamers: 4 (meer mogelijk)
- Aantal badkamers: 1
- Parkeerruimte: 1 auto in de garage en openbaar
- Aanwezig: garage
- Ligging tuin: noordwest
- Tuin bereik: voor/achter/opzij en via de woning
Technische gegevens
- Warmwatervoorziening: Nefit Ecomline HR
- Verwarmvoorziening: Nefit Ecomline HR
- Voorzieningen: buitenzonwering/kelder
- Mechanische ventilatie:
- Isolatie: dak/spouw/vloer
- Dubbel glas: groten deels
- Glasvezel kabel, TV kabel
- Kozijnen: hout/aluminium
WILT U EVEN BINNEN KIJKEN?
Voor meer informatie omtrent deze woning, kunt u contact opnemen met ons kantoor in Veenendaal op telefoonnummer 0318-559600.
U bent van harte welkom! De beste indruk van deze woning krijgt u natuurlijk tijdens een bezichtiging. Wij proberen onze bezichtigingen altijd in samenspraak met verkoper en koper te plannen en nemen ruim de tijd, zodat u op uw gemak de woning kan bekijken en ervaren.
N.B. Aan de samenstelling van deze gegevens is maximale zorg besteed. Aan onvolkomenheden in de vermelde gegevens en tekeningen kunnen geen rechten en aanspraken worden ontleend.
Plattegronden
182653030_1630817_kerke_begane_grond_first_design_20260304_027158.jpg
182653030_1630817_kerke_eerste_verdiepi_first_design_20260304_6a2992.jpg
182653030_1630817_kerke_tweede_verdiepi_first_design_20260304_224449.jpg
182653030_1630817_kerke_garage_first_design_20260304_a20286.jpg
182653030_1630817_kerke_kelder_first_design_20260304_4a7e3e.jpg
182653030_1630817_kerke_begane_grond_tu_first_design_20260304_f5280a.jpg