| Prijs | € 549.500,- k.k. |
| Type object | Woonhuis, eengezinswoning, hoekwoning |
| Perceeloppervlakte | 214 m² |
| Woonoppervlakte | 106 m² |
| Aanvaarding | Direct |
| Status | Prijsverlaging |
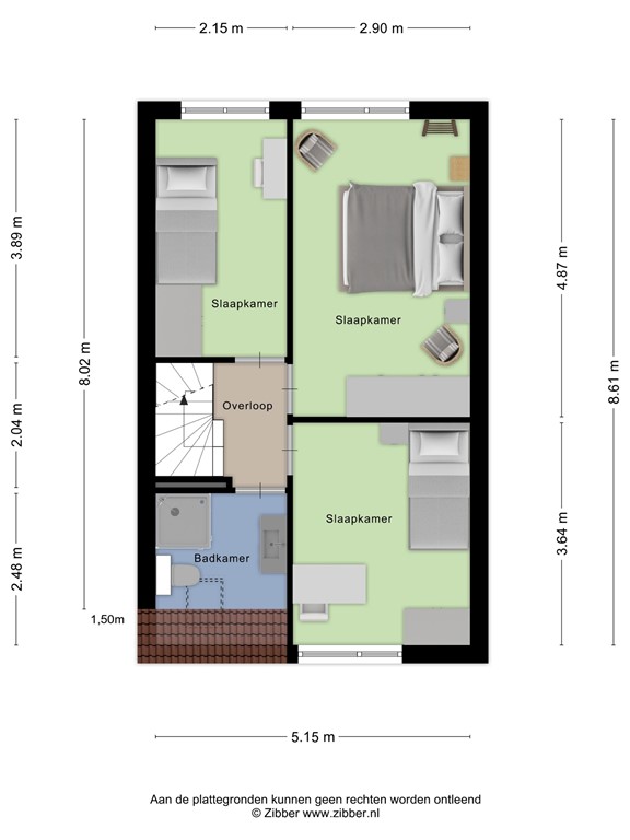
Instapklare en sfeervolle hoekwoning op loopafstand van het gezellige centrum van Veenendaal, met vrijstaande garage met oprit voor 2 auto's, ideaal voor de hobbyist of ZZP'er. De woning blinkt uit door de rustige ligging, tuin op het zuiden met veranda, ideaal voor zomerse avonden, ruimte, licht en comfort. Aan de Hollandia 167 wacht een instapklare hoekwoning die u meteen het gevoel geeft dat alles klopt. De ruime opzet, het eigentijdse afwerkingsniveau en de fijne lichtinval zorgen samen voor een woonbeleving die zowel warm als praktisch aanvoelt. Met 105 m² woonoppervlakte beschikt u over drie volwaardige woonlagen die naadloos op elkaar aansluiten, waardoor elke verdieping zijn eigen comfort en mogelijkheden biedt. De keuken is modern en voorzien van hoogwaardige apparatuur, de badkamer strak en fris, en de woonkamer vormt een uitnodigende leefruimte die door de brede raampartijen in direct contact staat met de zonnige tuin. De verdiepingen voegen daarnaast 5 slaapkamers en de nodige praktische ruimte toe. Buiten krijgt u bovendien iets extra’s: parkeergelegenheid op eigen terrein, een grote garage én een sfeervolle veranda. Het geheel voelt doordacht, verzorgd en klaar voor een nieuwe eigenaar die houdt van wonen met gemak. De buurt Deze woning ligt in een rustige straat binnen een ruim opgezette woonwijk in Veenendaal, waar dagelijks comfort en centrale ligging hand in hand gaan. Op korte afstand vindt u supermarkten, scholen en sportvoorzieningen, terwijl het centrum binnen enkele minuten bereikbaar is. Met goede verbindingen richting de A12 en de nabijgelegen stations bent u bovendien uitstekend aangesloten op de regio. De wijk is vriendelijk opgezet en voelt vertrouwd aan, een plek waar u ontspannen thuiskomt na een drukke dag. Begane grond Via de entree stapt u een verzorgde hal binnen, met toegang tot het toilet met fonteintje, en de trapopgang. Eenmaal in de woonkamer merkt u direct hoe prettig de ruimte voelt: sfeervolle kleuren, grote raamvlakken en een natuurlijke overgang naar de tuin creëren een ontspannen leefruimte. De eethoek ligt centraal in de ruimte en vormt een gezellige schakel tussen de woonkamer en de royale keuken aan de voorzijde. Deze keuken is uitgerust met diverse inbouwapparatuur, waaronder een combi-oven, een gaskookplaat met schouwafzuigkap, koel-/vriescombinatie en een contrasterend werkblad dat genoeg werkruimte biedt. Alles is overzichtelijk, sfeervol en praktisch ingedeeld; helemaal klaar voor uw culinaire hoogstandjes. Eerste verdieping De overloop leidt naar drie comfortabele slaapkamers, elk met een fijne lichtinval en een nette afwerking. De grootste slaapkamer bevindt zich aan de achterzijde en biedt volop plaats voor een groot bed en kastruimte. De overige twee kamers zijn ideaal als kinder-, werk- of logeerruimte. De badkamer is modern en zorgvuldig uitgevoerd met een ruime douchecabine voorzien van douchepaneel, een breed wastafelmeubel en een tweede toilet. De combinatie van lichte tegels en houtaccenten geeft de ruimte een rustige, moderne uitstraling. Tweede verdieping Op de tweede verdieping vindt u een praktische overloop met wasruimte, airconditioning, voldoende bergruimte achter de knieschotten en toegang tot nog twee slaapkamers. Ook deze kamers zijn netjes afgewerkt en beide voorzien van een dakraam die zorgt voor aangenaam daglicht. De verdieping voelt verrassend ruim dankzij de slimme indeling. Middels een vlizotrap bereikt u de bergzolder, waar u nog meer opbergruimte tot uw beschikking heeft. Buitenruimte De achtertuin is een van de grote troeven van deze woning. Breed, onderhoudsvriendelijk en volledig omheind: een heerlijke plek waar u de hele dag graag zit. De veranda, met glazen schuifwanden, houtkachel en elektra, zorgt voor een sfeervolle buitenruimte die u het hele jaar door kunt gebruiken. Aangrenzend beschikt u nog over een handige overkapping, voor bijvoorbeeld een barbecue. Vanuit de tuin loopt u bovendien zo naar de vrijstaande garage, die zowel voor opslag als hobby of parkeren bijzonder praktisch is, en er is een achterom. Aan de voorzijde beschikt u over een ruime oprit voor meerdere auto’s. Hollandia 167 is een woning die direct overtuigt door zijn ruimte, sfeer en keurige afwerkingsniveau. Alles is zorgvuldig onderhouden en ingericht om jarenlang comfortabel te wonen. Bent u benieuwd hoe deze plek in het echt voelt? Plan dan gerust een bezichtiging in en ervaar zelf het woonplezier dat deze hoekwoning te bieden heeft. Algemene gegevens - Type woning: hoekwoning - Bouwjaar: 1986 - Aantal kamers: 6 - Aantal slaapkamers: 5 - Aantal badkamers: 1 - Parkeerruimte: op de eigen oprit en in de garage - Aanwezig: oprit, garage, overkapping en veranda - Ligging tuin: zuidwest - Tuin bereik: via de woning en een achterom Technische gegevens - Warmwatervoorziening: HR cv-ketel, Nefit, bouwjaar 2007 + elektrische boiler (keuken) - Verwarmvoorziening: HR cv-ketel, Nefit, bouwjaar 2007 - Vloerverwarming: aanwezig op de begane grond - Zonnepanelen: 10 stuks - Voorzieningen: airco/buitenzonwering/vliering - Mechanische ventilatie: aanwezig - Isolatie: dak/spouw/vloer (volledig geïsoleerd) - Dubbel glas: geheel - Glasvezel kabel aanwezig - Kozijnen: hout WILT U EVEN BINNEN KIJKEN? Voor meer informatie omtrent deze woning, kunt u contact opnemen met ons kantoor in Veenendaal op telefoonnummer 0318-559600. U bent van harte welkom! De beste indruk van deze woning krijgt u natuurlijk tijdens een bezichtiging. Wij proberen onze bezichtigingen altijd in samenspraak met verkoper en koper te plannen en nemen ruim de tijd, zodat u op uw gemak de woning kan bekijken en ervaren. N.B. Aan de samenstelling van deze gegevens is maximale zorg besteed. Aan onvolkomenheden in de vermelde gegevens en tekeningen kunnen geen rechten en aanspraken worden ontleend.
| Referentienummer | 08197 |
| Vraagprijs | € 549.500,- k.k. |
| Status | Prijsverlaging |
| Aanvaarding | Direct |
| Aangeboden sinds | Vrijdag 6 maart 2026 |
| Laatste wijziging | Maandag 20 april 2026 |
| Type object | Woonhuis, eengezinswoning, hoekwoning |
| Soort bouw | Bestaande bouw |
| Bouwperiode | 1986 |
| Dakbedekking | Dakpannen |
| Type dak | Zadeldak |
| Isolatievormen | Dakisolatie Dubbel glas HR-glas Muurisolatie Spouwmuren Vloerisolatie Volledig geïsoleerd |
| Perceeloppervlakte | 214 m² |
| Woonoppervlakte | 106 m² |
| Inhoud | 374 m³ |
| Oppervlakte externe bergruimte | 29 m² |
| Aantal bouwlagen | 3 |
| Aantal kamers | 6 (waarvan 5 slaapkamers) |
| Aantal badkamers | 1 (en 1 apart toilet) |
| Ligging | Aan rustige weg In woonwijk |
| Type | Achtertuin |
| Hoofdtuin | Ja |
| Oriëntering | Zuid-west |
| Heeft een achterom | Ja |
| Staat | Goed onderhouden |
| Tuin 2 - Type | Voortuin |
| Tuin 2 - Oriëntering | Noord-oost |
| Tuin 2 - Staat | Goed onderhouden |
| Energielabel | A |
| CV ketel | Nefit |
| Warmtebron | Gas |
| Bouwjaar | 2007 |
| Combiketel | Ja |
| Eigendom | Eigendom |
| Aantal parkeerplaatsen | 3 |
| Aantal overdekte parkeerplaatsen | 1 |
| Warm water | CV-ketel |
| Verwarmingssysteem | Centrale verwarming Vloerverwarming (gedeeltelijk) |
| Ventilatie methode | Mechanische ventilatie Natuurlijke ventilatie |
| Badkamervoorzieningen | Douche Toilet Wastafel Wastafelmeubel |
| Parkeergelegenheid | Vrijstaande stenen garage |
| Heeft airco | Ja |
| Heeft kabel-tv | Ja |
| Glasvezelaansluiting aanwezig | Ja |
| Tuin aanwezig | Ja |
| Heeft een garage | Ja |
| Telefoonaansluiting aanwezig | Ja |
| Beschikt over een internetverbinding | Ja |
| Heeft een dakraam | Ja |
| Heeft zonwering | Ja |
| Heeft zonnepanelen | Ja |
| Heeft ventilatie | Ja |
| Kadastrale aanduiding | Veenendaal C 2991 |
| Perceeloppervlakte | 203 m² |
| Omvang | Geheel perceel |
| Kadastrale aanduiding | Veenendaal C 4057 |
| Perceeloppervlakte | 11 m² |
| Omvang | Geheel perceel |