Beschrijving
Veel ruimte, nul kluswerk – instapklaar wonen in de opkomende Millinxbuurt
Ben jij starter en toe aan de volgende stap? Meer meters, meer comfort en vooral: zo erin kunnen? Dan is dit recent gerenoveerde dubbele bovenhuis van ca. 100 m² aan de Millinxstraat 24A2 precies wat je zoekt. Ruimte, licht en een slimme indeling komen hier perfect samen.
Wonen met ruimte (en dat voel je meteen)
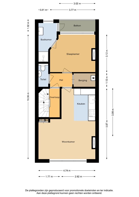
Dit appartement ligt op de 2e en 3e verdieping en biedt een verrassend ruime en lichte doorzonwoonkamer. Grote ramen zorgen voor een fijne lichtinval en maken dit een ideale plek om te ontspannen, thuis te werken of vrienden te ontvangen. Dit is geen “eerste appartement”, dit is een volgende stap.
Instapklaar & comfortabel
De woning is recent volledig gerenoveerd en netjes afgewerkt. Geen klussen, geen concessies. Gewoon wonen.
De moderne inbouwkeuken is strak uitgevoerd en voorzien van alle benodigde apparatuur — koken, borrelen en leven gaan hier moeiteloos samen.
Drie slaapkamers & twee badkamers: zeldzaam praktisch
Met drie ruime slaapkamers is dit appartement ideaal voor starters die groter willen wonen, samenwoners of thuiswerkers.
Op de tweede verdieping bevindt zich een royale slaapkamer met en-suite badkamer: comfortabel en privé.
Op de derde verdieping vind je nog twee slaapkamers met een tweede nette badkamer ertussen — ideaal voor logees, kinderen of werken aan huis.
Twee badkamers betekent: geen wachttijden, geen stress, gewoon gemak.
Leven in de opkomende Millinxbuurt
De Millinxbuurt is volop in ontwikkeling en steeds populairder bij starters en jonge gezinnen. Je woont hier met winkels, scholen en speelplekken op loopafstand en uitstekende verbindingen richting het centrum van Rotterdam. Een buurt met karakter, toekomst en stedelijke energie.
Highlights op een rij
Ca. 100 m² woonoppervlakte
Volledig gerenoveerd & instapklaar
Ideaal voor starters die groter willen wonen
3 ruime slaapkamers
2 nette badkamers
Moderne inbouwkeuken met alle voorzieningen
Kunststof kozijnen
Energielabel B
Let op: foto’s met meubilair zijn AI-gegenereerd en bedoeld ter inspiratie.
Kom kijken en ervaar de ruimte
Zoek je een ruime woning waar je direct in kunt, zonder concessies op comfort en indeling? Dan is dit een appartement dat je gezien móét hebben.
Plan snel een bezichtiging en ontdek zelf waarom de Millinxbuurt zo in trek is.
Bieden vanaf € 340.000,-
* project notaris is aangewezen
Plattegronden
Eerste verdieping - 2D.jpg
Tweede verdieping - 2D.jpg
Begane grond - markings.jpg
Eerste verdieping - 3D.png
Tweede verdieping - 3D.png