Beschrijving

Ruim, licht en centraal wonen? Dit moderne 3-kamer appartement van 96 m² aan de Laan op Zuid biedt comfort, een fijne indeling én een toplocatie vlak bij de Wilhelminapier en Katendrecht. Compleet met loggia, berging en optie tot eigen parkeerplaats!


Laan op Zuid 638 – Ruimte, licht en comfort op een absolute toplocatie!

Welkom aan de Laan op Zuid 638, waar ruimte, licht en een uitstekend wooncomfort samenkomen in dit heerlijke 3-kamer appartement van maar liefst 96 m², gelegen op de vijfde verdieping van een modern en verzorgd complex.
Een appartement dat niet alleen royaal is, maar ook praktisch is ingedeeld én gelegen op een plek waar het stadsleven, ontspanning en bereikbaarheid perfect samenkomen.

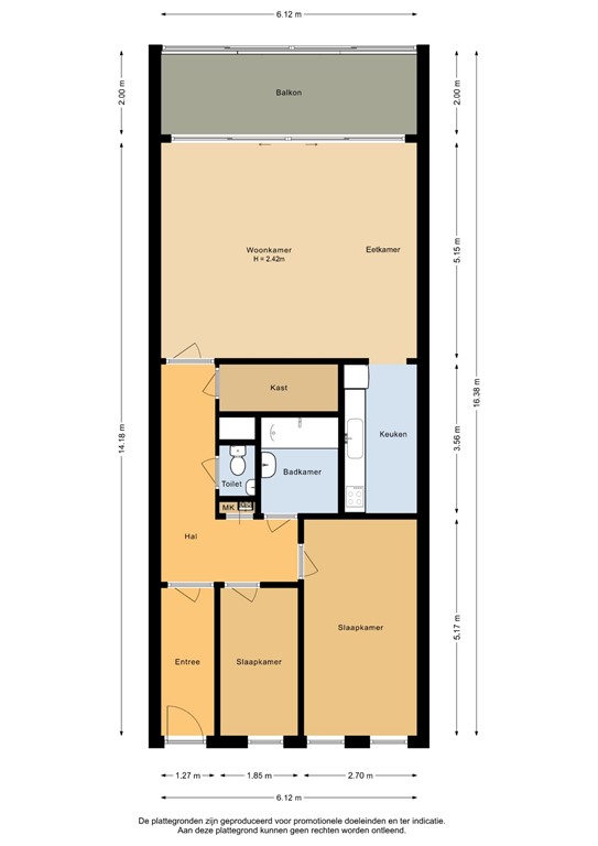
Indeling

Bij binnenkomst word je direct verwelkomd door een ruime hal die toegang geeft tot alle vertrekken – overzichtelijk, licht en uitnodigend.
De woonkamer is ruim opgezet en biedt plaats aan een comfortabele zithoek en royale eethoek. Dankzij de grote raampartijen is er een overvloed aan natuurlijk licht en heb je een prachtig uitzicht over de levendige omgeving.

De halfopen keuken sluit hier naadloos op aan: praktisch ingericht, met voldoende werk- en kastruimte, ideaal voor wie graag kookt en tegelijkertijd in contact blijft met gasten of gezin.

Het appartement beschikt over twee ruime slaapkamers, een net afgewerkte badkamer met douche in bad en wastafel, een separaat toilet, en een interne berging met aansluiting voor wasmachine en droger – plus ruimte voor extra opslag.

De loggia is een absolute troef: dankzij de schuiframen geniet je hier het hele jaar door van een buitengevoel. Open in de zomer, beschut in de winter – een heerlijke plek voor een kop koffie of een goed boek.

Pluspunten

Woonoppervlakte: ca. 96 m²

Bouwjaar: modern en goed onderhouden complex

Energielabel: B

Eigen berging in de onderbouw

Eigen parkeerplaats (optioneel mee te kopen voor € 30.000)

Gelegen op de 5e etage met fijn uitzicht

Loggia met schuiframen – genieten van binnen én buiten

Bijzonderheden

Erfpacht tot 30 maart 2098

Erfpachtcanon afgekocht tot 30 maart 2043

Actieve en gezonde VvE

Verwarming en warm water via stadsverwarming

Oplevering in overleg

De buurt – wonen op een toplocatie aan de Laan op Zuid

De Laan op Zuid is uitgegroeid tot een van de meest geliefde woonlocaties van Rotterdam. Je bevindt je hier tussen de Kop van Zuid en Katendrecht, waar het bruist van de energie en vernieuwing.

De Wilhelminapier, met iconische plekken als Hotel New York, de Foodhallen en het Nieuwe Luxor Theater, ligt op loopafstand. Ook de Fenix Food Factory en de gezellige Entrepothaven zijn vlakbij – perfect voor een hapje, drankje of een ontspannen wandeling langs het water.

Met tram en metro voor de deur ben je in een paar minuten in hartje centrum, terwijl de uitvalswegen (A15, A16, A29) eveneens uitstekend bereikbaar zijn.
Kortom: een ideale plek voor wie het beste van de stad wil combineren met comfort en rust.

 Een ruim, licht en praktisch appartement op een van de beste locaties van Rotterdam – mét eigen parkeerplek en energielabel B.
Maak snel een afspraak voor een bezichtiging en ontdek zelf waarom wonen aan de Laan op Zuid zo bijzonder is!

Kenmerken