Beschrijving
Stuivenes 5, Rhenen
We nemen u graag mee door deze goed onderhouden en moderne gezinswoning aan Stuivenes 5 in Rhenen, met een totale woonoppervlakte van 109m². Deze woning beschikt over een ruime en lichte woonkamer met open keuken, een moderne badkamer, maar liefst vijf slaapkamers én een zonnige achtertuin met berging. Dankzij de aanwezige zonnepanelen is dit huis bovendien energiezuinig en duurzaam in gebruik. Kortom: een compleet familiehuis waar u direct kunt intrekken en volop wooncomfort zult ervaren.
In een rustige en kindvriendelijke woonwijk vindt u dit fijne huis, met alle voorzieningen binnen handbereik. Scholen en sportverenigingen liggen op korte afstand, waardoor dit een ideale plek is voor gezinnen. Voor dagelijkse boodschappen zijn er supermarkten en diverse winkels nabij. Het openbaar vervoer is uitstekend geregeld, met bushaltes op loopafstand en het treinstation van Rhenen op enkele minuten fietsen. Via de uitvalswegen bereikt u eenvoudig omliggende steden zoals Veenendaal, Wageningen en Utrecht. De buurt staat bovendien bekend om de groene omgeving en de nabijheid van de Utrechtse Heuvelrug, waar u heerlijk kunt wandelen en fietsen.
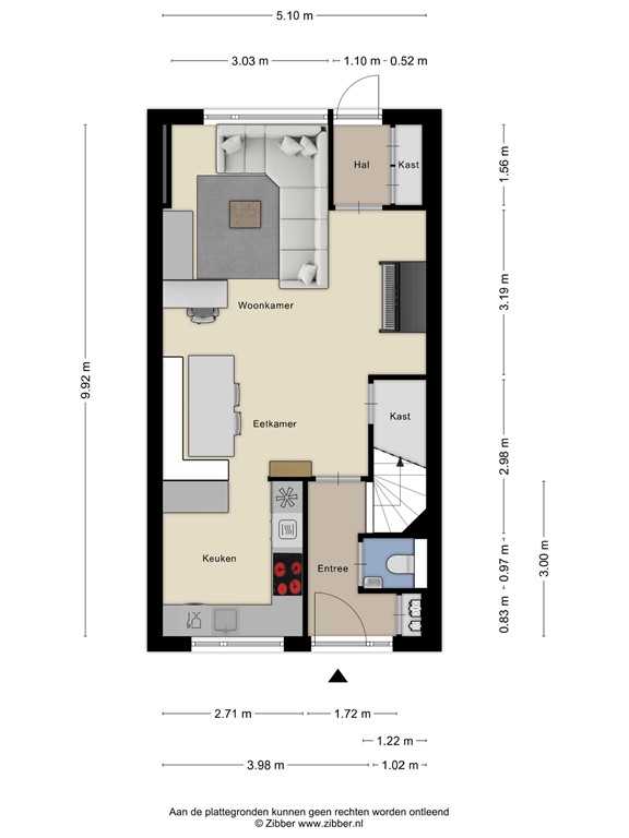
Entree:
Een eigen oprit met aangrenzende voortuin leidt naar de entree van de woning. Binnenkomst is in de hal, waar u toegang heeft tot het toilet, de trap naar de eerste verdieping en de woonkamer. De ruimte biedt plaats voor een kapstok of opbergmeubel, waardoor u hier meteen een nette en praktische ontvangst creëert.
Woonkamer:
De woonkamer vormt het centrale hart van het huis en valt direct op door de open indeling en de overvloed aan lichtinval. Grote raampartijen zorgen voor een ruimtelijk gevoel en bieden uitzicht op de tuin. Er is meer dan genoeg ruimte om een comfortabele zithoek en een gezellige eethoek te creëren. Aan de achterzijde geeft een extra hal toegang tot de zonnige tuin, waardoor binnen en buiten mooi met elkaar verbonden zijn.
Keuken:
Een moderne keuken bevindt zich aan de voorzijde en sluit naadloos aan op de woonkamer. Dankzij de L-vormige opstelling beschikt u over veel werk- en opbergruimte, compleet met inductiekookplaat en geïntegreerde afzuiging, een vaatwasser, oven en koelkast. Het barretje nodigt uit tot een snelle kop koffie in de ochtend of een gezellige borrel tijdens het koken.
1e verdieping:
Een vaste trap brengt u naar de eerste verdieping, waar drie slaapkamers en de badkamer zijn gelegen. De kamers zijn allen netjes afgewerkt en bieden flexibiliteit in gebruik, waardoor deze verdieping zich uitstekend leent voor zowel gezinnen als thuiswerkers.
Slaapkamers:
De drie slaapkamers zijn stuk voor stuk ruim genoeg voor een bed, bureau of opbergmeubel. Dankzij de goede lichtinval voelt elke kamer aangenaam en fris aan. Eén van de kamers beschikt over een praktische ingebouwde kast, ideaal voor extra bergruimte.
Sanitair:
Een moderne badkamer completeert deze verdieping. De ruimte is geheel betegeld en voorzien van een ligbad met douche, een wastafelmeubel en een zwevend toilet. De strakke afwerking en het neutrale kleurgebruik maken dit tot een fijne plek waar u zich dagelijks comfortabel kunt verzorgen.
2e verdieping:
Een tweede vaste trap leidt naar de zolderverdieping, waar nog eens twee slaapkamers aanwezig zijn. Daarmee biedt de woning in totaal vijf volwaardige slaapvertrekken.
Slaapkamers:
De slaapkamers op deze verdieping zijn goed onderhouden en verrassend ruim, ondanks de schuine wanden. Dankzij de dakramen komt er veel daglicht binnen en is er voldoende stahoogte, waardoor de ruimtes uitstekend geschikt zijn als slaapkamer, werkkamer of hobbyruimte.
Buitenruimte:
Een onderhoudsarme en zonnige achtertuin is te bereiken vanuit de woonkamer. De tuin is grotendeels bestraat en biedt volop ruimte voor een lounge- of tuinset, zodat u in de zomer heerlijk buiten kunt genieten. Achterin de tuin bevindt zich een ruime berging met overkapping, ideaal voor het stallen van fietsen of het opbergen van tuingereedschap.
Algemene gegevens
- Type woning: tussenwoning
- Bouwjaar: 2006
- Aantal kamers: 5
- Aantal slaapkamers: 4
- Aantal badkamers: 1
- Parkeerruimte: eigen oprit en in de directe omgeving
- Aanwezig: oprit, carport, overkapping, aanbouw en vrijstaande berging
- Ligging tuin: noordoost
- Tuin bereik: via de woning en een achterom
Technische gegevens
- Warmwatervoorziening: HR cv-ketel
- Verwarmvoorziening: HR cv-ketel
- Zonnepanelen: 11 stuks
- Voorzieningen: buitenzonwering aanwezig
- Mechanische ventilatie: aanwezig
- Isolatie: dak/spouw/vloer (volledig geïsoleerd)
- Dubbel glas: geheel (HR++)
- Glasvezel kabel aanwezig
- Kozijnen: hout
WILT U EVEN BINNEN KIJKEN?
Voor meer informatie omtrent deze woning, kunt u contact opnemen met ons kantoor in Rhenen.
U bent van harte welkom! De beste indruk van deze woning krijgt u natuurlijk tijdens een bezichtiging. Wij proberen onze bezichtigingen altijd in samenspraak met verkoper en koper te plannen en nemen ruim de tijd, zodat u op uw gemak de woning kan bekijken en ervaren.
N.B. Aan de samenstelling van deze gegevens is maximale zorg besteed. Aan onvolkomenheden in de vermelde gegevens en tekeningen kunnen geen rechten en aanspraken worden ontleend.
Plattegronden
176402479_1565539_stuiv_begane_grond_first_design_20250903_8143bb.jpg
176402479_1565539_stuiv_eerste_verdiepi_first_design_20251020_e05ea9.jpg
176402479_1565539_stuiv_tweede_verdiepi_first_design_20250903_a737be.jpg
176402479_1565539_stuiv_zolder_first_design_20250903_3d3d14.jpg
176402479_1565539_stuiv_zolder_first_design_20250903_40bf46.jpg
176402479_1565539_stuiv_berging_first_design_20250903_b61bd1.jpg
176402479_1565539_stuiv_begane_grond_tu_first_design_20250903_01b107.jpg