| Prijs | € 825.000,- k.k. |
| Type object | Woonhuis, eengezinswoning, vrijstaande woning |
| Perceeloppervlakte | 422 m² |
| Woonoppervlakte | 189 m² |
| Aanvaarding | In overleg |
| Status | Verkocht |
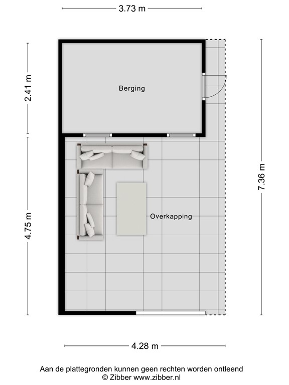
Kopers opgelet! Deze woning wordt verkocht middels verkoop bij inschrijving (gunning verkoper) in combinatie met meerdere kijkdagen. De sluitingsdatum voor het bieden is 2 juni 2025 om 15:00 uur. Stijlvolle vrijstaande woning met eigen oprit, riante berging, een heerlijke woon-/leefruimte en riante tuin met sfeervolle veranda – perfect voor wie ruimte én comfort zoekt. Wonen zoals het bedoeld is! Op een toplocatie in Renkum, nabij zowel het centrum als diverse natuurgebieden, vindt u deze moderne woning. Met een woonoppervlakte van maar liefst 189 m² en een perceel van 422 m² is dit vrijstaande huis aan de Mussenberg 5 een plek waar u met gemak jarenlang kunt blijven wonen. De woning straalt luxe en klasse uit door de goede staat van onderhoud en het hoge afwerkingsniveau. Details als de stijlvolle glazendeur, strakke gashaard, erker en de hoge plafonds geven de woning een heerlijke woon-/leefsfeer. De woning beschikt over een moderne leefkeuken, riante woonkamer, maar liefst 4 goede slaapkamers, en keurig sanitair. Grote ramen, openslaande deuren, de vele bergruimte en een praktische bijkeuken zorgen voor comfort en functionaliteit. De tuin biedt volop privacy én extra leefruimte dankzij de overkapping en vrijstaande berging. Of je nu houdt van ontspannen, tuinieren of het ontvangen van gasten: deze woning is er klaar voor. De ligging in een rustige, groene wijk maakt het plaatje compleet. Tel daarbij op dat de woning energiezuinig is door onder meer goede isolatievoorzieningen en zonnepanelen en u heeft hier een toekomstbestendige woning te pakken waar aan alles is gedacht. De buurt Mussenberg 5 ligt in een jonge, rustige wijk in Renkum, in een doodlopende straat. De buurt is ruim opgezet, met brede straten, veel groen en speeltuinen voor kinderen. Binnen een paar minuten fietsen bent u in het gezellige dorpscentrum met supermarkten, winkels en horeca. Ook zijn er diverse basisscholen, sportverenigingen en een middelbare school in de omgeving. De prachtige bossen van de Zuid-Veluwe en natuurgebied De Wageningse Eng liggen praktisch om de hoek. Via de N225 en A50 bent u bovendien snel in Wageningen, Arnhem of Nijmegen. Begane grond U komt binnen in een ruime hal met trapopgang, een modern toilet en een praktische bergkast. Vanuit de hal heeft u via een glazen deur toegang tot de riante leefkeuken. Vanuit de leefkeuken bereikt u, door glazen deuren, de woonkamer met een erker aan de zijkant. Hier zorgen de vele ramen voor een fijne lichtinval en een vrij uitzicht. De gashaard in het midden van de kamer zorgt voor sfeer en warmte op donkere dagen. Wanneer u terugloopt door de glazen deuren, komt u weer in de leefkeuken, waar zich de eetkamer bevindt, grenzend aan de open keuken. Dankzij de openslaande deuren naar het terras en de tuin verbindt u binnen moeiteloos met buiten. De leefkeuken is strak vormgegeven en uitgerust met hoogwaardige apparatuur: een keramische kookplaat, afzuigkap, vaatwasser, koelkast, vriezer en combi-oven. De combinatie van donkere accenten met hoogglans wit geeft de keuken een luxe uitstraling. Aansluitend aan de keuken bevindt zich de bijkeuken/berging, voorzien van een extra werkblad, witgoedaansluitingen, veel opbergruimte en toegang tot de carport en achtertuin. De bijkeuken is uitgerust met water- en rioolaansluitingen, wat de mogelijkheid biedt om hier een badkamer en slaapkamer te realiseren wat de woning levensloopbestendig maakt. De gehele benedenverdieping is voorzien van vloerverwarming met uitzondering van het voorste gedeelte van de berging. Eerste verdieping De overloop geeft toegang tot drie slaapkamers en de badkamer. De hoofdslaapkamer ligt aan de achterzijde en is bijzonder ruim. Dankzij de grote raampartijen kijk je uit over de achtertuin. De tweede en derde slaapkamer zijn eveneens goed bemeten en kunnen dienstdoen als kinderkamer, logeerkamer of werkkamer. De badkamer is modern afgewerkt met neutrale tegels, een douche, zwevend toilet en een wastafelmeubel met verlichte spiegel. Dankzij het raam is er prettig daglicht én ventilatie. Tweede verdieping De zolderverdieping is een volwaardige leeflaag met een royale vierde slaapkamer. Hier is voldoende ruimte voor een groot bed, werkhoek of speelhoek. De overloop is licht dankzij het dakraam en kan ook prima als werkplek worden gebruikt. Achter de knieschotten bevindt zich veel praktische bergruimte, en er is een bergkast met de cv-installatie. Buitenruimte De tuin is een absolute troef van deze woning. Aan de achterzijde geniet je van volop privacy en groen. Het zonneterras direct aan de woning is ideaal voor lange zomeravonden en biedt via de openslaande deuren directe verbinding met de eetkamer. Achter in de tuin bevindt zich een royale overkapping met sfeervolle zitplek, perfect voor een borrel of barbecue. Aangrenzend is een houten berging, ideaal voor fietsen en tuingereedschap. De tuin is verzorgd aangelegd met gazon, borders en bomen. Aan de voorzijde vind je een ruime oprit met carport. Tot slot Deze vrijstaande woning biedt ruimte, rust en luxe op een centrale plek in het groene Renkum. Alles klopt hier: de afwerking, de indeling, de buitenruimte én de sfeer. Zoekt u een huis dat meteen goed voelt én klaar is voor de toekomst? Plan dan snel een bezichtiging en laat u verrassen. Dit is een kans die u niet wilt laten lopen. Type woning: vrijstaand - Bouwjaar: 2014 - Aantal kamers: 5 - Aantal slaapkamers: 4 - Aantal badkamers: 1 - Parkeerruimte: 2 op eigen oprit en in nabije omgeving - Aanwezig: veranda met berging/garage - Ligging tuin: noord-oost - Tuin bereik: achterom/via de woning en via de garage Technische gegevens - Warmwatervoorziening: Intergas HR Eco - Verwarmvoorziening: Intergas HR Eco - Vloerverwarming: begane grond/badkamer/gedeeltelijk in bijkeuken - Zonnepanelen: 11 stuks - Gashaard - Voorzieningen: woonkeuken/stalen deuren/erker - Mechanische ventilatie: aanwezig - Isolatie: dak/spouw/vloer volledig - Dubbel glas: geheel - Glasvezel kabel, TV kabel - Kozijnen: hout WILT U EVEN BINNEN KIJKEN? Voor meer informatie omtrent deze woning, kunt u contact opnemen met ons kantoor in Rhenen. U bent van harte welkom! De beste indruk van deze woning krijgt u natuurlijk tijdens een bezichtiging. Wij proberen onze bezichtigingen altijd in samenspraak met verkoper en koper te plannen en nemen ruim de tijd, zodat u op uw gemak de woning kan bekijken en ervaren. N.B. Aan de samenstelling van deze gegevens is maximale zorg besteed. Aan onvolkomenheden in de vermelde gegevens en tekeningen kunnen geen rechten en aanspraken worden ontleend.
| Referentienummer | 07971 |
| Vraagprijs | € 825.000,- k.k. |
| Status | Verkocht |
| Aanvaarding | In overleg |
| Aangeboden sinds | Vrijdag 16 mei 2025 |
| Laatste wijziging | Vrijdag 1 augustus 2025 |
| Type object | Woonhuis, eengezinswoning, vrijstaande woning |
| Soort bouw | Bestaande bouw |
| Bouwperiode | 2014 |
| Dakbedekking | Dakpannen |
| Type dak | Schilddak |
| Isolatievormen | Dakisolatie Dubbel glas HR-glas Muurisolatie Spouwmuren Vloerisolatie Volledig geïsoleerd |
| Perceeloppervlakte | 422 m² |
| Woonoppervlakte | 189 m² |
| Inhoud | 702 m³ |
| Oppervlakte externe bergruimte | 9 m² |
| Oppervlakte gebouwgebonden buitenruimte | 14 m² |
| Aantal bouwlagen | 3 |
| Aantal kamers | 5 (waarvan 4 slaapkamers) |
| Aantal badkamers | 1 (en 1 apart toilet) |
| Type | Achtertuin |
| Hoofdtuin | Ja |
| Oriëntering | Noord-oost |
| Heeft een achterom | Ja |
| Staat | Prachtig aangelegd |
| Tuin 2 - Type | Voortuin |
| Tuin 2 - Oriëntering | Noord west |
| Tuin 2 - Staat | Prachtig aangelegd |
| Energielabel | A |
| CV ketel | Intergas HR Eco |
| Warmtebron | Gas |
| Bouwjaar | 2014 |
| Combiketel | Ja |
| Eigendom | Eigendom |
| Aantal parkeerplaatsen | 2 |
| Aantal overdekte parkeerplaatsen | 1 |
| Warm water | CV-ketel |
| Verwarmingssysteem | Centrale verwarming Gashaard Vloerverwarming (gedeeltelijk) |
| Ventilatie methode | Mechanische ventilatie Natuurlijke ventilatie |
| Keukenvoorzieningen | Inbouwapparatuur |
| Badkamervoorzieningen | Douche Toilet Vloerverwarming Wastafelmeubel |
| Parkeergelegenheid | Garage met carport |
| Glasvezelaansluiting aanwezig | Ja |
| Tuin aanwezig | Ja |
| Heeft een garage | Ja |
| Beschikt over een internetverbinding | Ja |
| Heeft schuur/berging | Ja |
| Heeft een dakraam | Ja |
| Heeft zonnepanelen | Ja |
| Heeft ventilatie | Ja |
| Kadastrale aanduiding | Renkum C 8395 |
| Perceeloppervlakte | 422 m² |