Beschrijving

For English, please scroll down
Panoramisch wonen in Amstelveen – ruim 4/5-kamer appartement (145 m²) met 2 zonnige balkons.

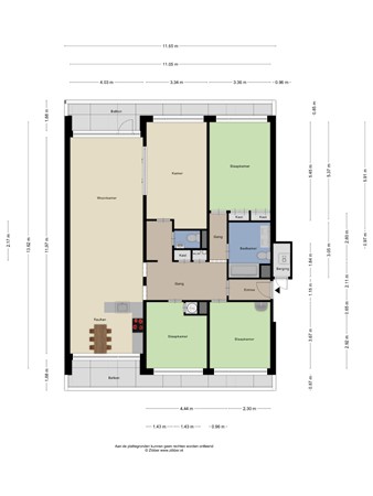
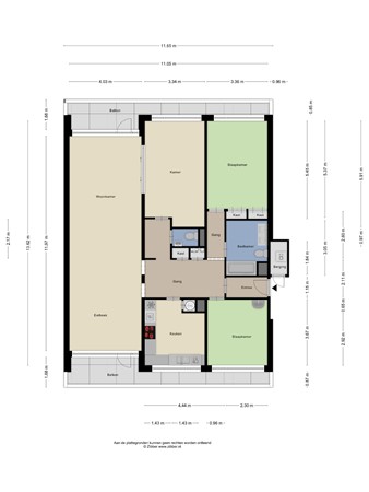
Royaal 4/5-kamer appartement (145 m²) op de 7e verdieping met panoramisch uitzicht, twee zonnige balkons en gratis parkeren. Gelegen in het goed onderhouden complex Amstelborgh, op loopafstand van het Stadshart Amstelveen, openbaar vervoer en uitvalswegen. Met een woonkamer van 49 m², een master bedroom met airco, een badkamer met ligbad én de mogelijkheid tot extra slaapkamers, biedt dit appartement alle ruimte en comfort die u zoekt; een woning met ongekende mogelijkheden.
Indeling:
Via de ruime, centrale hal met garderobe zijn alle vertrekken toegankelijk.
•	De woonkamer van ca. 49 m² biedt volop licht en ruimte. Dankzij de praktische indeling kan hier eenvoudig een woonkeuken worden gerealiseerd, waardoor de huidige keukenruimte kan worden omgevormd tot een extra slaap- of werkkamer.
•	Aangrenzend aan de woonkamer bevindt zich een extra kamer, momenteel in gebruik als studeerkamer, gescheiden met stijlvolle schuifdeuren.
•	De woning beschikt over twee zonnige balkons, met vrij uitzicht over de wijde omgeving – perfect om de dag te beginnen met een kop koffie of te eindigen met een drankje in de zon.
•	De ruime keuken is voorzien van inbouwapparatuur en biedt eveneens mogelijkheden tot herindeling.
•	De master bedroom is uitgerust met airconditioning en grenst aan een eigen hal met separaat toilet.
•	De badkamer is compleet met dubbele wastafel, ligbad en tweede toilet.
•	Daarnaast is er een handige was-/bergruimte direct naast de entree.
•	Op de begane grond is een extra berging van 7,5 M2 behorend bij dit appartement.

Locatie: de ligging is ronduit ideaal:
•	Binnen enkele minuten bereikt u het overdekte winkelcentrum Stadshart Amstelveen (Binnenhof).
•	Openbaar vervoer ligt letterlijk om de hoek: bus 300 brengt u in slechts 9 minuten naar Schiphol.
•	Ook de uitvalswegen A9, A2 en A10 zijn uitstekend bereikbaar.
•	Voor bewoners is er ruim voldoende gratis parkeergelegenheid direct voor de deur.
Pluspunten op een rij:
•	Maar liefst 145 m² woonoppervlak
•	Flexibele indeling met 4 tot 5 kamers mogelijk
•	Royale woonkamer (49 m²) met veel licht
•	Twee balkons met vrij uitzicht
•	Master bedroom met airco
•	Badkamer met ligbad en twee toiletten
•	Eigen was-/bergruimte
•	Centrale ligging nabij Stadshart, Schiphol en uitvalswegen
•	Gratis parkeren voor bewoners
•	Extra berging van 7,5 M2 op begane grond
Dit ruime appartement combineert wooncomfort, flexibiliteit en een toplocatie. Kom kijken en laat u verrassen – misschien heeft u hier uw nieuwe (t)huis gevonden! 
Maak snel een afspraak voor een bezichtiging en ontdek zelf de ruimte, het licht en het prachtige uitzicht van dit appartement.

Deze informatie is door ons met de nodige zorgvuldigheid samengesteld. Onzerzijds wordt echter geen enkele aansprakelijkheid aanvaard voor enige onvolledigheid, onjuistheid of anderszins, dan wel de gevolgen daarvan. 

Bright 145 m² apartment on 7th floor – flexible layout and prime location”
Spacious 4/5-room apartment (145 m²) on the 7th floor with panoramic views, two sunny balconies, and free parking.
Located in the well-maintained Amstelborgh complex, within walking distance of Amstelveen’s Stadshart shopping center, public transport, and major highways. With a 49 m² living room, master bedroom with air conditioning, bathroom with bathtub, and the option to create additional bedrooms, this apartment offers exceptional space and comfort.
On the seventh floor of the well-kept Amstelborgh complex, we proudly present this generous apartment of no less than 145 m². With an impressive living room, multiple bedrooms (expandable to 4 or even 5), sunny balconies at the front and back, and a prime location near the city center, public transport, and highways, this home offers endless possibilities.
Layout: From the spacious central hall, all rooms are accessible:
•	The living room of approx. 49 m² is bright and spacious. Thanks to the practical layout, an open-plan kitchen can easily be created here, allowing the current kitchen area to be converted into an extra bedroom or study.
•	Adjacent to the living room is another room, currently used as a study, separated by stylish sliding doors.
•	The apartment features two sunny balconies with wide, unobstructed views – the perfect spot to start the day with coffee or to enjoy an evening drink in the sun.
•	The spacious kitchen is fitted with built-in appliances and also offers options for reconfiguration.
•	The master bedroom is equipped with air conditioning and connects to its own hallway with a separate toilet.
•	The bathroom is complete with a double washbasin, bathtub, and second toilet.
•	In addition, there is a convenient laundry/storage room directly next to the entrance.
Location
The location is simply ideal:
•	Within a few minutes you reach the covered Stadshart Amstelveen shopping center (Binnenhof).
•	Public transport is literally around the corner: bus 300 takes you to Schiphol Airport in just 9 minutes.
•	Major highways A9, A2, and A10 are easily accessible.
•	Residents benefit from ample free parking directly in front of the building.
Expat-friendly living
Amstelveen is known as one of the most international and family-friendly cities in the Amsterdam area. This apartment is perfectly situated for expats:
•	Close to the International School of Amsterdam (ISA), as well as other international schools.
•	Quick and easy access to Amsterdam city center by metro, tram, or car.
•	Schiphol Airport just minutes away, ideal for frequent travelers.
•	A wide range of international shops, restaurants, and cultural facilities within walking and cycling distance.
Key features at a glance:
•	A generous 145 m² of living space
•	Flexible layout with 4 to 5 rooms possible
•	Bright and spacious living room (49 m²)
•	Two balconies with unobstructed views
•	Master bedroom with air conditioning
•	Bathroom with bathtub and two toilets
•	Private laundry/storage room
•	Central location near Stadshart Amstelveen, Schiphol, and major highways
•	Free resident parking
•	Extra storage of 7,5 M2 on ground floor
This spacious apartment combines comfort, flexibility, and a prime location.
Schedule a viewing soon and experience for yourself the space, light, and stunning views this apartment has to offer.

This information has been compiled by us with the necessary care. On our part, however, no liability is accepted for any incompleteness, inaccuracy or otherwise, or the consequences thereof. All specified sizes and surfaces are indicative.

Kenmerken