Description

Contemporary living in the heart of Zaandam: move-in ready 3-room apartment with luxurious finishes

At Langestraat 96-B, you’ll live in a historic building (1905) that was completely renovated in 2024. The result: a move-in ready 3-room apartment with energy label A, underfloor heating, HR++ double glazing, and a sleek, contemporary interior. In addition, you’ll have a parking permit (unique for this complex). In front of the property, there’s a sunny seating area – perfect for enjoying the outdoors after work.

Langestraat is located right in the vibrant center of Zaandam. All amenities are within easy reach: supermarkets, cozy restaurants, coffee bars, the fresh market, and the well-known Gedempte Gracht. The Hermitage shopping center and Pathé cinema are also within walking distance. For relaxation, you can stroll to the Volkspark or along the Zaan River, where waterside terraces invite you to sit down, or take your bike towards the greenery of Darwinpark.

Accessibility is excellent:
• Zaandam Station is only a 10-minute walk away (3 minutes by bike), with a direct train to Amsterdam Central Station in just 12 minutes – faster than from many Amsterdam neighborhoods.
• By bike, you can reach Amsterdam-North within 15 minutes, via the ferry across the IJ.
• Main roads A7, A8, and A10 are close by, allowing quick access by car to Amsterdam, Haarlem, or Alkmaar.
• Parking is easy with the permit, right in front of the building – and visitors can park nearby as well.

In short: an urban location with all the comforts of modern living and the welcoming atmosphere of the Zaan region – and with Amsterdam just around the corner.

The homeowners’ association (VvE) is currently being formed and will be professionally managed once established. This means future residents can count on well-organized management and maintenance, with a reserve fund and maintenance plan to be set up shortly. The monthly VvE service charges are €91,80.

Layout

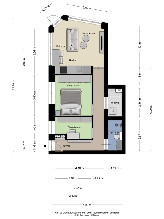
ENTRANCE (ground floor)
Through your own entrance, you enter the hallway with access to all rooms. In addition, the property has a second entrance via the living room — practical and inviting.

LIVING ROOM & KITCHEN
The bright living room, with beautiful large windows, is a real eye-catcher and provides plenty of natural light and a pleasant atmosphere. The modern open kitchen (2024) is equipped with high-quality built-in appliances and offers everything a cooking enthusiast could wish for.

BEDROOMS
The apartment features two bedrooms. The spacious master bedroom is comfortable and quietly located, while the second room is ideal as a guest room, home office, or children’s room.

BATHROOM
The luxurious bathroom (2024) is stylishly finished and equipped with a walk-in shower, washbasin cabinet, and floating toilet.

OTHER
In the hallway, you’ll find a practical storage space with the central heating system (Intergas HR 2024) and connections for a washing machine and dryer. In front of the property, you can enjoy the sunshine at your own private sitting area.

Thanks to underfloor heating, excellent insulation, and recent upgrades, the home feels comfortable and cozy throughout.

Details

• Built in 1905, completely renovated in 2023/2024
• Living area 54 m²
• Energy label A
• Freehold property (no ground lease)
• Certified Safe Living (Politiekeurmerk Veilig Wonen)
• Fully renewed: façades, roof, installations, kitchen, bathroom, floors, and window frames
• HR++ double glazing and full insulation
• Underfloor heating throughout the entire apartment
• New and professionally managed homeowners’ association (VvE), contribution €91,80 per month
• Parking permit (also available for visitors)
• Shared bicycle storage
• Centrally located in Zaandam, close to shops, restaurants, and the train station

A unique opportunity: live in a historic building with a rich past, completely renewed and move-in ready, offering the comfort of energy label A – right in the vibrant heart of Zaandam, with Amsterdam just fifteen minutes away. Schedule a viewing soon and experience the perfect balance between history, luxury, and city living!

Features