Description

Sfeervol, licht en verrassend ruim wonen aan de Kerkewijk; mét garage, tuingerichte werkkamer op de begane grond, vijf slaapkamers én een heerlijke tuin met overkappingen.

Deze fijne twee-onder-een-kap villa combineert comfort en ruimte met een praktische indeling en volop (berg)mogelijkheden. Binnen geniet u van een royale woon-/eetruimte, een moderne keuken met eiland en een prettige lichtinval. Buiten wacht een fraai aangelegde tuin met meerdere terrassen en een lounge-overkapping/veranda met verlichting, geïntegreerde heaters, een open haard en een separate berging met keuken Zowel het interieur als de tuin zijn onder architectuur ontworpen. En parkeren? Dat kan gewoon op eigen terrein, naast, voor of in de garage.

De woning is gelegen aan de Kerkewijk, één van de mooiste en meest geliefde straten van Veenendaal. Deze karakteristieke straat vormt een prettige verbinding tussen het levendige centrum en de belangrijkste uitvalswegen, waardoor u profiteert van een ideale, centrale ligging. Winkels, scholen, sportvoorzieningen en diverse horecagelegenheden bevinden zich op loop- en fietsafstand. En wilt u juist de rust opzoeken? Binnen enkele minuten staat u in de natuur: de bossen van de Utrechtse Heuvelrug en de uitgestrekte weilanden rondom Veenendaal liggen letterlijk om de hoek. Ook de snelwegen richting Utrecht, Arnhem en Amersfoort zijn snel en eenvoudig bereikbaar, daarbij is het NS-station op loopafstand. Kortom: wonen aan de Kerkewijk betekent het beste van twee werelden; stadse voorzieningen dichtbij én volop groen op loopafstand. 

Deze woning is in 2022 voorzien van maar liefst 25 zonnepanelen, waarmee u profiteert van een uitstekende energieopbrengst en een aanzienlijke besparing op uw maandelijkse kosten. Dat betekent niet alleen financieel voordeel, maar ook een bewuste keuze voor een duurzamere toekomst. Daarnaast beschikt de woning over een WTW-systeem (warmteterugwinning). Dit ventilatiesysteem zorgt continu voor frisse lucht in huis, terwijl de warmte van de afgevoerde lucht wordt hergebruikt om de binnenkomende lucht te verwarmen. Zo geniet u van een gezond binnenklimaat zonder onnodig warmteverlies. De combinatie van goede isolatie, zonnepanelen en het WTW-systeem resulteert in een uitstekend energielabel A++. Dat staat garant voor comfortabel wonen, een aangenaam binnenklimaat in alle seizoenen én een toekomstbestendige investering.

Begane grond
Via de entree komt u in de hal met toiletruimte, kastruimte en de trapopgang. Vanuit hier stapt u de lichte woonkamer in: ruim opgezet, met volop mogelijkheden voor een royale zithoek zonder dat dit ten koste gaat van de loopruimte. De indeling voelt open en verbonden, maar biedt tegelijk genoeg plekken om het knus en gezellig in te richten. De verlichting is geïntegreerd in de wanden, wat een mooi ruimtelijk effect geeft.
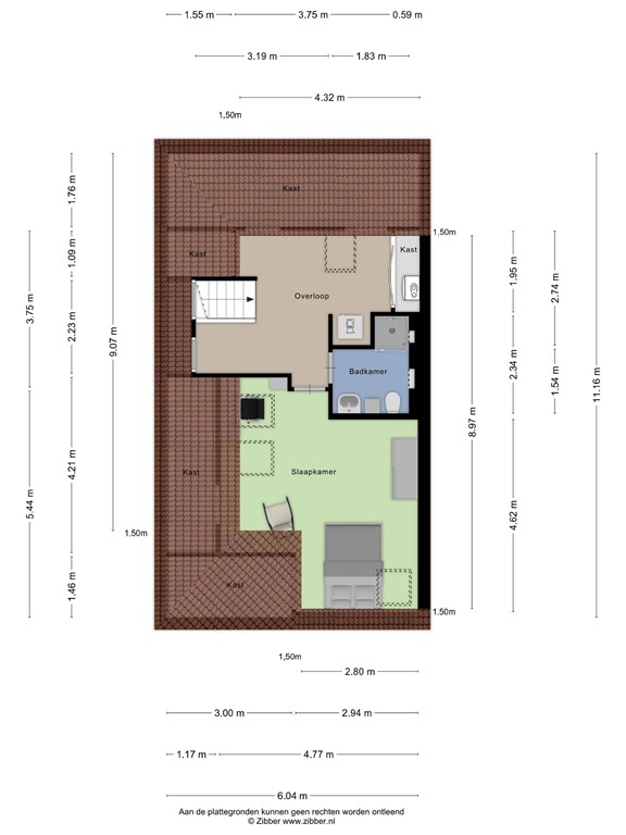
De half -open en moderne keuken van Bulthaup vormt samen met de eethoek het hart van de woning: een heerlijke plek om te koken en gezellig samen te zijn. Aansluitend aan de eethoek bevinden zich openslaande deuren naar buiten, waardoor binnen en buiten op natuurlijke wijze in elkaar overlopen. Vanuit de hal bereikt u ook de garage (met bergzolder) welke ideaal te gebruiken is als bergruimte en/of stalling van de auto en fietsen. Achter de garage bevindt zich nog een extra kamer; ideaal als thuiswerkplek, hobbyruimte of speel-/logeerkamer. Deze ruimte kan ook gebruikt worden als slaapkamer, tevens kan er ook een badkamer gerealiseerd worden in de garage.

Eerste verdieping
Op de eerste verdieping komt u op de overloop die toegang geeft tot vier slaapkamers. De kamers zijn prettig en ruim van formaat en daardoor geschikt voor een gezin, logees of bijvoorbeeld een combinatie van slapen en werken/studeren. De hele verdieping is voorzien van dezelfde houten vloer als de benedenverdieping.  De grotere slaapkamer heeft bovendien toegang tot het balkon aan de Kerkewijk: een leuke extra om even een frisse neus te halen of de dag rustig te starten. De badkamer is compleet ingericht met dubbele wastafel, inloopdouche en bad. Daarnaast is er nog een separaat toilet. 

Tweede verdieping
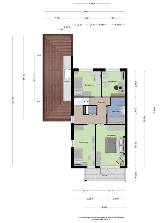
De tweede verdieping voegt nog eens extra ruimte toe. Hier vindt u tevens een ruime overloop, de vijfde slaapkamer en een tweede badkamer. Op de overloop kan ook een werkkamer gemaakt worden. Daarbij is er volop bergruimte achter de knieschotten en in de nok van het huis, waardoor u ook op dit niveau alles netjes kunt wegwerken. Juist die combinatie van extra kamer(s) en praktische opbergmogelijkheden maakt deze woning geschikt voor veel verschillende woonwensen; van (samengestelde) gezinnen tot thuiswerkers die echt aparte ruimtes willen. De vijfde slaapkamer kan eventueel gesplitst worden, waardoor er zelfs een zesde slaapkamer gecreëerd kan worden.

Tuin
De door een tuinarchitect ontworpen tuin is verzorgd aangelegd en nodigt uit om veel buiten te zijn. Er is een ruim terras, een gazon en meerdere fijne plekken om te zitten. Achterin staat een separate berging (met keuken) met daarnaast een lounge-overkapping/veranda , waardoor u hier ook op minder zonnige dagen beschut kunt genieten. Zeker ook omdat deze overkapping voorzien is van geïntegreerde heaters, een open haard en ingebouwde verlichting. Deze overkapping kan eenvoudig worden aangepast naar een tuinkamer door het plaatsen van (glazen) wanden. Het buitenleven voelt hier als een verlengstuk van uw woonruimte. De hoge esdoorns in leivorm geven u privacy. De tuin is onderhoudsvrij en voorzien van een in zones ingedeelde automatische beregeningsinstallatie (zowel druppelslangen als sproeiers die weggewerkt zijn in het gras) die doorgetrokken is naar de voortuin.

Kortom: een complete woning met veel licht, een sterke indeling, vijf slaapkamers, twee badkamers, een extra kamer op de begane grond, garage én een tuin waar u direct blij van wordt. Een huis dat u eigenlijk van binnen moet ervaren om te voelen hoe ruim en prettig het allemaal aanvoelt.

Algemene gegevens
- Type woning: Twee-onder-een-kap Villa
- Bouwjaar: 2003
- Aantal kamers: 7
- Aantal slaapkamers: 5 met de mogelijkheid om van de werkkamer op de begane grond een slaapkamer te maken
- Aantal badkamers: twee badkamers
- Parkeerruimte: 2x eigen terrein en in de garage
- Aanwezig: dakkapel/berging/inpandige garage
- Ligging tuin: op het westen en tot laat zon
- Tuin bereik: opzij en via de woning

Technische gegevens
- Warmwatervoorziening: HR combi cv- ketel bj. 2013 Remeha
- Verwarmvoorziening: HR combi cv- ketel bj. 2013 Remeha
- Zonnepanelen: 25 stuks
- Openhaard
- Voorzieningen: alarminstallatie/vliering
- Mechanische ventilatie: Balansventilatiesysteem voor een optimaal klimaat in huis
- Isolatie: volledige dak/spouw/vloer isolatie
- Dubbel glas: geheel HR
- Glasvezel kabel, TV kabel
- Kozijnen: hardhout
- Energielabel A++ Geldig tot januari 2036

WILT U EVEN BINNEN KIJKEN?
Voor meer informatie omtrent deze woning, kunt u contact opnemen met ons kantoor in Veenendaal.
U bent van harte welkom! De beste indruk van deze woning krijgt u natuurlijk tijdens een bezichtiging. Wij proberen onze bezichtigingen altijd in samenspraak met verkoper en koper te plannen en nemen ruim de tijd, zodat u op uw gemak de woning kan bekijken en ervaren.
N.B. Aan de samenstelling van deze gegevens is maximale zorg besteed. Aan onvolkomenheden in de vermelde gegevens en tekeningen kunnen geen rechten en aanspraken worden ontleend.

Features