| Price | €835,000 |
| Type of residence | House, single-family house, semi-detached house |
| Plot size | 379 m² |
| Liveable area | 184 m² |
| Acceptance | By consultation |
| Status | Sold |
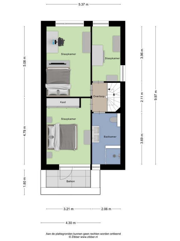
Aan Breukkruid 2 in Veenendaal staat een verrassend ruime twee-onder-een-kapwoning met een woonoppervlakte van maar liefst 183m². Deze moderne woning combineert comfort, ruimte en stijl op een prachtige locatie in de geliefde wijk Petenbos. U geniet hier van een lichte woonkamer met open keuken, maar liefst vijf slaapkamers, een instapklare badkamer, een praktische zolderverdieping en diverse bergruimtes. De woning is uitstekend onderhouden, beschikt over zonnepanelen, een eigen oprit én een garage. Zowel de voor- als achtertuin zijn verzorgd aangelegd, zodat u hier optimaal kunt genieten van het buitenleven. Een ideale woning voor wie royaal wil wonen met alle gemakken van nu. In de gewilde wijk Petenbos woont u rustig, groen en kindvriendelijk, met alle voorzieningen binnen handbereik. Op korte afstand vindt u diverse basisscholen, sportverenigingen en speelvoorzieningen, waardoor de wijk zeer geliefd is bij gezinnen. Ook de supermarkten en winkels voor de dagelijkse boodschappen bevinden zich op loop- en fietsafstand. De wijk is goed bereikbaar met openbaar vervoer: bushaltes liggen op enkele minuten lopen en het station Veenendaal-Centrum is binnen tien minuten bereikbaar. Dankzij de nabijgelegen A12 en N233 bent u bovendien in een mum van tijd in steden als Utrecht, Ede of Arnhem. Een rustige woonomgeving met een uitstekende ligging, nabij de Utrechtse Heuvelrug. Entree: Via de verzorgde voortuin en de eigen oprit bereikt u de entree van de woning. Hier is ruimte genoeg om meerdere auto’s te parkeren, terwijl er in de directe omgeving eveneens voldoende parkeergelegenheid is. Eenmaal binnen komt u in de ruime hal, die toegang biedt tot het toilet, de woonkamer, de garage en de trap naar de eerste verdieping. De nette afwerking en de lichte uitstraling zorgen direct voor een prettige eerste indruk. Woonkamer: Vervolgens betreedt u de royale woonkamer, die uitblinkt door zijn open indeling en grote raampartijen. De overvloed aan licht geeft de ruimte een warme en uitnodigende sfeer. De woonkamer biedt volop mogelijkheden om een comfortabele zithoek en een sfeervolle eethoek te creëren. Eyecatcher is de haard, die niet alleen warmte, maar ook karakter toevoegt aan het interieur. Aansluitend aan de woonkamer is een ruime kantoorruimte, ideaal om wonen en werken te combineren of om een aparte ruimte te creëren voor de kinderen. Dankzij de openslaande deuren naar de achtertuin loopt binnen en buiten hier naadloos in elkaar over. Keuken: Aan de voorzijde bevindt zich de moderne, U-vormige keuken, die in open verbinding staat met de woonkamer. Hier beschikt u over een compleet keukenblok met Boretti gasfornuis met oven, ingebouwde stoom-ovencombinatie, koelkast, vaatwasser, spoelbak en voldoende opbergruimte in zowel lades als kastjes. De moderne uitstraling, gecombineerd met het praktische barretje, maakt dit een fijne plek om te koken én samen te komen. Extra kamer: Grenzend aan de woonkamer ligt een extra kamer die naar wens in te richten is. Deze ruimte kan uitstekend dienen als kantoor, speelhoek, of bijvoorbeeld als hobbykamer. Dankzij de gunstige ligging en de rustige sfeer vormt dit een veelzijdige toevoeging aan de woning. 1e verdieping: De vaste trap vanuit de hal brengt u naar de eerste verdieping, waar drie lichte en ruime slaapkamers en de badkamer te vinden zijn. De overloop verbindt de vertrekken op een prettige manier, waardoor deze verdieping een logische en praktische indeling heeft. Slaapkamers: Alle drie de slaapkamers bevinden zich aan de overloop en zijn royaal van formaat. De kamers worden rijkelijk voorzien van daglicht dankzij de grote ramen. Er is voldoende ruimte voor een bed, bureau en kledingkast, en één van de slaapkamers beschikt bovendien over een balkon aan de voorzijde. De kamers zijn multifunctioneel in te richten, ideaal voor gezinnen of thuiswerkers. Sanitair: De badkamer is stijlvol betegeld en tot in de puntjes verzorgd. U vindt hier een inloopdouche met glazen wand, een zwevend toilet, en een dubbele wastafel met spiegel. De afwerking is modern en tijdloos, waardoor u hier elke dag in een frisse, ontspannen sfeer kunt beginnen of eindigen. 2e verdieping: Een vaste trap leidt u naar de ruime tweede verdieping, waar zich nog eens twee slaapkamers en een wasruimte bevinden. Dankzij de ligging onder de kap (met dakkapellen) zijn de kamers sfeervol en hebben ze een karakteristieke uitstraling. Beide slaapkamers bieden voldoende ruimte voor een bed, bureau en kast, en kunnen naar wens worden ingericht als logeer-, werk- of tienerkamer. De wasruimte biedt praktische opslagruimte en herbergt tevens de aansluitingen voor witgoed. Buitenruimte: Achter de woning ligt een riante en zonnige achtertuin, die grotendeels is bestraat maar ook voorzien is van fraai groen. Dankzij de gunstige ligging geniet u hier van veel zonuren en volop privacy. Er is meer dan genoeg ruimte voor een loungehoek, eettafel of zomerse barbecue. Achterin de tuin bevindt zich een overkapping en een berging, ideaal voor tuinmeubilair of fietsen. Hier ervaart u het echte buitenleven, midden in de woonwijk. Garage: Aan de woning grenst een ruime garage, die zowel via de hal als via de oprit bereikbaar is. De garage biedt volop mogelijkheden voor het stallen van fietsen, het opbergen van gereedschap of tuinspullen, of zelfs het parkeren van een auto. Een praktische toevoeging die het wooncomfort nog verder vergroot. Algemene gegevens - Type woning: Twee-onder-een-kap - Bouwjaar: 1998 - Verbouwjaar: 2010 dakkapel, 2011 uitbouw+veranda, 2015 keuken, 2018 badkamer - Aantal kamers: 7 - Aantal slaapkamers: 5 - Aantal werkkamers: 1 - Aantal badkamers: 1 - Parkeerruimte: 2 op eigen oprit en openbaar - Aanwezig: dakkapellen/berging/garage/veranda - Ligging tuin: zuidwest - Tuin bereik: achter en via de woning Technische gegevens - Warmwatervoorziening: Atag (2011) - Verwarmvoorziening: Atag (2011) - Vloerverwarming: begane grond - Zonnepanelen: 8 stuks (AEG 430) - Gashaard - Voorzieningen: buitenzonwering - Mechanische ventilatie: aanwezig - Isolatie: dak/spouw/vloer geheel - Dubbel glas: geheel (HR+) - Glasvezel kabel, TV kabel - Kozijnen: hout WILT U EVEN BINNEN KIJKEN? Voor meer informatie omtrent deze woning, kunt u contact opnemen met ons kantoor in Veenendaal op telefoonnummer 0318-559600. U bent van harte welkom! De beste indruk van deze woning krijgt u natuurlijk tijdens een bezichtiging. Wij proberen onze bezichtigingen altijd in samenspraak met verkoper en koper te plannen en nemen ruim de tijd, zodat u op uw gemak de woning kan bekijken en ervaren. N.B. Aan de samenstelling van deze gegevens is maximale zorg besteed. Aan onvolkomenheden in de vermelde gegevens en tekeningen kunnen geen rechten en aanspraken worden ontleend.
| Reference number | 08100 |
| Asking price | €835,000 |
| Gas | €143 |
| Water | €33 |
| Status | Sold |
| Acceptance | By consultation |
| Offered since | 24 October 2025 |
| Last updated | 12 December 2025 |
| Type of residence | House, single-family house, semi-detached house |
| Type of construction | Existing estate |
| Construction period | 1998 |
| Roof materials | Bitumen Tiles |
| Rooftype | Front gable |
| Isolations | Cavity wall Floor Full HR glazing Insulated glazing Roof Wall |
| Plot size | 379 m² |
| Floor Surface | 184 m² |
| Content | 709 m³ |
| Surface area other inner rooms | 17 m² |
| External surface area storage rooms | 7 m² |
| External surface area | 5 m² |
| Number of floors | 3 |
| Number of rooms | 7 (of which 5 bedrooms) |
| Number of bathrooms | 1 (and 1 separate toilet) |
| Location | Near school On a quiet street Residential area |
| Type | Back yard |
| Main garden | Yes |
| Orientation | South west |
| Has a backyard entrance | Yes |
| Condition | Well maintained |
| Garden 2 - Type | Front yard |
| Garden 2 - Orientation | North east |
| Garden 2 - Condition | Well maintained |
| Energy certificate | A |
| Type of boiler | Atag |
| Heating source | Gas |
| Year of manufacture | 2011 |
| Combiboiler | Yes |
| Boiler ownership | Owned |
| Number of parking spaces | 2 |
| Water heating | Central heating system |
| Heating | Central heating Gas fireplace Partial Floor heating |
| Ventilation method | Mechanical ventilation Natural ventilation |
| Kitchen facilities | Built-in equipment |
| Bathroom facilities | Double sink Toilet Walkin shower Washbasin furniture |
| Parking | Attached stone |
| Has a balcony | Yes |
| Has fibre optical cable | Yes |
| Garden available | Yes |
| Has a garage | Yes |
| Has a storage room | Yes |
| Has solar blinds | Yes |
| Has solar panels | Yes |
| Has ventilation | Yes |
| Cadastral designation | Veenendaal F 2533 |
| Area | 379 m² |
| Range | Entire lot |