Description

Putselaan 234B – Rotterdam

Ben je starter of expat en op zoek naar een comfortabel appartement op een centrale locatie in Rotterdam? Dan is dit goed ingedeelde 2-kamerappartement van ca. 66 m², gelegen op de eerste etage, absoluut het bekijken waard.

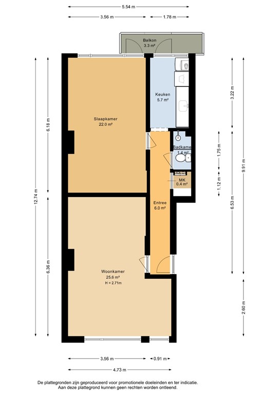
De woning beschikt over een ruime en lichte woonkamer aan de voorzijde, ideaal om te wonen, werken en ontspannen. Aan de rustige achterzijde bevindt zich de royale en lichte slaapkamer, wat zorgt voor een prettige balans tussen levendigheid en rust.

De aparte keuken is bereikbaar vanuit de hal en biedt toegang tot het balkon aan de achterzijde. Ook vanuit de slaapkamer is het balkon te bereiken: een fijne plek voor een kop koffie in de ochtend of om even buiten te zitten. Vanuit de hal is tevens de badkamer met douche en toilet bereikbaar.

Comfort & duurzaamheid

Het appartement beschikt over een energielabel B, wat zorgt voor lagere energielasten en een comfortabel binnenklimaat. Daarnaast wordt op korte termijn het houten kozijnwerk vervangen door onderhoudsarm kunststof, wat niet alleen praktisch is, maar ook bijdraagt aan de toekomstwaarde van de woning. Instapklaar wonen, met verduurzaming al geregeld.

Locatie & bereikbaarheid

De Putselaan is gelegen in Rotterdam-Zuid, een stadsdeel dat volop in ontwikkeling is en steeds populairder wordt bij jonge kopers en internationals. In de directe omgeving vind je winkels, supermarkten, horeca en openbaar vervoer. Het stadscentrum van Rotterdam is snel en eenvoudig bereikbaar, net als uitvalswegen richting andere delen van de Randstad.

Dankzij de vele investeringen in de wijk is dit een buurt met toekomstperspectief: prettig om nu te wonen én interessant voor de lange termijn.

Waarom dit appartement?

Ideaal voor starters en expats die willen kopen
Ruim en licht appartement van ca. 66 m²
Balkon aan de achterzijde
Energielabel B
Kunststof kozijnen op korte termijn
Centrale locatie met goede bereikbaarheid
Een fijne eerste koopwoning of een comfortabele stap richting blijvend wonen in Rotterdam.

* Project notaris reeds aangesteld

Features