Description

Ontdek dit geweldige volledig nieuw gerenoveerde en ruime appartement op een toplocatie in Rotterdam!

Welkom in de bruisende wijk Feijenoord, waar het stedelijke leven samenkomt met een gemoedelijke sfeer. Voor jonge gezinnen is dit de perfecte plek om te settelen. Met gezellige speeltuinen, leuke kindvriendelijke cafés en scholen in de buurt, hoef je je hier nooit te vervelen.

**Een droomwoning voor starters en jonge gezinnen**

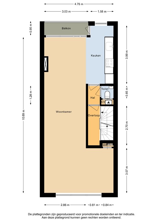
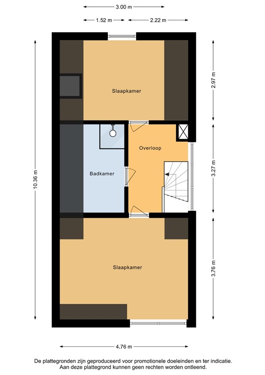
Stap binnen in dit prachtige appartement aan de Millinxstraat 26-B02 en laat je betoveren door de ruimte en het comfort. Dit dubbele bovenhuis, gelegen op de 2e en 3e etage, van 100m2 is volledig gerenoveerd en klaar om betrokken te worden.  De woonetage kenmerkt zich door de vele lichtinval in de doorzonwoonkamer.

**Moderne faciliteiten voor optimaal woongenot**

De nieuwe inbouwkeuken is een waar pronkstuk en biedt alle ruimte en gemak om de lekkerste maaltijden te bereiden. De ruime nieuwe badkamer is een oase van rust en ontspanning. Met maar liefst 2 comfortabele slaapkamers is er genoeg ruimte voor het hele gezin.

**Wonen in Feijenoord: Jouw thuis in bruisend Rotterdam**

Ontdek de levendigheid van Rotterdam vanuit je eigen stekje in Feijenoord. Met goede verbindingen naar het centrum en alle voorzieningen binnen handbereik, is dit de ideale locatie voor jonge gezinnen die willen genieten van alles wat de stad te bieden heeft.

Aarzel niet langer en maak van deze kant en klare woning jouw nieuwe thuis. Maak snel een afspraak voor een bezichtiging en wie weet ben jij binnenkort de trotse eigenaar van dit fantastische appartement in Feijenoord.

- Nieuw gerenoveerd
- Nieuwe luxe keuken met apparatuur
- Ruime slaapkamers
- Ruime en nieuwe badkamer met inloopdouche
- Nieuwe vloer door hele woning

* Foto's met meubilair zijn met AI gegenereerd

Features