Description

Buizerdstraat 15B – Rotterdam

Licht 3-kamerappartement met balkon en berging – ideaal voor starters

Ben je op zoek naar een fijne eerste woning in Rotterdam? Dan is dit lichte en praktisch ingedeelde 3-kamerappartement op de tweede verdieping absoluut het bekijken waard. De woning beschikt over een prettige indeling, veel natuurlijke lichtinval, een balkon aan de achterzijde én een ruime berging in de onderbouw.

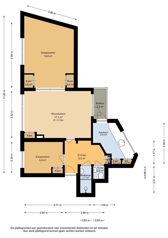
Het appartement is bereikbaar via een verzorgd gezamenlijk portiek dat wordt gedeeld met vijf andere woningen. Je komt binnen in een ruime hal die toegang geeft tot vrijwel alle vertrekken van de woning. Aan de achterzijde bevindt zich de ruime keuken met toegang tot het balkon – een fijne plek om even buiten te zitten.

De woonkamer is licht en ruim dankzij de grote raampartijen. Vanuit de woonkamer is via een dubbele schuifdeur de tweede slaapkamer bereikbaar. Deze kamer kan ook uitstekend dienen als werk-, logeer- of hobbykamer. De eerste slaapkamer bevindt zich aan de halzijde, evenals het separate toilet en de badkamer.

De woning is voorzien van kunststof kozijnen met dubbel glas en beschikt over energielabel C. Verwarming en warm water worden verzorgd door een combiketel uit 2018. In de onderbouw bevindt zich een ruime privéberging, ideaal voor fietsen en extra opslagruimte.

De Vereniging van Eigenaren is stabiel en gezond. Binnen de VvE wordt actief gewerkt aan het onderhoud en de toekomstbestendigheid van het complex. Zo staat het opknappen van het trappenhuis binnenkort gepland en wordt er gewerkt aan verdere verduurzaming. In verband met deze verduurzamingsslag ligt de maandelijkse bijdrage momenteel hoger dan gemiddeld.

De omgeving

De Buizerdstraat ligt in een levendige en steeds populairder wordende wijk in Rotterdam. In de directe omgeving zijn diverse winkels, supermarkten, horeca en sportvoorzieningen te vinden. Ook zijn er goede openbaar vervoerverbindingen en ben je met de fiets of auto snel in het centrum van Rotterdam. Voor ontspanning liggen verschillende parken en groenvoorzieningen op korte afstand. Dit maakt de locatie aantrekkelijk voor starters die graag rustig wonen met alle stadsvoorzieningen binnen handbereik.

Kortom: een licht en praktisch appartement op een fijne plek in Rotterdam – een uitstekende start op de woningmarkt.

Bijzonderheden:
Gelegen op de 2e verdieping
Toegang via gezamenlijk portiek met 5 andere woningen
Veel lichtinval door grote raampartijen
Kunststof kozijnen met dubbel glas
Energielabel C
2 slaapkamers
Balkon aan de achterzijde
Ruime berging in de onderbouw
Combiketel uit 2018
Actieve en gezonde VvE
VvE investeert in onderhoud en verduurzaming
Trappenhuis wordt binnenkort opgeknapt vanuit de VvE

Bieden vanaf € 225.000 kk.

** Project notaris is reeds aangesteld.

Features