Description

Op een toplocatie in Rhenen, nabij zowel de bossen van de Utrechtse heuvelrug als het karakteristieke centrum, vindt u deze vrijstaande woning met riant perceel van ca. 450 m2. 

Om precies te zijn ligt, deze sfeervolle woning met eigen oprit en garage, aan de Jan van Arkelweg 11 te Rhenen. De woning is verrassend ruimte, heerlijk licht en biedt u enorm veel woonmogelijkheden. Met een woonoppervlakte van circa 100m² beschikt deze woning over een lichte open woonkamer, heerlijke woon-/leefkeuken met uitzicht op de tuin, badkamer op de begane grond en 2 riante slaapkamers op de verdieping. Daarnaast bieden de vaste kasten, vrijstaande berging en aangebouwde garage extra opslagmogelijkheden of ruimte voor hobby's. De privacy rijke, goed onderhouden en zonnige tuin met overkapping maakt het plaatje compleet. Dit is een woning met enorm veel potentie en mogelijkheden waarbij u kunt denken aan het combineren van werken en wonen, levensloopbestendig wonen of het creëren van fantastisch gezinswoning. Met enige modernisering maakt u de woning geheel toekomstbestendig. Bent u op zoek naar een woning met rust, ruimte én potentie? Dan zou dit zomaar uw volgende thuis kunnen zijn.

In een rustige, groene woonwijk van Rhenen, bevindt zich deze woning aan de Jan van Arkelweg. Een fijne omgeving met volop voorzieningen op korte afstand. Zo liggen basisscholen en middelbare scholen op fietsafstand en zijn er diverse sportverenigingen eenvoudig te bereiken. De supermarkt en overige dagelijkse voorzieningen vindt u in het nabijgelegen centrum van Rhenen. Voor forenzen is de ligging ideaal: binnen enkele minuten bereikt u het NS-station van Rhenen en ook de uitvalswegen richting Wageningen, Veenendaal en Utrecht zijn goed bereikbaar. Daarnaast liggen de bossen van de Utrechtse heuvelrug en de natuurgebieden rondom de Rijn op u te wachten. Beide liggen op korte afstand. Een omgeving die zowel rust biedt als praktische voordelen voor jong en oud.

Entree:
Langs de verzorgde voortuin en via de oprit, waar voldoende plek is voor het parkeren van een a 2 auto’s, betreedt u de woning aan de zijkant. De hal vormt het centrale punt en biedt toegang tot de toiletruimte, de woonkamer en de trap naar de eerste verdieping. Hier vindt u voldoende ruimte voor een kapstok of opbergmeubel, terwijl het daglicht ook deze ruimte aangenaam maakt. 

Woonkamer:
Een open en lichte ruimte vormt het hart van de woning. De woonkamer is ruim opgezet, met grote raampartijen die zorgen voor een prettige lichtinval gedurende de dag. Er is volop gelegenheid om een comfortabele zithoek te creëren rondom de sfeervolle haard, die de eyecatcher van deze ruimte vormt. Ook voor een eetgedeelte is voldoende plaats, waardoor het geheel een uitnodigende en flexibele indeling biedt. Via deze ruimte bereikt u de afgesloten woon-/leefkeuken en de badkamer. 

Badkamer:
Een praktische toevoeging op de begane grond is de badkamer. Deze is voorzien van een ruim ligbad met douchekop en een wastafel met spiegel. Hoewel de afwerking netjes is en de ruimte volledig betegeld, kan een eigentijdse update hier het wooncomfort verder verhogen.

Keuken:
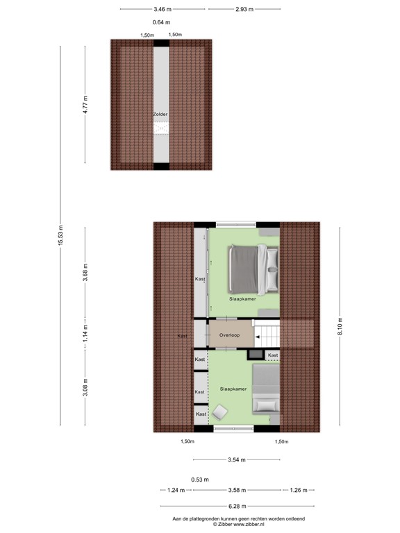
Via een tweede hal met de nodige bergruimte, de wasmachineaansluiting en de cv-installatie bereikt u de woon-/leefkeuken aan de achterzijde van de woning. De keuken is royaal opgezet en biedt dankzij de L-vormige opstelling voldoende werkruimte en bergruimte. Hier vindt u een gasfornuis met afzuiging, een spoelbak en plek voor een losstaande koelkast en ovencombinatie. Ook is er genoeg ruimte om een gezellige eethoek te plaatsen. De keuken is functioneel ingericht, maar biedt volop mogelijkheden om naar eigen smaak te moderniseren. De vele raampartijen uitkijkend over de tuin maken dit tot een heerlijke ruimte. Boven de keuken is ook nog een zolder die u bereikt doormiddel van een vlizotrap.

1e verdieping:
Boven aangekomen via de trap treft u een centrale overloop die toegang biedt tot twee ruime slaapkamers. 

Slaapkamers:
Beide slaapkamers zijn ruim van opzet en profiteren van veel natuurlijke lichtinval dankzij de aanwezige raampartijen. Er is meer dan voldoende ruimte voor een bed, bureau en opbergkast, waardoor de kamers multi-inzetbaar zijn. Desgewenst kunnen deze ook dienen als werkkamer, logeerkamer of hobbyruimte. Een praktisch detail is de ingebouwde kastruimte in beide kamers, die zorgt voor een opgeruimde uitstraling en extra gemak.

Buitenruimte:
Achter de woning vindt u een zonnige tuin met een fijne combinatie van bestrating en groen. Een overkapping biedt schaduwrijke zitruimte voor warme zomerdagen, terwijl de rest van de tuin alle ruimte biedt voor een loungeset en een grote buitentafel. Dankzij de ligging geniet u hier van volop zonuren en veel privacy. Vanuit de tuin heeft u tevens toegang tot de berging, wat extra praktisch is voor tuinspullen of fietsen. Ook de garage is vanuit de tuin te bereiken Een heerlijke plek om in alle rust te ontspannen en te genieten van het buitenleven. De grote tuin geeft de woning ook de mogelijkheid indien gewenst om uit te bouwen. Hiermee zal de woning worden vergroot terwijl u deze ruimte in de tuin niet zult missen.

Algemene gegevens
- Type woning: Vrijstaand
- Bouwjaar: 1961
- Verbouwjaar: 1994
- Aantal kamers: 3
- Aantal slaapkamers: 2
- Aantal badkamers: 1
- Parkeerruimte: 4 op eigen terrein
- Aanwezig: garage/tuinhuisje
- Ligging tuin: noordoost
- Tuin bereik: achter en via woning

Technische gegevens
- Warmwatervoorziening: Bosch HRC 39 CW4
- Verwarmvoorziening: Bosch HRC 39 CW4
- houtkachel
- Voorzieningen: buitenzonwering/kelderkast/vliering
- Isolatie: dak
- Dubbel glas: geheel
- Glasvezel kabel, TV kabel
- Kozijnen: hout

Voor meer informatie omtrent deze woning, kunt u contact opnemen met ons kantoor in Rhenen

U bent van harte welkom! De beste indruk van deze woning krijgt u natuurlijk tijdens een bezichtiging. Wij proberen onze bezichtigingen altijd in samenspraak met verkoper en koper te plannen en nemen ruim de tijd, zodat u op uw gemak de woning kan bekijken en ervaren.
N.B. Aan de samenstelling van deze gegevens is maximale zorg besteed. Aan onvolkomenheden in de vermelde gegevens en tekeningen kunnen geen rechten en aanspraken worden ontleend.

Features